Vuokrataan/myydään toimistotilat, liiketilat, näyttelytilat, varastotilat, työtilat, toimistohotelli, varastohotelli, muut tilat - Karkkila

Monikäyttöinen katutason liiketila hyvällä sijainnilla – Karkkila, Huhdintie 7, 03600 Karkkila #10863722

MYYDÄÄN NÄYTTÄVÄ KATUTASON LIIKETILA HYVÄLLÄ SIJAINNILLA

Osoite
Huhdintie 7, 03600 Karkkila
Tilatyyppi
Toimistotilaa
176 m2
Liiketilaa
176 m2
Näyttelytilaa
176 m2
Varastotilaa
176 m2
Työtilaa
176 m2
Toimistohotelli
176 m2
Varastohotelli
176 m2
Muuta tilaa
176 m2
Yhteensä
176 m2
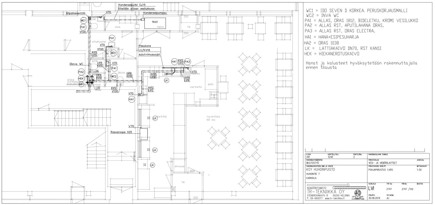
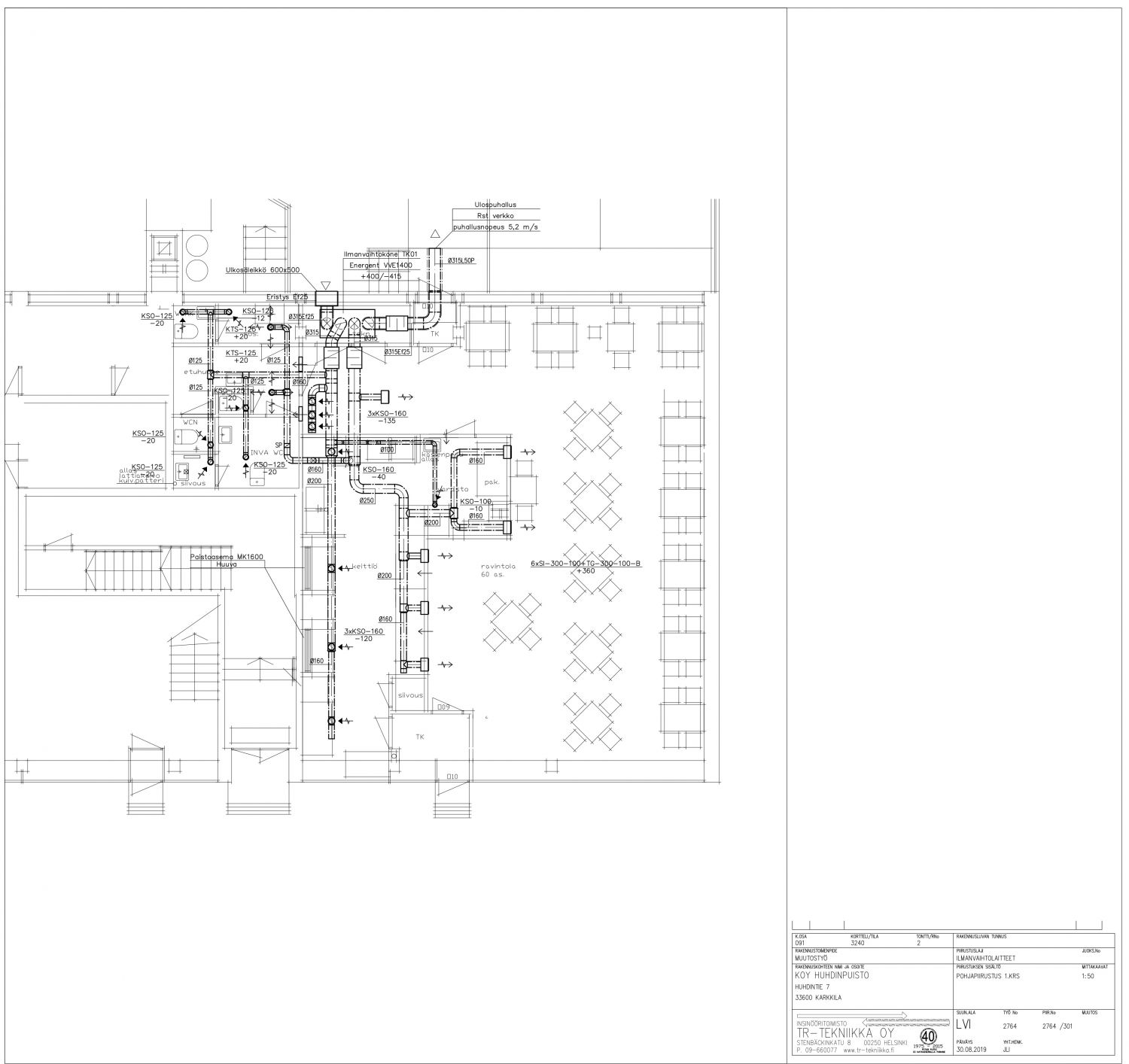
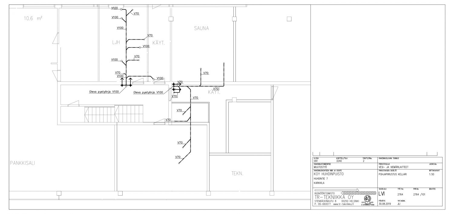
Pohjapiirros
Tila soveltuu
Kahvila, studio/ateljé, koulutus, parturi- ja kampaamo, popup
Vuokra
1500
Myyntihinta
5000
Kiinteistö
katutason liiketila
oma liiketilaosake
hyvin hoidettu taloyhtiö
oma sisäänkäynti
suuret kadulle näkyvät ikkunat
hyvä näkyvyys ohikulkijoille
Sijainti
noin 1 h Helsingistä
hyvä yhteys Valtatie 2
kaupungin keskusta / palvelut lähellä
edullisempi hintataso kuin pääkaupunkiseudulla
hyvä yrittäjä- ja teollisuuskaupunki
Ympäristö
Kohde sijaitsee Karkkilan keskustan palveluiden ja aktiivisen yritysalueen läheisyydessä. Hyvät tieyhteydet Valtatie 2 kautta Helsingin suuntaan, pysäköinti lähellä ja alueella monipuolinen yritys- sekä palveluympäristö.
Pysäköinti
Hyvät ja maksuttomat pysäköintimahdollisuudet kohteen läheisyydessä. Kadunvarsipaikkoja sekä keskustan yleisiä parkkialueita lyhytaikaiseen ja pidempään asiointiin
Palvelut
Kohde sijaitsee Karkkilan keskustassa palveluiden välittömässä läheisyydessä. Kaupat, ravintolat, pankkipalvelut, pysäköinti ja muut keskustan palvelut ovat kävelyetäisyydellä.
Kulkuyhteydet
Erinomaiset kulkuyhteydet autolla ja bussilla. Nopea yhteys Valtatie 2 kautta Helsingin suuntaan sekä paikallisliikenne ja pitkän matkan bussiyhteydet lähellä.
Vuokralaisia
Säästöpankki
Muuta
Kohde tarjoaa erittäin monipuoliset mahdollisuudet liiketoimintaan näkyvällä ja helposti saavutettavalla sijainnilla Karkkilan keskustassa. Katutason liiketila soveltuu erinomaisesti esimerkiksi myymäläksi, toimistoksi, showroomiksi, kauneus- ja hyvinvointipalveluihin, studioksi, kahvilaksi tai muuhun asiakaspalveluliiketoimintaan.

Avara ja selkeä pohjaratkaisu mahdollistaa tilan joustavan muokkaamisen eri toimialojen tarpeisiin. Suuret kadulle avautuvat ikkunat lisäävät näkyvyyttä ja tarjoavat erinomaisen mahdollisuuden brändin, tuotteiden tai palveluiden esille tuomiseen.

Karkkilan keskustan aktiivinen yritys- ja palveluympäristö sekä hyvä saavutettavuus tukevat liiketoiminnan kasvua ja asiakasvirtaa. Kohde soveltuu yhtä hyvin yrityksen omaan käyttöön kuin sijoituskohteeksi, sillä arvioitu vuokrataso on noin 1 500 € + ALV / kk, mikä tarjoaa positiivisen kassavirran nykyiseen yhtiövastikkeeseen nähden.

Tila tarjoaa ostajalle mahdollisuuden kehittää esimerkiksi:

ravintola- tai kahvilakonsepti
premium showroom
hyvinvointi- tai kauneuspalvelut
toimisto tai vastaanotto
erikoisliike
sijoituskohde vuokrattavaksi
Vapautuu
heti
Rakennusvuosi
1987
Kerros
1
Huoneiden lukumäärä
1
E-luku
85 kWhE/m²/vuosi
Ympäristöluokitus
katso isännöitsija todistus

Katutasossa

Näkyvällä paikalla

Ota yhteyttä

Näytä puhelinnumero 0456798800

Myynnissä valoisa ja edustava katutason kulmaliiketila näkyvältä paikalta, joka soveltuu erinomaisesti esimerkiksi myymäläksi, toimistoksi, showroomiksi, hoitolaksi, studioksi, kahvilaksi tai muuhun asiakaspalveluliiketoimintaan.

Liiketilan vahvuuksia ovat sen erinomainen näkyvyys kahteen suuntaan, suuret kadulle avautuvat näyteikkunat, oma sisäänkäynti sekä helposti muunneltava pohjaratkaisu. Kulmasijainti takaa hyvän näkyvyyden ja tekee tilasta helposti löydettävän.

Suuret ikkunapinnat tuovat runsaasti luonnonvaloa, mikä tekee tilasta erittäin viihtyisän ja ammattimaisen. Tila soveltuu loistavasti sekä yrityksen omaan käyttöön että sijoituskohteeksi vuokrattavaksi.

Taloyhtiö on hyvin hoidettu ja kyseessä on oma liiketilaosake. Kohde tarjoaa turvallisen vaihtoehdon sijoittajalle, joka

Pyydä lisätietoa

Kohteesta Huhdintie 7, Karkkila

 

B2B palvelut

HALLIT

LASTAUSRATKAISUT

Mainos
Lastauksien ratkaisut tehokkaammin ja turvallisemmin