Vuokrataan toimistotilat - Hämeenlinna
Koulukatu 25, Keskusta, 13100 Hämeenlinna #10865107
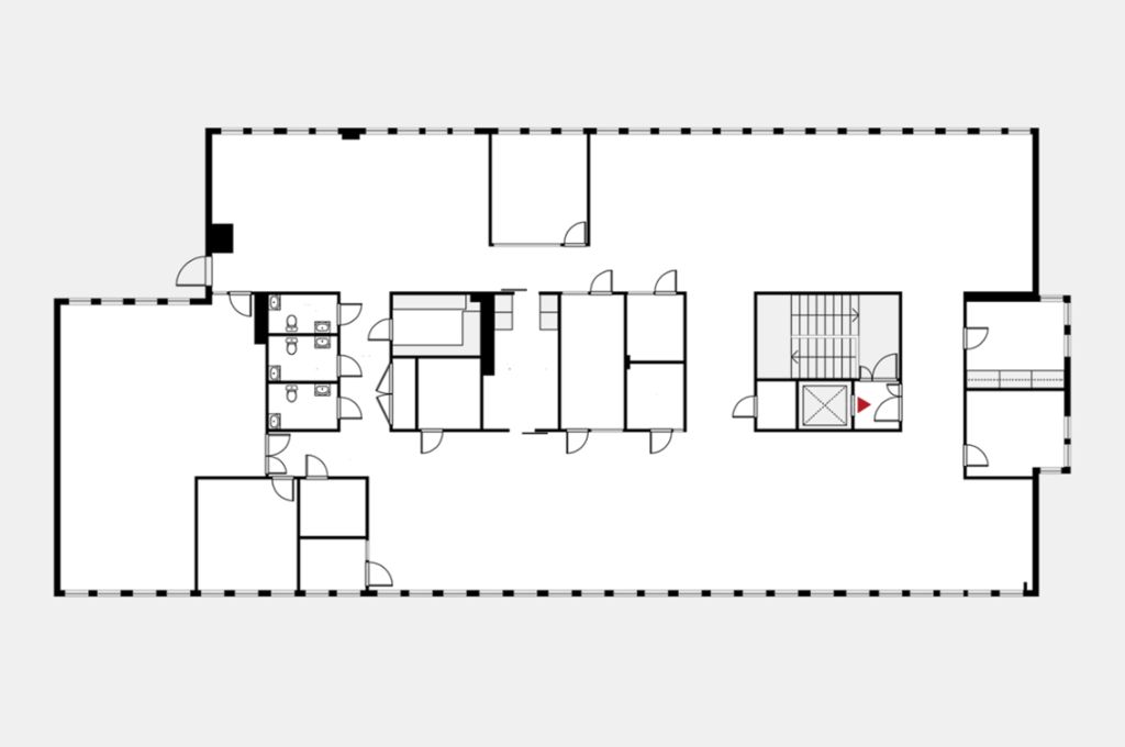
Toimistotilaa Hämeenlinnan Karhulinnassa.
Tämä 489 m² toimisto sijaitsee kiinteistön 2. kerroksessa. Koko toisen kerroksen kattava toimistotila, jossa on runsaasti avotyötilaa, erillisiä toimistohuoneita, varastotila, pukuhuone sekä wc:t. Tämä monipuolinen tila tarjoaa erinomaiset puitteet suuremmallekin työyhteisölle. Kaikki sisäpinnat on uusittu tyylikkäästi vastaamaan nykypäivän standardeja.
Hämeenlinnan Karhulinna tarjoaa näyttävää ja modernisoitua toimistotilaa Hämeenlinnan ydinkeskustassa. Tämä historiallisesti merkittävä ja arvostettu kiinteistökokonaisuus koostuu kahdesta rakennuksesta osoitteissa Koulukatu 25 ja Lukiokatu 26. Kiinteistö on kokenut täydellisen peruskorjauksen vuonna 2021, jolloin tilat päivitettiin vastaamaan nykyajan vaatimustasoa historiasta tinkimättä. Kiinteistön tilat on suunniteltu monipuoliseen käyttöön, ja niihin kuuluu niin avokonttoria kuin tyylikkäitä työhuoneita sekä laadukkaita sosiaalitiloja. Tarjolla on valoisaa ja korkeaa tilaa, jossa moderni talotekniikka, kuten tehokas jäähdytys ja ergonomiset ratkaisut, takaa optimaaliset työskentelyolosuhteet.
Kysy lisää numerosta 044 723 4700 tai info@bref.fi. Palvelumme on tilanhakijoille ilmainen.
Bureau Real Estate Finland Oy
Lars Sonckin kaari 16, 02600 Espoo
Näytä puhelinnumero
0447234700
Bureau Real Estate Finland Oy
https://www.bref.fi