Vuokrataan toimistotilat - Helsinki
Kiviaidankatu 2, Lauttasaari, 00210 Helsinki #10864881
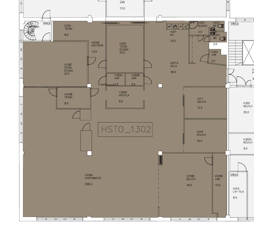
Vuokrattavana 3. kerroksen siistiä ja asiallista toimistotilaa.
Osoite
Kiviaidankatu 2, 00210 Helsinki
Tilatyyppi
Toimistotilaa
458 m2
Kiinteistö
Vuokrattavana 3. kerroksen siistiä ja asiallista toimistotilaa. Tilassa on avotilaa, erikokoisia työhuoneita, oma keittiö ja sosiaalitilat. Tavarahissillä pääsee oven viereen.
Sijainti
Lauttasaari, Helsinki
Pysäköinti
Autopaikkoja pihalla ja hallissa.
Palvelut
Lähialueen palvelut.
Kulkuyhteydet
- Metro
- Bussi
- Oma auto
- Bussi
- Oma auto
Vapautuu
Heti
Kerros
3
Energiatehokkuusluokka
Ei lain edellyttämää energiatodistusta
Näkyvällä paikalla
Hissi
Ota yhteyttä
REALIUM OY LKV
Tammasaarenkatu 1, 00180 Helsinki
Vaihde:
Näytä puhelinnumero
010 326 346
Tuomo Mäkelä
tuomo.makela@realium.fi
p.
Näytä puhelinnumero
044 050 1158
Joel Keto
joel.keto@realium.fi
p.
Näytä puhelinnumero
045 317 0330
KAIKKI TILAVAIHTOEHDOT KERRALLA!
SOITA - MEILAA JA TILAA NÄYTTÖ!
Ilmainen palvelu tilanhakijoille.
Kartoitamme parhaat tilavaihtoehdot.
Kaikki kohteet eivät ole netissä.
Pyydä lisätietoa
