Vuokrataan toimistotilat - Oulu
Kauppurienkatu 23, Keskusta, 90100 Oulu #10864850
Osoite
Kauppurienkatu 23, 90100 Oulu
Tilatyyppi
Toimistotilaa
13 m2
Muuta
Vuokrataan toimistohuoneita Oulun ydinkeskustasta os.
Kauppurienkatu 23, 90100 Oulu.
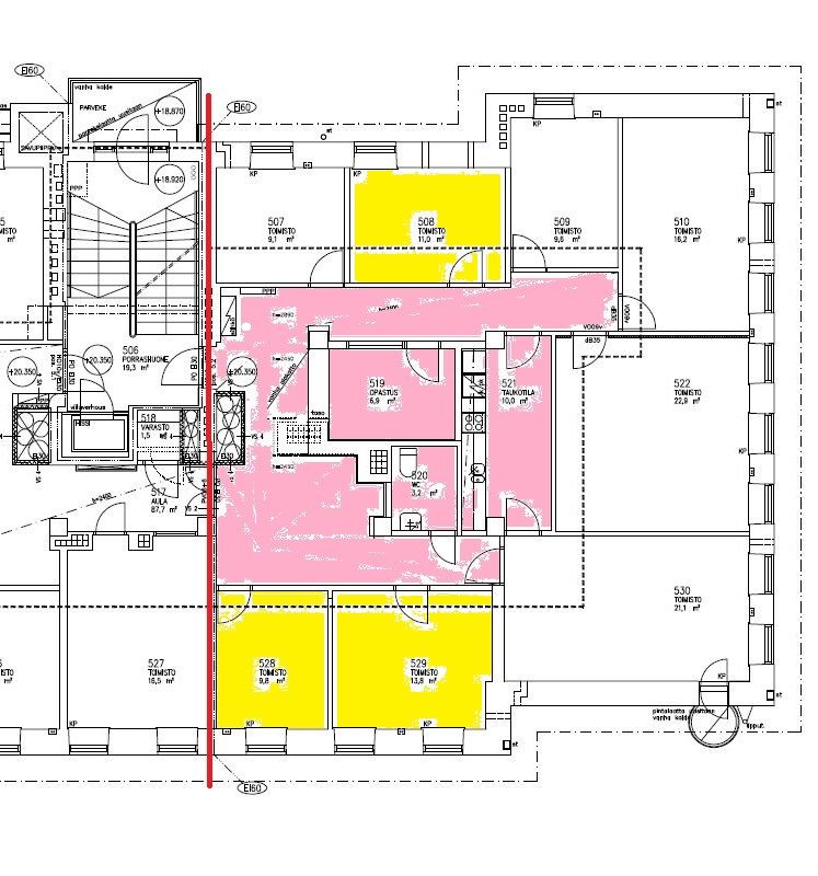
Vapaana ovat pohjakuvassa numeroitu huone
Huone nro 508 (n 11 m2), huone 528 (n 9,5 m2) ja huone nro 529 (n. 13,5 m2).
Vuokra 400- 450 e/huone/kk + alv.
(jos alviton toimija, vuokra on 450- 500e/kk alv 0%)
Vuokrat sidotaan elinkustannusindeksiin, korotus/tarkistus kerran vuodessa. Minimikorotus 3 % / vuosi.
Yhteiskäyttöinen neuvottelu- ja taukotila toisten toimijoiden kanssa ajanvarauskirjalla.
Korkea huonekorkeus, paksut kiviseinät ja desibeliovet.
Vuokra sisältää seuraavat palvelut/suoritteet:
- pöytä ja tuoli
- tilassa kulutettu sähkö ja vesi
- tilan siivous
- nettiyhteys kerroksen (valokaapeli tai kuparikaapeli)
- kahvin, teen, sokerin ja maidon hankinta ja tuonti keittiön kaappiin
- vessapaperit, raikastimet
- vaihtomatot
- tilan lamput ja lamppujen vaihdot
- kerrosoven pieleen käyttäjäkohtaiset ovikellot
- ovien pieliin tarvittavat tarroitukset
Kiinteistö sijaitsee näkyvällä paikalla Uusikadun ja Mäkelininkadun välissä ja on hyvin liikenteellisesti saavutettavissa omalla autolla, mutta silti vain näköetäisyydellä Kauppakeskus Valkeasta ja lyhyen kävelymatkan päässä ydinkeskustan kävelykatualueesta.
Kiinteistö on peruskorjattu ilmanvaihdon, putkistojen, hissin ja julkisivujen osalta v. 2006. Rakennuksessa on koneellinen tulo- ja poistoilmanvaihto, atk-lähiverkko.
Soita ja pyydä esittely kohteeseen!
Kauppurienkatu 23, 90100 Oulu.
Vapaana ovat pohjakuvassa numeroitu huone
Huone nro 508 (n 11 m2), huone 528 (n 9,5 m2) ja huone nro 529 (n. 13,5 m2).
Vuokra 400- 450 e/huone/kk + alv.
(jos alviton toimija, vuokra on 450- 500e/kk alv 0%)
Vuokrat sidotaan elinkustannusindeksiin, korotus/tarkistus kerran vuodessa. Minimikorotus 3 % / vuosi.
Yhteiskäyttöinen neuvottelu- ja taukotila toisten toimijoiden kanssa ajanvarauskirjalla.
Korkea huonekorkeus, paksut kiviseinät ja desibeliovet.
Vuokra sisältää seuraavat palvelut/suoritteet:
- pöytä ja tuoli
- tilassa kulutettu sähkö ja vesi
- tilan siivous
- nettiyhteys kerroksen (valokaapeli tai kuparikaapeli)
- kahvin, teen, sokerin ja maidon hankinta ja tuonti keittiön kaappiin
- vessapaperit, raikastimet
- vaihtomatot
- tilan lamput ja lamppujen vaihdot
- kerrosoven pieleen käyttäjäkohtaiset ovikellot
- ovien pieliin tarvittavat tarroitukset
Kiinteistö sijaitsee näkyvällä paikalla Uusikadun ja Mäkelininkadun välissä ja on hyvin liikenteellisesti saavutettavissa omalla autolla, mutta silti vain näköetäisyydellä Kauppakeskus Valkeasta ja lyhyen kävelymatkan päässä ydinkeskustan kävelykatualueesta.
Kiinteistö on peruskorjattu ilmanvaihdon, putkistojen, hissin ja julkisivujen osalta v. 2006. Rakennuksessa on koneellinen tulo- ja poistoilmanvaihto, atk-lähiverkko.
Soita ja pyydä esittely kohteeseen!
Vapautuu
Kysy
Kerros
5
Ota yhteyttä
Catella Property Oy
Kirkkokatu 6, 5. krs, 90100 OULU
Näytä puhelinnumero
010 5220 100
Pekka Laurila-Harju
Näytä puhelinnumero
010 5220 603
Pyydä lisätietoa
