Vuokrataan toimistotilat - Oulu
Uusikatu 53, Keskusta, 90100 Oulu #10864403
Osoite
Uusikatu 53, 90100 Oulu
Tilatyyppi
Toimistotilaa
333 m2
Vuokra
6100,00 €/kk
Vuokraan sisältyy lämpö
Muuta
Oulu Trade Centerinä tunnetusta talosta vuokrattavana laadukasta toimistotilaa. Remontoidussa tilassa on eri kokoisia toimistohuoneita, neukkareita, taukotila sekä kaksi vessaa käytettävissä. Tilassa on jäähdytetty ilmanvaihto ja kiinteistössä on kulunvalvontajärjestelmä. Muutostyöt ovat mahdollisia tarpeen mukaan.
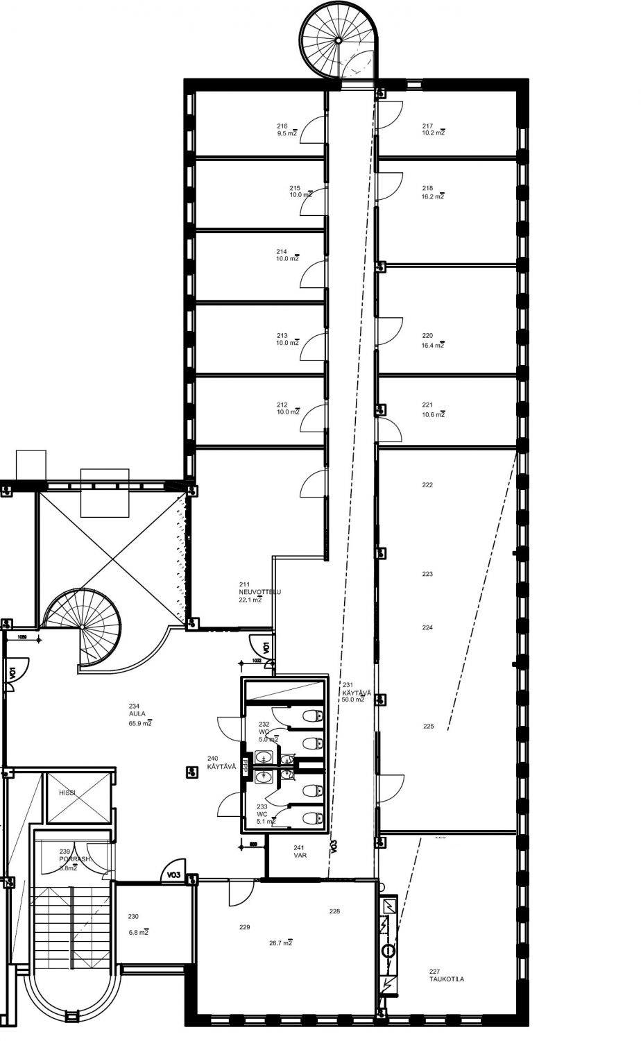
Talon toiseen kerrokseen sijoittuvassa tilassa on viihtyisät aulatilat. Halutessasi käytössäsi on kokoustiloja n. 30 henkilölle. Kokoustilan yhteydessä on keittiö, jota esimerkiksi catering -palvelu voi hyödyntää. Tilan neliömäärä on 333m2, johon sisältyy jyvitykset yhtiön käytävistä, aulan vessoista sekä kellarin sosiaalitiloista.
Tilan mukana mahdollista vuokrata autopaikkoja, joista 10kpl sijaitsee autohallissa ja yksi pihalla. Hallipaikkojen vuokra on 95€/kk ja pihapaikkojen 55€/kk, hintoihin lisätään alv. Vieraille löytyy pihasta muutama autopaikkaa ja kadun varressa on autopaikkoja. Lisäksi talon kellarista on mahdollisuus vuorkata erillinen säilytystila.
Tilan vuokra 6100 €/kk +alv. Lisäksi vuokralainen maksaa käyttösähköstä (1,39€/m2) ja vesimaksua 9€/hlö/kk +alv.
Lisätiedot 040 5400 672 tai joni.romppainen@kiinteistotahkola.fi.
Eikö tämä ole sopiva? Kysy muita vaihtoehtojamme!
Talon toiseen kerrokseen sijoittuvassa tilassa on viihtyisät aulatilat. Halutessasi käytössäsi on kokoustiloja n. 30 henkilölle. Kokoustilan yhteydessä on keittiö, jota esimerkiksi catering -palvelu voi hyödyntää. Tilan neliömäärä on 333m2, johon sisältyy jyvitykset yhtiön käytävistä, aulan vessoista sekä kellarin sosiaalitiloista.
Tilan mukana mahdollista vuokrata autopaikkoja, joista 10kpl sijaitsee autohallissa ja yksi pihalla. Hallipaikkojen vuokra on 95€/kk ja pihapaikkojen 55€/kk, hintoihin lisätään alv. Vieraille löytyy pihasta muutama autopaikkaa ja kadun varressa on autopaikkoja. Lisäksi talon kellarista on mahdollisuus vuorkata erillinen säilytystila.
Tilan vuokra 6100 €/kk +alv. Lisäksi vuokralainen maksaa käyttösähköstä (1,39€/m2) ja vesimaksua 9€/hlö/kk +alv.
Lisätiedot 040 5400 672 tai joni.romppainen@kiinteistotahkola.fi.
Eikö tämä ole sopiva? Kysy muita vaihtoehtojamme!
Vapautuu
01.07.2026
Rakennusvuosi
1990
Kerros
2
Ota yhteyttä
Kiinteistö-Tahkola Oy
Lumijoentie 1, 90400 Oulu
Näytä puhelinnumero
0207 480 250
Joni Romppainen
Näytä puhelinnumero
0405400672
Pyydä lisätietoa
