Vuokrataan liiketilat - Helsinki
Rautatalo, Keskuskatu 3, Keskusta, 00100 Helsinki #10864338
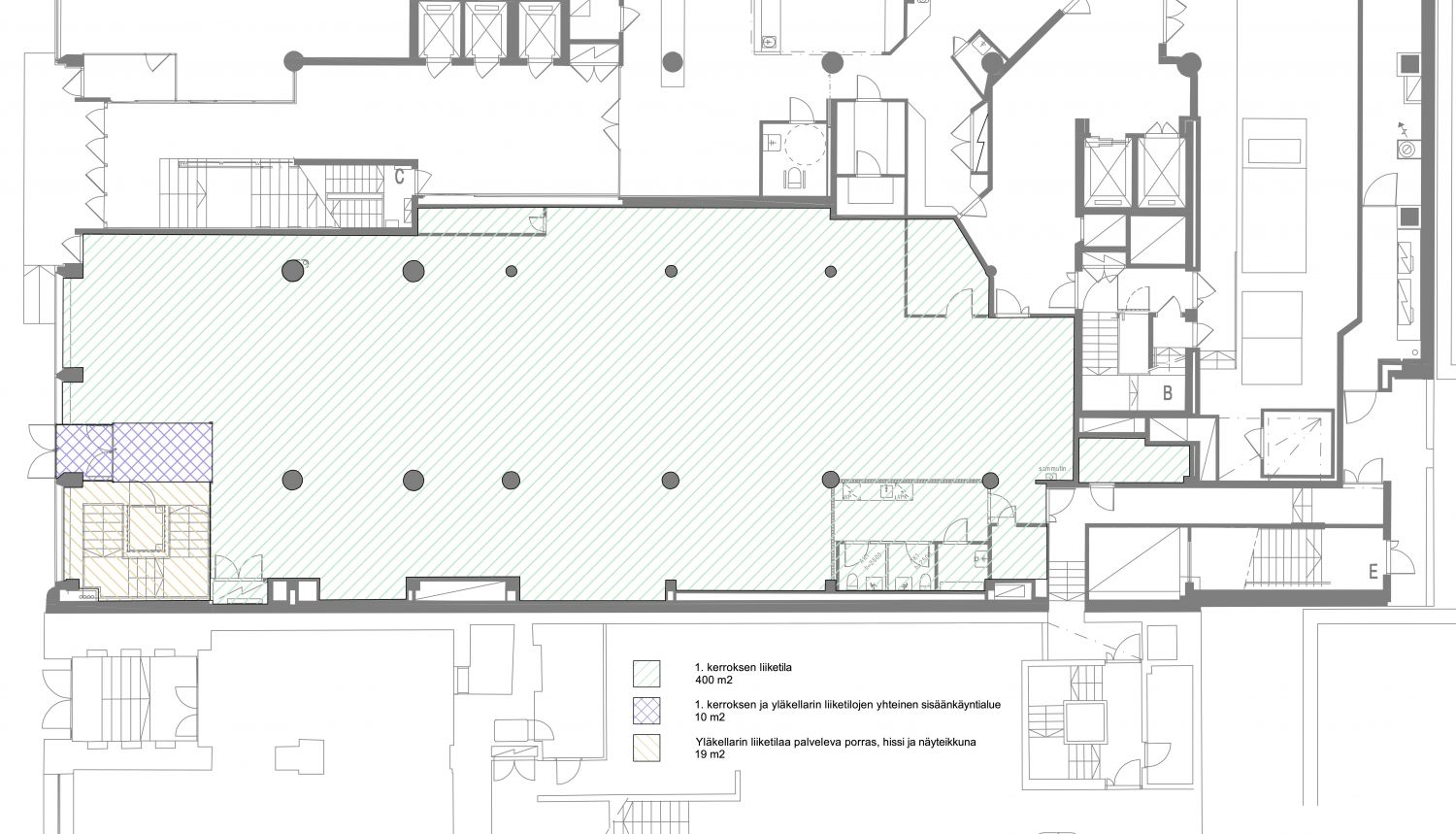
Näkyvä 400 m² liiketila Keskuskadulla – kaupungin paraatipaikalla
Osoite
Keskuskatu 3, 00100 Helsinki
Tilatyyppi
Liiketilaa
400 m2
Pohjapiirros
Virtuaaliesittely
Kiinteistö
Vuokrattavana edustava ja harvinainen liiketila Helsingin ydinkeskustassa ikonisen Rautatalo-rakennuksen tiloissa. Tämä noin 400 m² kokonaisuus sijaitsee Keskuskadulla, yhdellä kaupungin vilkkaimmista kävelykaduista, tarjoten erinomaisen näkyvyyden ja jatkuvan asiakasvirran aivan keskeisimpien palveluiden äärellä, vastapäätä Stockmann-tavarataloa.
Rakennus on Alvar Aalton suunnittelema arkkitehtoninen mestariteos, joka valmistui vuonna 1955. Rautatalo tunnetaan erityisesti näyttävästä Marmoripihastaan, jossa on käytetty aitoa Carrara-marmoria, sekä huolella viimeistellyistä yksityiskohdistaan, kuten pronssisista vetimistä ja aikansa edistyksellisestä metallijulkisivusta, jossa yhdistyvät kupari ja messinki. Rakennuksen suunnittelussa korostuvat valon käyttö sekä laadukkaat materiaalit, jotka luovat ainutlaatuisen ja arvokkaan ympäristön liiketoiminnalle.
Liiketila avautuu suurin ikkunoin Keskuskadulle, mikä tekee tilasta valoisan ja helposti lähestyttävän. Näyteikkunat tarjoavat erinomaiset mahdollisuudet brändin esille tuomiseen vilkkaalla sijainnilla. Kohde soveltuu monipuoliseen liiketoimintaan, mutta ei ravintolakäyttöön.
Sijainti Helsingin ytimessä takaa loistavat kulkuyhteydet niin julkisilla kuin jalan liikkuville. Keskuskatu yhdistää keskeisesti Helsingin päärautatieaseman ja Esplanadin alueen, ja sen ympäristö houkuttelee päivittäin runsaasti niin paikallisia asiakkaita kuin matkailijoita. Läheisyydessä sijaitsevat myös WTC Helsinki sekä City-Center, jotka vahvistavat alueen kaupallista vetovoimaa.
Rakennuksen talotekniikka on modernisoitu vuonna 2002, mikä tuo historialliseen kohteeseen nykyaikaisen käyttömukavuuden. Tila on heti vapaa.
Kohteeseen on mahdollista tutustua myös virtuaalisesti oheisen esittelyn kautta: https://my.matterport.com/show/?m=KGMTKGBhuV7
Tämä ainutlaatuinen kokonaisuus yhdistää näkyvän sijainnin, arvokkaan arkkitehtuurin ja monipuoliset mahdollisuudet liiketoiminnan kehittämiseen Helsingin parhaalla paikalla.
Ota yhteyttä ja varaa esittely.
Vuokrataso n. 90-110 € / m² / kk + alv
Rakennus on Alvar Aalton suunnittelema arkkitehtoninen mestariteos, joka valmistui vuonna 1955. Rautatalo tunnetaan erityisesti näyttävästä Marmoripihastaan, jossa on käytetty aitoa Carrara-marmoria, sekä huolella viimeistellyistä yksityiskohdistaan, kuten pronssisista vetimistä ja aikansa edistyksellisestä metallijulkisivusta, jossa yhdistyvät kupari ja messinki. Rakennuksen suunnittelussa korostuvat valon käyttö sekä laadukkaat materiaalit, jotka luovat ainutlaatuisen ja arvokkaan ympäristön liiketoiminnalle.
Liiketila avautuu suurin ikkunoin Keskuskadulle, mikä tekee tilasta valoisan ja helposti lähestyttävän. Näyteikkunat tarjoavat erinomaiset mahdollisuudet brändin esille tuomiseen vilkkaalla sijainnilla. Kohde soveltuu monipuoliseen liiketoimintaan, mutta ei ravintolakäyttöön.
Sijainti Helsingin ytimessä takaa loistavat kulkuyhteydet niin julkisilla kuin jalan liikkuville. Keskuskatu yhdistää keskeisesti Helsingin päärautatieaseman ja Esplanadin alueen, ja sen ympäristö houkuttelee päivittäin runsaasti niin paikallisia asiakkaita kuin matkailijoita. Läheisyydessä sijaitsevat myös WTC Helsinki sekä City-Center, jotka vahvistavat alueen kaupallista vetovoimaa.
Rakennuksen talotekniikka on modernisoitu vuonna 2002, mikä tuo historialliseen kohteeseen nykyaikaisen käyttömukavuuden. Tila on heti vapaa.
Kohteeseen on mahdollista tutustua myös virtuaalisesti oheisen esittelyn kautta: https://my.matterport.com/show/?m=KGMTKGBhuV7
Tämä ainutlaatuinen kokonaisuus yhdistää näkyvän sijainnin, arvokkaan arkkitehtuurin ja monipuoliset mahdollisuudet liiketoiminnan kehittämiseen Helsingin parhaalla paikalla.
Ota yhteyttä ja varaa esittely.
Vuokrataso n. 90-110 € / m² / kk + alv
Vapautuu
Heti
Rakennusvuosi
1955
Saneerausvuosi
2002
Kerros
1
Energiatehokkuusluokka
Ei lain edellyttämää energiatodistusta
Katutasossa
Ota yhteyttä
ScanReal Oy LKV
Opus Business Park
Hitsaajankatu 24
00810 Helsinki
info@scanreal.fi
Puh:
Näytä puhelinnumero
020 730 8830
Sopivat toimitilat yhdellä otolla!
Kartoitamme toimitilatarpeesi ja etsimme yrityksellesi parhaiten sopivat vapaat toimitilat. Koska vuokranantajat maksavat palvelumme, on tämä yrityksellesi veloituksetonta.
Palvelumme on tilanhakijalle ilmainen
Pyydä lisätietoa
