Vuokrataan toimistotilat - Helsinki
Mannerheimintie 8, Kamppi, 00100 Helsinki #10864295
Vuokrataan isosta toimistotalosta toimistotilaa keskeiseltä sijainnilta Helsingissä! Vuokra: 25 €/m²/kk + alv
Osoite
Mannerheimintie 8, 00100 Helsinki
Tilatyyppi
Toimistotilaa
197 - 3141 m2
Virtuaaliesittely
Vuokra
25 €/m²/kk + alv
Muuta
Helsingin keskustassa, Mannerheimintien ja Lönnrotinkadun risteyksessä sijaitsevasta isosta toimistotalosta hyvää toimistotilaa vuokrattavana.
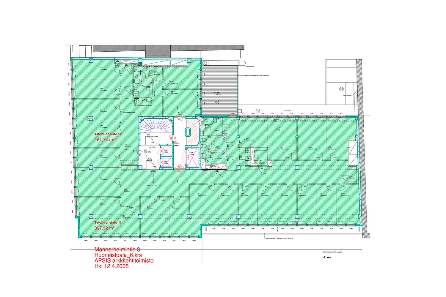
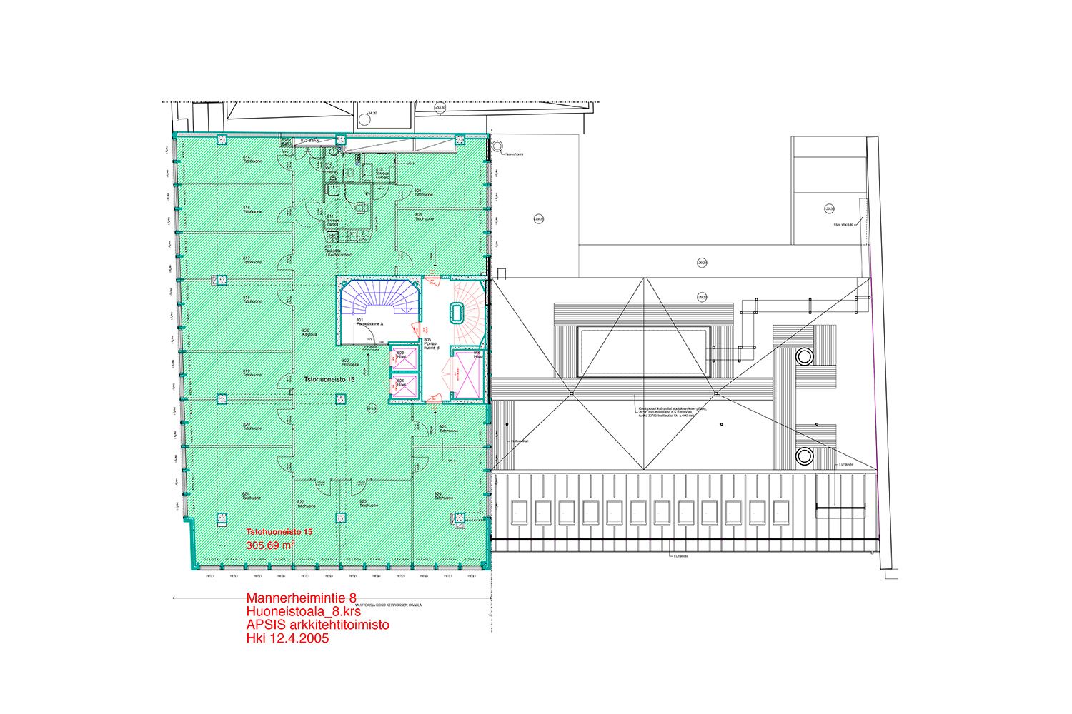
Tilaa on yhteensä tarjolla 3141 m² ja sitä on seuraavasti:
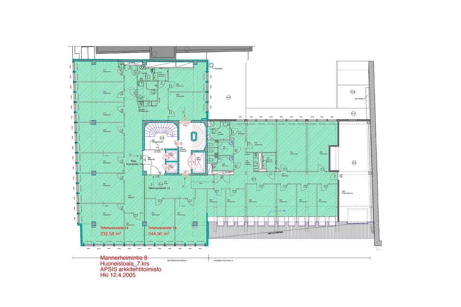
kerros toimistotilaa 232 m² ja 415 m² = 647 m²
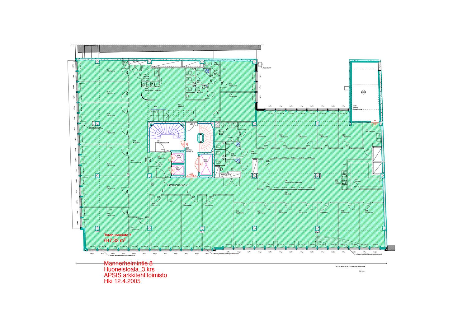
kerros toimistotilaa 197 m² ja 413 m² = 652 m²
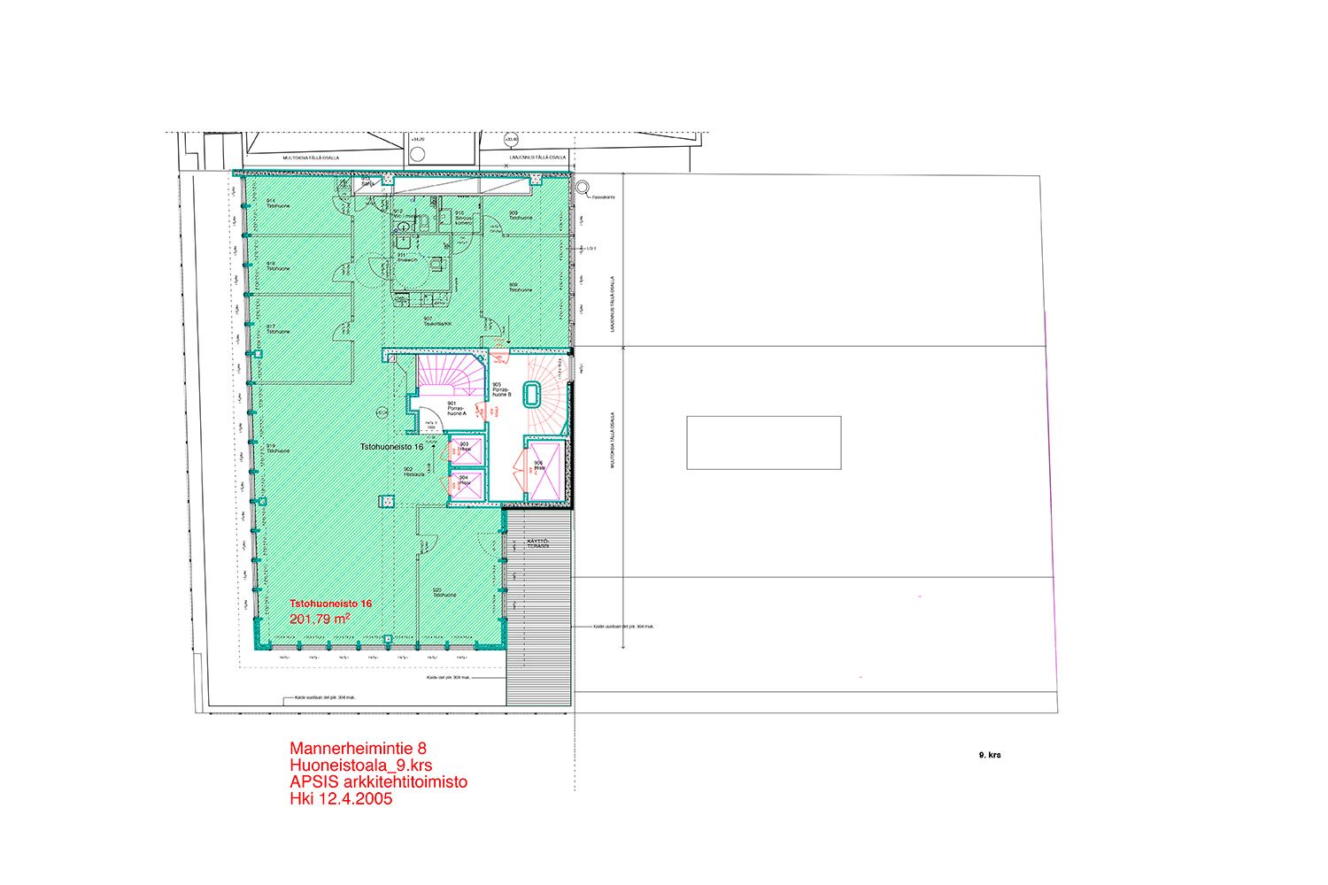
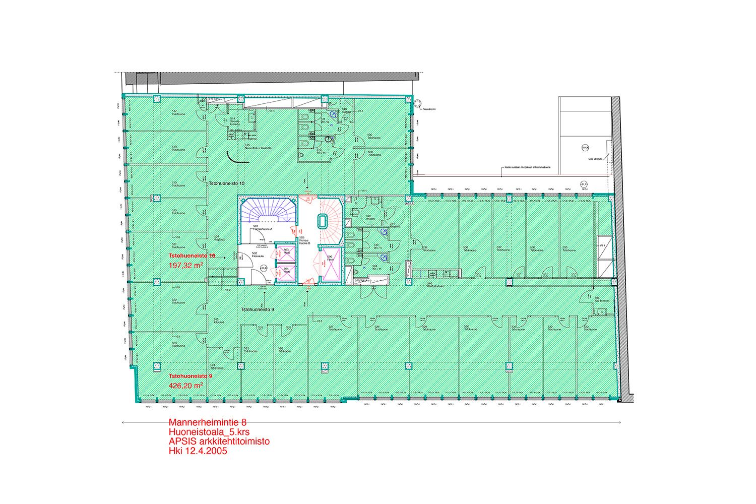
kerros toimistotilaa 197 m² ja 426 m² = 623 m²
kerros toimistotilaa 233 m²
kerros toimistotilaa 233 m² ja 245 m² = 478 m²
kerros toimistotilaa 306 m²
kerros toimistotilaa 202 m²
Jokainen kerros voidaan yhdistää helposti yhdeksi kokonaisuudeksi. Nyt myös 3. ja 4. kerros on yhdistetty omalla erillisellä portaalla.
Tilojen vuokrapyynti on 25 €/ m² (+ alv) ja se sisältää myös perustasoisen remontin. Tasoparannuksista ja isommista muutoksista sovitaan erikseen.
Vuokralainen vastaa lisäksi sähkömaksusta (oma sopimus). Lämmitys ja vesimaksu sisältyy vuokraan.
Erinomaiset julkisen liikenteen yhteydet junalla ja bussilla sekä rakennuksen edessä raitiovaunupysäkki.
Lähellä on useita maksullisia paikoitushalleja esim. Aimo Park Erottaja tai Stockmann, Eliel Parking rautatieaseman vieressä ja Aimo Park Yrjönkadulla. Lisäksi Kampin alueella (auki 24/7) EuroPark (P-Autotalo).
Toimitila on Helsingin keskustan ja helppojen julkisten kulkuyhteyksien tuntumassa!
Kohdetiedot
Sijainti
Katuosoite: Mannerheimintie 8, 00100 Helsinki
Kaupunginosa: Kamppi
Ympäristö: Kaartinkaupunki, Esplanadi, Kamppi, Kluuvi
Rakennus/huoneisto
Pinta-ala: 197 m² – 3141 m²
Kiinteistötyyppi: Toimistotalo
Tilatyyppi: Toimistotilaa
Rakennusvuosi: 1960
Energiatodistus: Kiinteistöllä on voimassa oleva energiatodistus
Kunto, varusteet ja palvelut: Toimistohuoneita, neuvotteluhuoneita keittiö/taukotiloja, wc, parveke, kaikki keskustan palvelut lähellä
Lämmitys: Kaukolämpö
Autopaikat: Lähellä maksullisia paikoitustiloja ja halleja
Vapautuu: Kesällä 2027
Vuokrahinta ja kulut
Kuukausivuokra: 25 €/m²/kk + alv
Vesimaksu: Sisältyy vuokraan
Sähkömaksu: Vuokralainen tekee oman sähkösopimuksen
Lämmitys: Sisältyy vuokraan
Jätehuolto: Vuokralainen vastaa kuluista
Muuta: 12 kk minimisopimuskausi, vakuus 3kk vuokraa vastaava summa ja luottotiedot oltava kunnossa
Tilaa on yhteensä tarjolla 3141 m² ja sitä on seuraavasti:
kerros toimistotilaa 232 m² ja 415 m² = 647 m²
kerros toimistotilaa 197 m² ja 413 m² = 652 m²
kerros toimistotilaa 197 m² ja 426 m² = 623 m²
kerros toimistotilaa 233 m²
kerros toimistotilaa 233 m² ja 245 m² = 478 m²
kerros toimistotilaa 306 m²
kerros toimistotilaa 202 m²
Jokainen kerros voidaan yhdistää helposti yhdeksi kokonaisuudeksi. Nyt myös 3. ja 4. kerros on yhdistetty omalla erillisellä portaalla.
Tilojen vuokrapyynti on 25 €/ m² (+ alv) ja se sisältää myös perustasoisen remontin. Tasoparannuksista ja isommista muutoksista sovitaan erikseen.
Vuokralainen vastaa lisäksi sähkömaksusta (oma sopimus). Lämmitys ja vesimaksu sisältyy vuokraan.
Erinomaiset julkisen liikenteen yhteydet junalla ja bussilla sekä rakennuksen edessä raitiovaunupysäkki.
Lähellä on useita maksullisia paikoitushalleja esim. Aimo Park Erottaja tai Stockmann, Eliel Parking rautatieaseman vieressä ja Aimo Park Yrjönkadulla. Lisäksi Kampin alueella (auki 24/7) EuroPark (P-Autotalo).
Toimitila on Helsingin keskustan ja helppojen julkisten kulkuyhteyksien tuntumassa!
Kohdetiedot
Sijainti
Katuosoite: Mannerheimintie 8, 00100 Helsinki
Kaupunginosa: Kamppi
Ympäristö: Kaartinkaupunki, Esplanadi, Kamppi, Kluuvi
Rakennus/huoneisto
Pinta-ala: 197 m² – 3141 m²
Kiinteistötyyppi: Toimistotalo
Tilatyyppi: Toimistotilaa
Rakennusvuosi: 1960
Energiatodistus: Kiinteistöllä on voimassa oleva energiatodistus
Kunto, varusteet ja palvelut: Toimistohuoneita, neuvotteluhuoneita keittiö/taukotiloja, wc, parveke, kaikki keskustan palvelut lähellä
Lämmitys: Kaukolämpö
Autopaikat: Lähellä maksullisia paikoitustiloja ja halleja
Vapautuu: Kesällä 2027
Vuokrahinta ja kulut
Kuukausivuokra: 25 €/m²/kk + alv
Vesimaksu: Sisältyy vuokraan
Sähkömaksu: Vuokralainen tekee oman sähkösopimuksen
Lämmitys: Sisältyy vuokraan
Jätehuolto: Vuokralainen vastaa kuluista
Muuta: 12 kk minimisopimuskausi, vakuus 3kk vuokraa vastaava summa ja luottotiedot oltava kunnossa
Vapautuu
kesä 2027
Rakennusvuosi
1960
Kerros
3 / 9
Näkyvällä paikalla
Hissi
Ota yhteyttä
Tilat.fi
KTM, LKV Antti Soivio
Näytä puhelinnumero
0400 446 553
OTM, LKV Riikka Tuominen
Näytä puhelinnumero
0400 551 790
KTM, LKV Maria-Sofia Puhakka
Näytä puhelinnumero
0400-150330
MBA, LKV Susanne Wallenius
Näytä puhelinnumero
0400-128877
LKV Tilat.fi Oy on toimitilojen välitykseen erikoistunut yritys.
http://www.tilat.fiPyydä lisätietoa
