Vuokrataan tuotantotilat - Espoo
Koskelonkuja 1, Koskelo, 02920 Espoo #10864192
Koskelonkuja 1 A - Tuotanto- / varastotila 98 m²
Osoite
Koskelonkuja 1, 02920 Espoo
Tilatyyppi
Tuotantotilaa
98 m2
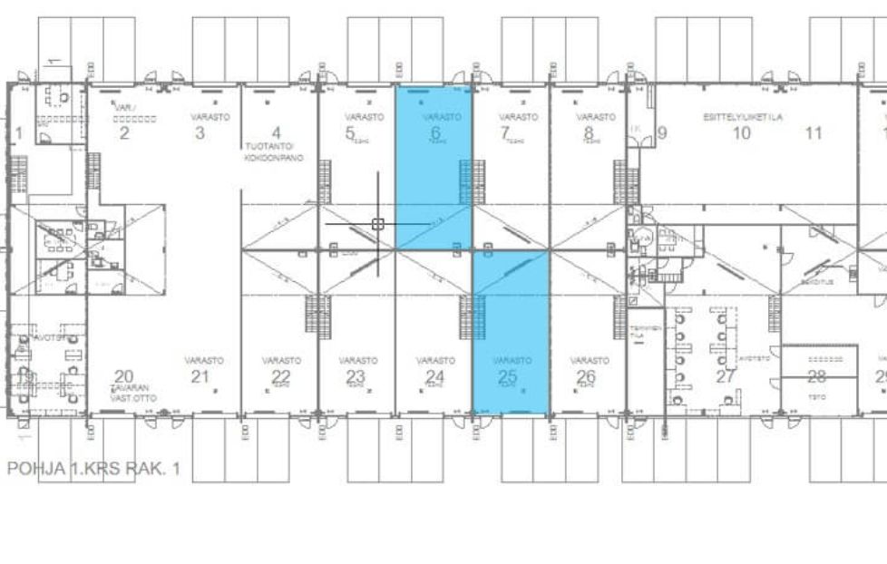
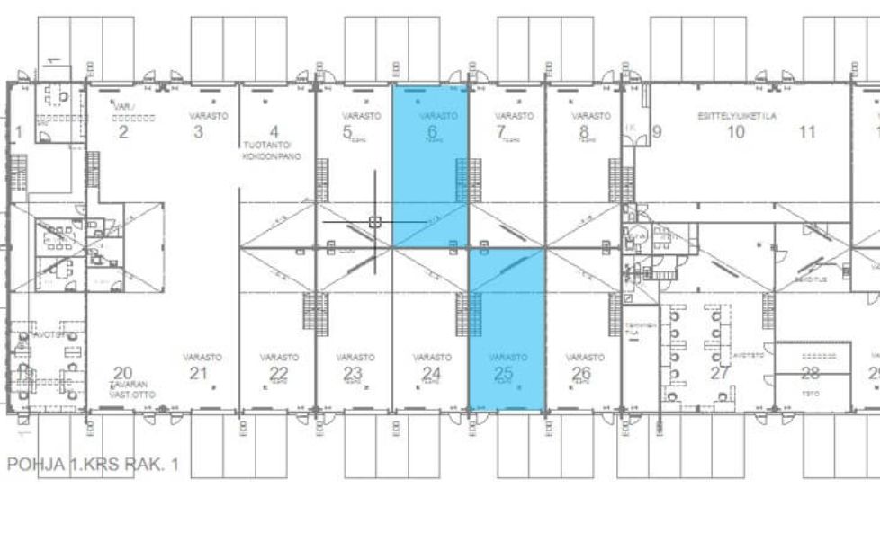
Pohjapiirros
Kiinteistö
Vuokrattavana on kaksi erillistä, noin 98 m²:n kokoista varasto‑ ja tuotantotilaa (A8 ja A25), jotka tarjoavat toimivat ja monipuoliset puitteet niin varastointiin kuin tuotantokäyttöön.
Tilat vuokrataan erikseen, eikä niitä ole mahdollista yhdistää. Molemmat tilat ovat sisään ajettavia ja varustettu omalla nosto-ovella, mikä sujuvoittaa logistiikkaa ja päivittäistä työskentelyä.
Tilan yhteydessä sijaitsee käytännöllinen toisen kerroksen toimistoparvi, josta löytyvät myös oma keittiö sekä suihku- ja wc-tilat, tuoden arkeen mukavuutta ja joustavuutta. Kummassakin tilassa on lisäksi öljynerotuskaivo, voimavirtapiste sekä vesipiste, joten tekniset valmiudet tukevat monipuolista ja vaativampaakin toimintaa.
Kiinteistö ja sijainti
Kiinteistön sijaitsee Kehä III:n vieressä ja vilkkaan Koskelontien varrella. Koskelontien bussipysäkit sijaitsevat kiinteistön lähellä lyhyen kävelymatkan päässä. Etäisyys Turunväylälle 7 km, Hämeenlinnanväylälle 9 km ja Hki-Vantaa lentoasemalle noin 18 km.
Huomioithan, että tila ei sovellu autokorjaamotoimintaan pihatilan rajallisuuden vuoksi.
Koskelonkuja 1 – Modernit ja muunneltavat tilat Espoossa
Vuonna 2017 valmistunut kiinteistö tarjoaa nykyaikaisia ja edustavia tiloja, jotka on suunniteltu joustavasti käyttäjän tarpeisiin. Tilat soveltuvat erinomaisesti tuotanto-, varasto-, myynti- tai näyttelykäyttöön. Yksittäisen lohkon koko: noin 97,5 m² (tuotantotila: n. 77 m² + toimistoparvi: n. 20 m²). Lattian kantavuus 1000 kg/m2. Tiloja voi yhdistää suuremmiksi kokonaisuuksiksi, mikä mahdollistaa joustavat ratkaisut kasvavan liiketoiminnan tarpeisiin.
Jokaisessa tilassa on
nosto-ovi (korkeus 3,8 m ja leveys 3,3 m)
erillinen käyntiovi
öljynerotuskaivo
voimavirta (16 A)
vesipiste
toimistoparvi/taukotila
keittiö
WC ja suihkunurkka
Kiinteistössä toimii useita eri alojen yrityksiä, mikä luo monipuolisen ja aktiivisen yritysyhteisön.
Sijainti
Kiinteistö sijaitsee Kehä III:n välittömässä läheisyydessä ja vilkkaan Koskelontien varrella, mikä takaa erinomaisen näkyvyyden ja helpon saavutettavuuden.
Julkinen liikenne toimii sujuvasti: Koskelontien bussipysäkit ovat aivan kiinteistön lähellä, vain lyhyen kävelymatkan päässä.
Etäisyydet keskeisiin kohteisiin:
Turunväylä: n. 7 km
Hämeenlinnanväylä: n. 9 km
Helsinki-Vantaan lentoasema: n. 18 km
Vastuullisuus
Kiinteistön lämmitysratkaisuna toimii energiatehokas maalämpö, joka vähentää hiilijalanjälkeä ja tuo säästöjä energiankulutuksessa. Lisäksi kiinteistössä on sähköautojen latauspisteet, mikä tukee ympäristöystävällisiä liikkumisratkaisuja.
Kiinteistöllä on BREEAM Very Good -sertifiointi.
Ota yhteyttä
Kiinnostuitko? Ota yhteyttä ja tule tutustumaan!
Toimitilavälityspalvelumme on tilanhakijalle maksuton.
Tilat vuokrataan erikseen, eikä niitä ole mahdollista yhdistää. Molemmat tilat ovat sisään ajettavia ja varustettu omalla nosto-ovella, mikä sujuvoittaa logistiikkaa ja päivittäistä työskentelyä.
Tilan yhteydessä sijaitsee käytännöllinen toisen kerroksen toimistoparvi, josta löytyvät myös oma keittiö sekä suihku- ja wc-tilat, tuoden arkeen mukavuutta ja joustavuutta. Kummassakin tilassa on lisäksi öljynerotuskaivo, voimavirtapiste sekä vesipiste, joten tekniset valmiudet tukevat monipuolista ja vaativampaakin toimintaa.
Kiinteistö ja sijainti
Kiinteistön sijaitsee Kehä III:n vieressä ja vilkkaan Koskelontien varrella. Koskelontien bussipysäkit sijaitsevat kiinteistön lähellä lyhyen kävelymatkan päässä. Etäisyys Turunväylälle 7 km, Hämeenlinnanväylälle 9 km ja Hki-Vantaa lentoasemalle noin 18 km.
Huomioithan, että tila ei sovellu autokorjaamotoimintaan pihatilan rajallisuuden vuoksi.
Koskelonkuja 1 – Modernit ja muunneltavat tilat Espoossa
Vuonna 2017 valmistunut kiinteistö tarjoaa nykyaikaisia ja edustavia tiloja, jotka on suunniteltu joustavasti käyttäjän tarpeisiin. Tilat soveltuvat erinomaisesti tuotanto-, varasto-, myynti- tai näyttelykäyttöön. Yksittäisen lohkon koko: noin 97,5 m² (tuotantotila: n. 77 m² + toimistoparvi: n. 20 m²). Lattian kantavuus 1000 kg/m2. Tiloja voi yhdistää suuremmiksi kokonaisuuksiksi, mikä mahdollistaa joustavat ratkaisut kasvavan liiketoiminnan tarpeisiin.
Jokaisessa tilassa on
nosto-ovi (korkeus 3,8 m ja leveys 3,3 m)
erillinen käyntiovi
öljynerotuskaivo
voimavirta (16 A)
vesipiste
toimistoparvi/taukotila
keittiö
WC ja suihkunurkka
Kiinteistössä toimii useita eri alojen yrityksiä, mikä luo monipuolisen ja aktiivisen yritysyhteisön.
Sijainti
Kiinteistö sijaitsee Kehä III:n välittömässä läheisyydessä ja vilkkaan Koskelontien varrella, mikä takaa erinomaisen näkyvyyden ja helpon saavutettavuuden.
Julkinen liikenne toimii sujuvasti: Koskelontien bussipysäkit ovat aivan kiinteistön lähellä, vain lyhyen kävelymatkan päässä.
Etäisyydet keskeisiin kohteisiin:
Turunväylä: n. 7 km
Hämeenlinnanväylä: n. 9 km
Helsinki-Vantaan lentoasema: n. 18 km
Vastuullisuus
Kiinteistön lämmitysratkaisuna toimii energiatehokas maalämpö, joka vähentää hiilijalanjälkeä ja tuo säästöjä energiankulutuksessa. Lisäksi kiinteistössä on sähköautojen latauspisteet, mikä tukee ympäristöystävällisiä liikkumisratkaisuja.
Kiinteistöllä on BREEAM Very Good -sertifiointi.
Ota yhteyttä
Kiinnostuitko? Ota yhteyttä ja tule tutustumaan!
Toimitilavälityspalvelumme on tilanhakijalle maksuton.
Vapautuu
Kysy
Kerros
1
Ota yhteyttä
Logistila Oy
Kylätie 11-13, 00320 HELSINKI
Karoliina Turppo
Näytä puhelinnumero
050 345 3258
Pyydä lisätietoa
