Vuokrataan liiketilat - Vantaa
Kuninkaalantie 19, Kuninkaala, 01300 Vantaa #10864084
Etsitään kokenutta lounasravintolatoimijaa valmiiseen ravintolatilaan Kuninkaalassa.
Osoite
Kuninkaalantie 19, 01300 Vantaa
Tilatyyppi
Liiketilaa
300 m2
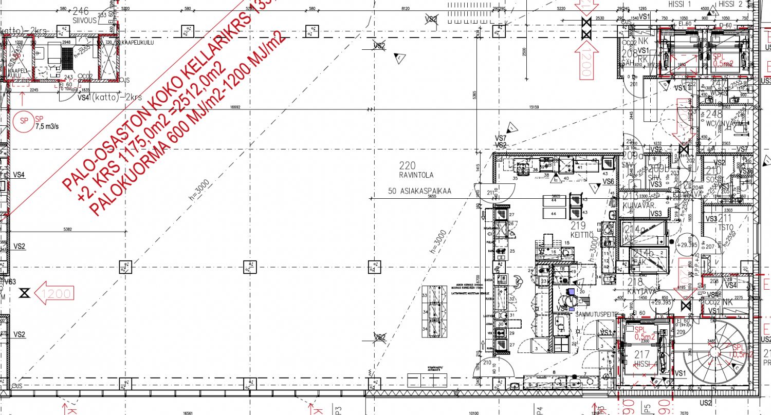
Pohjapiirros
Tila soveltuu
Ravintola, elintarviketila
Kiinteistö
Vuokrattavana valmis lounasravintolakäyttöön soveltuva tilakokonaisuus osoitteessa Kuninkaalantie 19, Vantaa.
Kohteeseen etsitään toimijaa, jolla on voimassa oleva yritys ja valmius harjoittaa lounasravintolatoimintaa.
Tila sijaitsee kiinteistön 2 kerroksessa ja tarjoaa toimivan kokonaisuuden ravintolatoiminnan käynnistämiseen.
Tilassa on valmiina ammattikeittiö, joka on aiemmin palvellut lounasravintolaa. Keittiötä tukevat pakastin, kylmiö sekä kuiva-ainevarasto. Tilakokonaisuus sisältää lisäksi toimistotilan, henkilökunnan pukuhuoneen ja wc tilat sekä asiakas ja tiskialueen.
Tila soveltuu suoraan lounasravintolakäyttöön ilman raskaita muutostöitä.
Kohteeseen etsitään toimijaa, jolla on voimassa oleva yritys ja valmius harjoittaa lounasravintolatoimintaa.
Tila sijaitsee kiinteistön 2 kerroksessa ja tarjoaa toimivan kokonaisuuden ravintolatoiminnan käynnistämiseen.
Tilassa on valmiina ammattikeittiö, joka on aiemmin palvellut lounasravintolaa. Keittiötä tukevat pakastin, kylmiö sekä kuiva-ainevarasto. Tilakokonaisuus sisältää lisäksi toimistotilan, henkilökunnan pukuhuoneen ja wc tilat sekä asiakas ja tiskialueen.
Tila soveltuu suoraan lounasravintolakäyttöön ilman raskaita muutostöitä.
Sijainti
Kiinteistö sijaitsee Kuninkaalantiellä Vantaalla, Tikkurilan läheisyydessä.
Sijainti tarjoaa sujuvat yhteydet pääväylille, kuten Tuusulanväylälle ja Kehä III:lle. Tikkurilan keskusta sijaitsee lyhyen matkan päässä.
Alue on helposti saavutettavissa sekä omalla autolla että julkisilla kulkuvälineillä
Sijainti tarjoaa sujuvat yhteydet pääväylille, kuten Tuusulanväylälle ja Kehä III:lle. Tikkurilan keskusta sijaitsee lyhyen matkan päässä.
Alue on helposti saavutettavissa sekä omalla autolla että julkisilla kulkuvälineillä
Ympäristö
Alue on aktiivinen yritysalue, jossa toimii useita toimisto ja tuotantoyrityksiä. Ympäristö luo hyvän asiakaspohjan lounasravintolatoiminnalle.
Pysäköinti
Kiinteistön yhteydessä on pysäköintimahdollisuuksia henkilökunnalle. Lisäksi alueella on tilaa asiointipysäköintiin.
Palvelut
Tikkurilan alue tarjoaa kattavat palvelut. Alueella toimii aktiivinen yrityskanta, joka tukee lounasravintolan asiakasvirtaa.
Kulkuyhteydet
Lähimmät bussipysäkit sijaitsevat kävelyetäisyydellä.
Tikkurilan juna-asema on muutaman kilometrin päässä ja tarjoaa suorat yhteydet Helsingin keskustaan ja lentoasemalle.
Tikkurilan juna-asema on muutaman kilometrin päässä ja tarjoaa suorat yhteydet Helsingin keskustaan ja lentoasemalle.
Vuokralaisia
Kiinteistössä toimii eri alojen yrityksiä, mikä tukee alueen päivittäistä asiakasliikennettä.
Muuta
Tavaran kuljetus tilaan on sujuvaa lastauslaiturin kautta. Lastauslaiturilta on suora yhteys tilaan tavarahissillä, joka vie suoraan keittiön viereen.
Tavarahissin kantavuus on noin 4000 kg ja siihen mahtuu kerralla noin kaksi lavaa.
Tavarahissin kantavuus on noin 4000 kg ja siihen mahtuu kerralla noin kaksi lavaa.
Vapautuu
Heti
Energiatehokkuusluokka
Ei lain edellyttämää energiatodistusta
Näkyvällä paikalla
Hissi
Lastauslaituri
Ota yhteyttä
Comreal Oy LKV
Joonas Nilsson
Näytä puhelinnumero
044 328 3425
Ota yhteyttä, niin kerron lisää kohteesta. Huomasithan, että kaikki kohteemme ei ole esillä internetissä. Kerro meille tilatarpeesi, niin autamme sinua etsimään yrityksellesi oikean tilan.
Tilahakumme on maksuton.
Pyydä lisätietoa
