Vuokrataan liiketilat - Helsinki
Ruohis, Itämerenkatu 21, Ruoholahti, 00180 Helsinki #10863982
Monipuolinen 172,9 m² liiketila Ruohiksen katutasossa
Osoite
Itämerenkatu 21, 00180 Helsinki
Tilatyyppi
Liiketilaa
172,9 m2
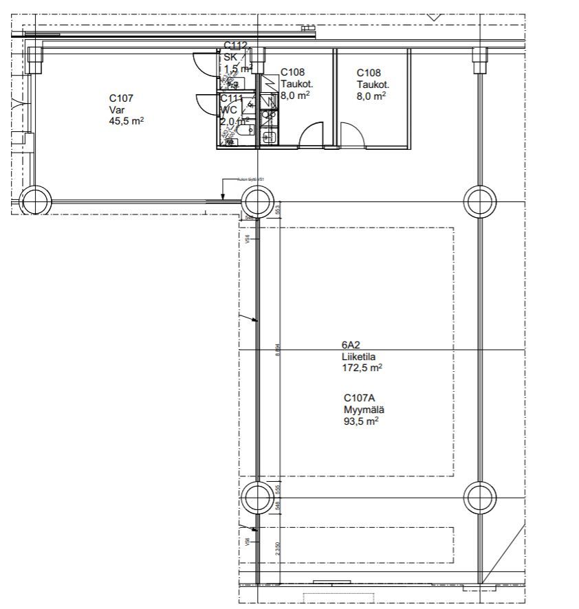
Pohjapiirros
Kiinteistö
Tarjolla on näyttävä ja toimiva liiketila Ruohiksen kiinteistön ensimmäisessä kerroksessa, yhteensä 172,9 neliömetriä. Tila koostuu avoimesta myymälä- ja liiketilaosuudesta sekä erillisestä takahuonepaketista, joka sisältää oman toimistohuoneen (45,5 m²), kaksi taukotilaa (à 8,0 m²), minikeittön sekä WC-tilat. Varastosta on suora yhteys lastauslaiturille, mikä tekee tilasta erityisen käytännöllisen kaupan, showroomin, palveluliiketoiminnan tai muun asiakaspalveluun painottuvan toiminnan tarpeisiin.
Ruohiksen kiinteistö on sertifioitu BREEAM Very Good -luokituksella, mikä kertoo sitoutumisesta korkeatasoiseen ympäristövastuuseen. Kiinteistö käyttää kotimaista tuulisähköä sekä uusiutuvaa kiertolämpöä, joten vuokralaisena olet osa vastuullista ja energiatehokasta kokonaisuutta ilman erillisiä toimia.
Kiinteistön palveluvalikoima tukee arjen sujuvuutta poikkeuksellisen monipuolisesti. Käytössäsi ovat muun muassa lounasravintola ja kahvila, täysin varusteltu kuntosali, saunatilat sekä wellness-palvelut. Kokous- ja tapahtumatarpeisiin löytyy neuvotteluhuoneita, auditorio sekä joustavia POOL-tiloja. Lisäksi kiinteistössä on aulapalvelut, hotdesk-alue, päivittäistavarakauppa, parkkihalli, pyöräparkki sekä sähköauton latauspisteen.
Sijainti on liikenteellisesti erinomainen: metro on vain 100 metrin päässä, bussi ja raitiovaunu pysähtyvät suoraan kiinteistön edustalla, ja lentokentälle on matkaa noin 20 kilometriä. Myös junayhteydet ovat saavutettavissa 1,6 kilometrin säteellä. Ruohiksen sijainti tekee tilasta helposti saavutettavan niin asiakkaille, henkilöstölle kuin yhteistyökumppaneillekin.
Ruohiksen kiinteistö on sertifioitu BREEAM Very Good -luokituksella, mikä kertoo sitoutumisesta korkeatasoiseen ympäristövastuuseen. Kiinteistö käyttää kotimaista tuulisähköä sekä uusiutuvaa kiertolämpöä, joten vuokralaisena olet osa vastuullista ja energiatehokasta kokonaisuutta ilman erillisiä toimia.
Kiinteistön palveluvalikoima tukee arjen sujuvuutta poikkeuksellisen monipuolisesti. Käytössäsi ovat muun muassa lounasravintola ja kahvila, täysin varusteltu kuntosali, saunatilat sekä wellness-palvelut. Kokous- ja tapahtumatarpeisiin löytyy neuvotteluhuoneita, auditorio sekä joustavia POOL-tiloja. Lisäksi kiinteistössä on aulapalvelut, hotdesk-alue, päivittäistavarakauppa, parkkihalli, pyöräparkki sekä sähköauton latauspisteen.
Sijainti on liikenteellisesti erinomainen: metro on vain 100 metrin päässä, bussi ja raitiovaunu pysähtyvät suoraan kiinteistön edustalla, ja lentokentälle on matkaa noin 20 kilometriä. Myös junayhteydet ovat saavutettavissa 1,6 kilometrin säteellä. Ruohiksen sijainti tekee tilasta helposti saavutettavan niin asiakkaille, henkilöstölle kuin yhteistyökumppaneillekin.
Vapautuu
Heti
Rakennusvuosi
1978
Kerros
1 / 8
Energiatehokkuusluokka
Ei lain edellyttämää energiatodistusta
Katutasossa
Näkyvällä paikalla
Lastauslaituri
Ota yhteyttä
ScanReal Oy LKV
Opus Business Park
Hitsaajankatu 24
00810 Helsinki
info@scanreal.fi
Puh:
Näytä puhelinnumero
020 730 8830
Sopivat toimitilat yhdellä otolla!
Kartoitamme toimitilatarpeesi ja etsimme yrityksellesi parhaiten sopivat vapaat toimitilat. Koska vuokranantajat maksavat palvelumme, on tämä yrityksellesi veloituksetonta.
Palvelumme on tilanhakijalle ilmainen
Pyydä lisätietoa
