Vuokrataan toimistotilat, liiketilat, näyttelytilat, työtilat - Helsinki
Klaarantie 3, Lauttasaari, 00200 Helsinki #10863776
Vuokrataan katutason liike-/toimistotilaa Helsingin Lauttasaaressa!
Osoite
Klaarantie 3, 00200 Helsinki
Tilatyyppi
Toimistotilaa
104 - 225 m2
Liiketilaa
104 - 225 m2
Näyttelytilaa
104 - 225 m2
Työtilaa
104 - 225 m2
Yhteensä
104 - 225 m2
Virtuaaliesittely
Vuokra
Alkaen 1'900 €/kk, alv-vapaa
Muuta
Lauttasaaressa on vuokrattavana liike-/toimistotilaa asuinkerrostalon katutasosta. Tiloissa on aikaisemmin toiminut monenlaisia yrityksiä ja tilat toimivat hyvin esim. toimistona, asiakasvastaanottotiloina tai esim showroomina. Viimeisimpänä tilassa on ollut perhepäiväkotitoimintaa.
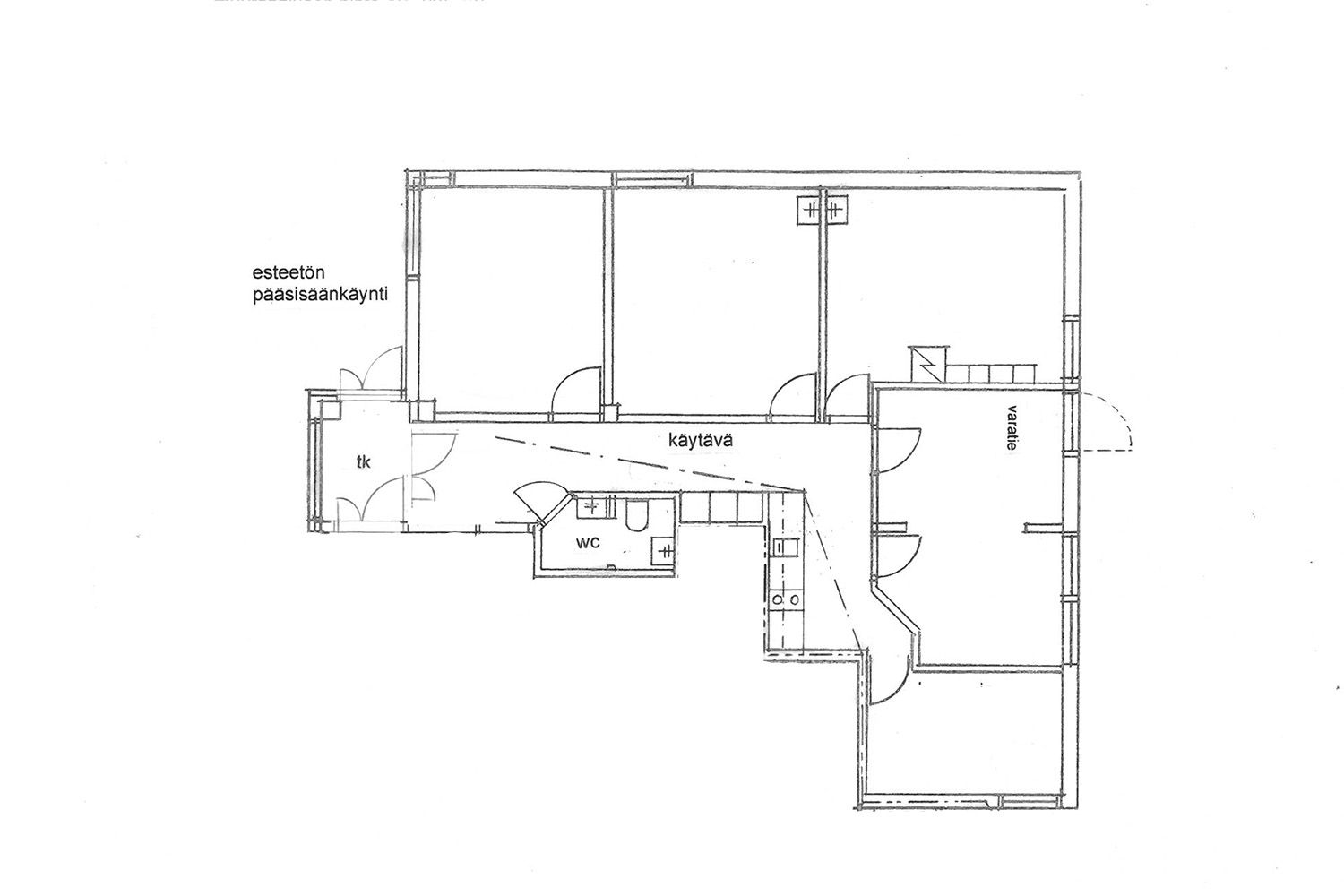
Tilan pinta-ala on 104 m² ja sillä on yhteinen tuulikaappi viereisen tilan kanssa (jaettu sisäänkäynti). Huoneistoissa on useampi huone ja käytävämallinen pohjaratkaisu. Eteisen yhteydessä on wc ja tilan takaosassa vesipiste ja siisti avokeittiö. Tilasta löytyy lisäksi siivouskomero. Huoneistossa on ikkunat sekä Klaarantien suuntaan että takapihalle, ja etupihan ikkunoissa on moottoroidut puolikasettimarkiisit suojaamaan auringonvalolta.
Viereinen tila on myös vuokrattavana ja se on pinta-alaltaan 121 m². Kysy tästä lisää. Tilojen välissä on palo-ovi, joka mahdollistaa tilojen välisen kulun sisäpuolelta.
Samasta taloyhtiöstä, kerrosta alempana myös vuokrattavana pieni 61 m² varasto/toimitila, jossa WC ja minikeittiö. Kysy tästä tarvittaessa lisää.
Lämmitys sisältyy vuokraan (kaukolämpö). Vuokralainen tekee oman sähkösopimuksen ja vesi veloitetaan mittauksen mukaan.
Kadunvarressa (tilan edessä) on maksullisia parkkipaikkoja.
Erinomaisella sijainnilla ja julkisen liikenteen ytimessä. Lauttasaaren metroasemalle on vain 10 minuutin kävelymatka ja autoileville on nopeat yhteydet sekä Helsingin keskustaan että Länsiväylälle.
Moneen soveltuva tila odottaa uutta vuokralaista – tule tutustumaan!
Kohdetiedot
Sijainti
Katuosoite: Klaarantie 3, 00200 Helsinki
Kaupunginosa: Lauttasaari
Ympäristö: Asuinalue
Rakennus/huoneisto
Pinta-alat: Noin 104-225 m²
Kiinteistötyyppi: Asuinkerrostalo
Rakennusvuosi: 1988
Huoneistoselitelmä: Liiketila/toimistotila
Kerros: Katutaso
Energiatodistus: Ei lain edellyttämää todistusta
Kunto, varusteet ja palvelut: Toimistohuoneita, avokeittiö, WC, vesipisteitä ja siivouskomero
Lämmitys: Kaukolämpö
Vapautuu: 1.6.2026
Vuokrahinta ja kulut
Kuukausivuokra: Alkaen 1’900 €/kk, alv-vapaa tila
Vesimaksu: Mittauksen mukaan/taloyhtiön taksojen mukaan
Sähkömaksu: Vuokralainen tekee oman sähkösopimuksen
Lämmitys: Sisältyy vuokraan
Jätehuolto ja auraus: Sisältyy vuokraan
Muut ehdot: Minimisopimuskausi 12 kk, vakuus 3 kk vuokraa vastaava summa ja luottotietojen on oltava kunnossa
Tilan pinta-ala on 104 m² ja sillä on yhteinen tuulikaappi viereisen tilan kanssa (jaettu sisäänkäynti). Huoneistoissa on useampi huone ja käytävämallinen pohjaratkaisu. Eteisen yhteydessä on wc ja tilan takaosassa vesipiste ja siisti avokeittiö. Tilasta löytyy lisäksi siivouskomero. Huoneistossa on ikkunat sekä Klaarantien suuntaan että takapihalle, ja etupihan ikkunoissa on moottoroidut puolikasettimarkiisit suojaamaan auringonvalolta.
Viereinen tila on myös vuokrattavana ja se on pinta-alaltaan 121 m². Kysy tästä lisää. Tilojen välissä on palo-ovi, joka mahdollistaa tilojen välisen kulun sisäpuolelta.
Samasta taloyhtiöstä, kerrosta alempana myös vuokrattavana pieni 61 m² varasto/toimitila, jossa WC ja minikeittiö. Kysy tästä tarvittaessa lisää.
Lämmitys sisältyy vuokraan (kaukolämpö). Vuokralainen tekee oman sähkösopimuksen ja vesi veloitetaan mittauksen mukaan.
Kadunvarressa (tilan edessä) on maksullisia parkkipaikkoja.
Erinomaisella sijainnilla ja julkisen liikenteen ytimessä. Lauttasaaren metroasemalle on vain 10 minuutin kävelymatka ja autoileville on nopeat yhteydet sekä Helsingin keskustaan että Länsiväylälle.
Moneen soveltuva tila odottaa uutta vuokralaista – tule tutustumaan!
Kohdetiedot
Sijainti
Katuosoite: Klaarantie 3, 00200 Helsinki
Kaupunginosa: Lauttasaari
Ympäristö: Asuinalue
Rakennus/huoneisto
Pinta-alat: Noin 104-225 m²
Kiinteistötyyppi: Asuinkerrostalo
Rakennusvuosi: 1988
Huoneistoselitelmä: Liiketila/toimistotila
Kerros: Katutaso
Energiatodistus: Ei lain edellyttämää todistusta
Kunto, varusteet ja palvelut: Toimistohuoneita, avokeittiö, WC, vesipisteitä ja siivouskomero
Lämmitys: Kaukolämpö
Vapautuu: 1.6.2026
Vuokrahinta ja kulut
Kuukausivuokra: Alkaen 1’900 €/kk, alv-vapaa tila
Vesimaksu: Mittauksen mukaan/taloyhtiön taksojen mukaan
Sähkömaksu: Vuokralainen tekee oman sähkösopimuksen
Lämmitys: Sisältyy vuokraan
Jätehuolto ja auraus: Sisältyy vuokraan
Muut ehdot: Minimisopimuskausi 12 kk, vakuus 3 kk vuokraa vastaava summa ja luottotietojen on oltava kunnossa
Vapautuu
01.07.2026
Rakennusvuosi
1988
Kerros
1 / 3
Katutasossa
Näkyvällä paikalla
Ota yhteyttä
Tilat.fi
KTM, LKV Antti Soivio
Näytä puhelinnumero
0400 446 553
OTM, LKV Riikka Tuominen
Näytä puhelinnumero
0400 551 790
KTM, LKV Maria-Sofia Puhakka
Näytä puhelinnumero
0400-150330
MBA,LKV Susanne Wallenius
Näytä puhelinnumero
0400-128877
Yrityksen virallinen nimi: LKV Tilat.fi Oy.
Toimitilojen välitykseen erikoistunut yritys.
Pyydä lisätietoa
