Myydään työtilat - Helsinki
Laippatie 3, Roihupelto, 00880 Helsinki #10863673
Sijoittajalle tai omaan käyttöön – myydään iso teollisuusrakennus Roihupellosta Helsingistä!
Osoite
Laippatie 3, 00880 Helsinki
Tilatyyppi
Työtilaa
2420 m2
Virtuaaliesittely
Myyntihinta
988'000 € (velaton hinta)
Muuta
Itäväylän kupeessa, keskeisellä sijainnilla Itä-Helsingissä myynnissä monipuolinen varasto- ja tuotantotiloja, toimistoa, näyttely ja työtilaa käsittävä teollisuustoimitalo. Sijainniltaan todella keskeinen ja näkyvä paikalla aivan Roihupellon teollisuusalueen sisäänajoväylän alussa.
Myydään ainoastaan rakennus ja vuokraoikeus, ei yhtiötä.
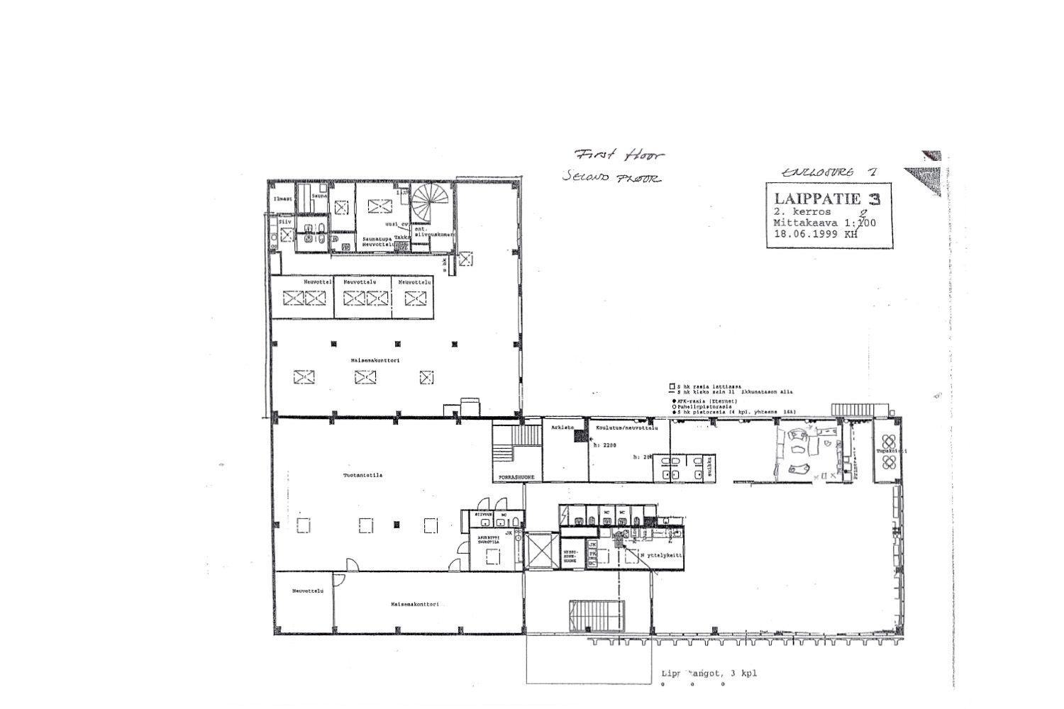
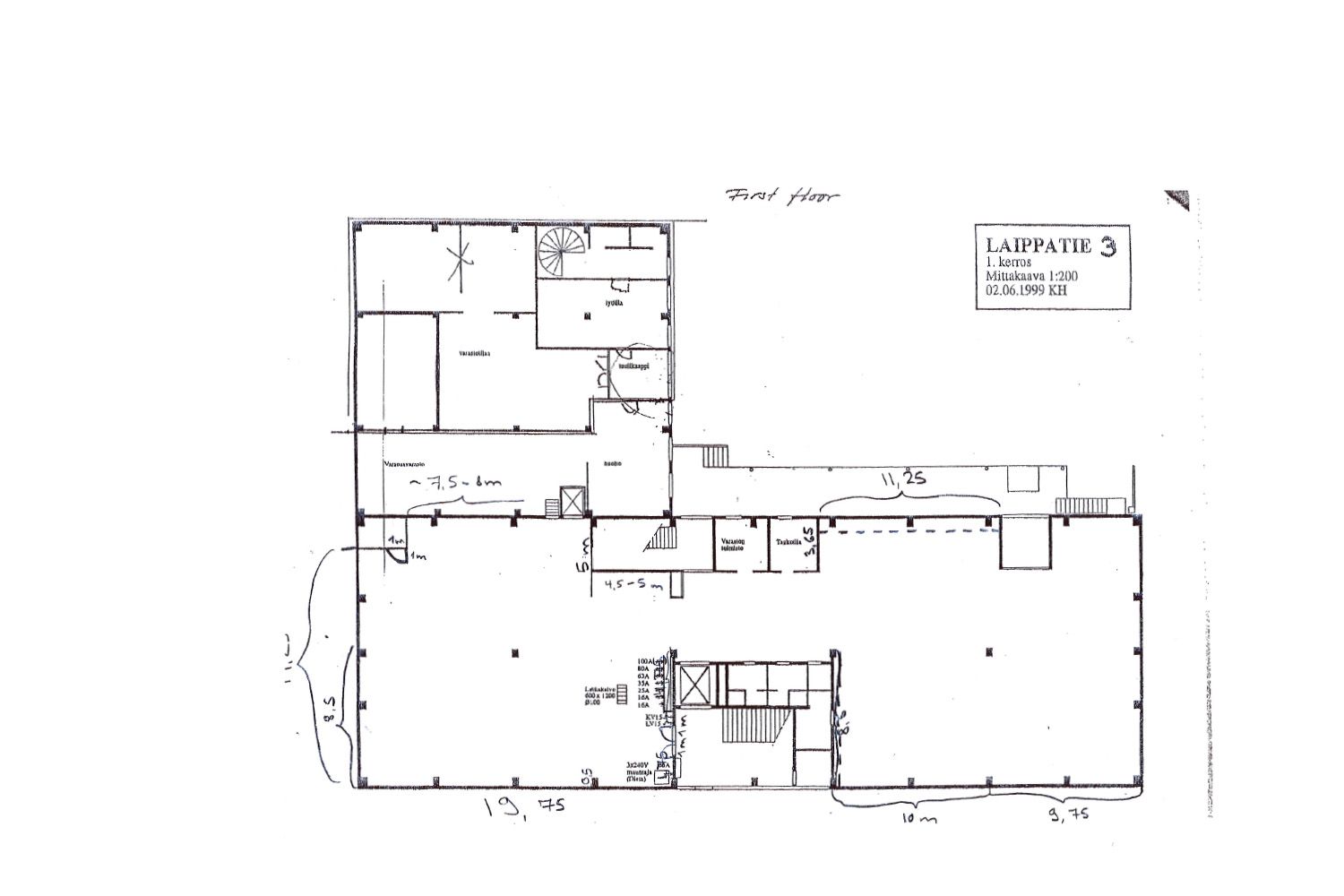
Rakennus on kahdessa kerroksessa, katutasossa varasto- ja tuotantotiloja sekä toisessa kerroksessa toimistotilaa. Kerrosala on yhteensä 2420 m² (huoneistoala noin 2100 m², ei tarkistusmitattu). Tilat ovat vuokrattuja ja rakennuksessa on tällä hetkellä 15 hyvää vuokralaista. Yksi tila tyhjänä ja myyjän omassa käytössä kaksi tilaa.
Vuokratuotto noin 150’000 €/v + vuokratuottopotentiaali omassa käytössä olevista tiloista sekä tyhjästä tilasta noin 60’000 €/v. Tilojen vuokrasopimukset voimassa toistaiseksi 3-6kk irtisanomisajoilla. Mahdollista ottaa rakennus myös osittain tai kokonaan omaan käyttöön.
Rakennus on Helsingin kaupungin vuokratontilla. Maanvuokrasopimus voimassa 31.12.2030 asti, mutta sopimusta voidaan jatkaa 2045 asti. Maanvuokra nousee 1.1.2031 alkaen noin 40’000 €:oon.
Hyvällä sijainnilla, aivan Itäväylän kupeessa Roihupellon teollisuusalueella. Lähellä on sekä Siilitien metroasema, bussipysäkkejä ja autoilevalle sujuvat yhteydet kaikille isommille väylille.
Rakennus, jossa hyvä yhdistelmä teollisuus- ja toimistotiloja keskeisellä sijainnilla nyt ja tulevaisuudessakin!
Kohdetiedot
Sijainti
Katuosoite: Laippatie 3, 00880 Helsinki
Kaupunginosa: Roihupelto
Ympäristö: Teollisuusaluetta
Tontti
Pinta-ala: 2400 m²
Omistus: Helsingin kaupungin tontti voimassa 31.12.2030 asti, mutta sopimusta voidaan jatkaa 2045 asti.
Rakennus/huoneisto
Pinta-ala: Noin 2420 m² (ei tarkistusmitattu)
Rakennustyyppi: Teollisuusrakennus
Rakennusvuosi: 1973
Energiatodistus: Ei lain edellyttämää todistusta
Huoneistoselitelmä: Teollisuus-, toimisto- ja varastotilaa
Kunto, varusteet ja palvelut: Tiloissa toimistoja sosiaalitiloineen, hallitiloja lattiakaivoineen ja vesipisteineen. Löytyy myös voimavirtaa.
Lämmitys: Kaukolämpö
Pysäköinti: Pihassa
Vapautuu: Tilat vuokrattu
Myyntihinta, kulut ja tuotto
Velaton myyntihinta: 988’000 €
Kiinteistövero: 3’874 €
Sähkömaksu: 9’600 €/v
Vesimaksu: 2’100 €/v
Kaukolämpö: 22’200 €/v
Maanvuokra: 27’000 €/v
Jäte- ja siivouskulut: 6’300 €/v
Vakuutus: 3’200 €/v
Ulkoalueiden hoito: 2’600 €
Käyttö- ja huoltokulut: 5’000 €
Kulut kokonaisuudessaan: noin 85’000 €/v
Tuotto: noin 150’000 €/v
Myydään ainoastaan rakennus ja vuokraoikeus, ei yhtiötä.
Rakennus on kahdessa kerroksessa, katutasossa varasto- ja tuotantotiloja sekä toisessa kerroksessa toimistotilaa. Kerrosala on yhteensä 2420 m² (huoneistoala noin 2100 m², ei tarkistusmitattu). Tilat ovat vuokrattuja ja rakennuksessa on tällä hetkellä 15 hyvää vuokralaista. Yksi tila tyhjänä ja myyjän omassa käytössä kaksi tilaa.
Vuokratuotto noin 150’000 €/v + vuokratuottopotentiaali omassa käytössä olevista tiloista sekä tyhjästä tilasta noin 60’000 €/v. Tilojen vuokrasopimukset voimassa toistaiseksi 3-6kk irtisanomisajoilla. Mahdollista ottaa rakennus myös osittain tai kokonaan omaan käyttöön.
Rakennus on Helsingin kaupungin vuokratontilla. Maanvuokrasopimus voimassa 31.12.2030 asti, mutta sopimusta voidaan jatkaa 2045 asti. Maanvuokra nousee 1.1.2031 alkaen noin 40’000 €:oon.
Hyvällä sijainnilla, aivan Itäväylän kupeessa Roihupellon teollisuusalueella. Lähellä on sekä Siilitien metroasema, bussipysäkkejä ja autoilevalle sujuvat yhteydet kaikille isommille väylille.
Rakennus, jossa hyvä yhdistelmä teollisuus- ja toimistotiloja keskeisellä sijainnilla nyt ja tulevaisuudessakin!
Kohdetiedot
Sijainti
Katuosoite: Laippatie 3, 00880 Helsinki
Kaupunginosa: Roihupelto
Ympäristö: Teollisuusaluetta
Tontti
Pinta-ala: 2400 m²
Omistus: Helsingin kaupungin tontti voimassa 31.12.2030 asti, mutta sopimusta voidaan jatkaa 2045 asti.
Rakennus/huoneisto
Pinta-ala: Noin 2420 m² (ei tarkistusmitattu)
Rakennustyyppi: Teollisuusrakennus
Rakennusvuosi: 1973
Energiatodistus: Ei lain edellyttämää todistusta
Huoneistoselitelmä: Teollisuus-, toimisto- ja varastotilaa
Kunto, varusteet ja palvelut: Tiloissa toimistoja sosiaalitiloineen, hallitiloja lattiakaivoineen ja vesipisteineen. Löytyy myös voimavirtaa.
Lämmitys: Kaukolämpö
Pysäköinti: Pihassa
Vapautuu: Tilat vuokrattu
Myyntihinta, kulut ja tuotto
Velaton myyntihinta: 988’000 €
Kiinteistövero: 3’874 €
Sähkömaksu: 9’600 €/v
Vesimaksu: 2’100 €/v
Kaukolämpö: 22’200 €/v
Maanvuokra: 27’000 €/v
Jäte- ja siivouskulut: 6’300 €/v
Vakuutus: 3’200 €/v
Ulkoalueiden hoito: 2’600 €
Käyttö- ja huoltokulut: 5’000 €
Kulut kokonaisuudessaan: noin 85’000 €/v
Tuotto: noin 150’000 €/v
Vapautuu
Myydään vuokrattuna
Rakennusvuosi
1973
Kerros
1 / 2
Näkyvällä paikalla
Ota yhteyttä
Tilat.fi
KTM, LKV Antti Soivio
Näytä puhelinnumero
0400 446 553
OTM, LKV Riikka Tuominen
Näytä puhelinnumero
0400 551 790
KTM, LKV Maria-Sofia Puhakka
Näytä puhelinnumero
0400-150330
MBA, LKV Susanne Wallenius
Näytä puhelinnumero
0400-128877
LKV Tilat.fi Oy on toimitilojen välitykseen erikoistunut yritys.
http://www.tilat.fiPyydä lisätietoa
