Vuokrataan tuotantotilat, varastotilat - Jyväskylä
Savelankatu 3, Savela, 40700 Jyväskylä #10863575
Uutta tuotanto-/varastotilaa 2331 m² Savelassa
Osoite
Savelankatu 3, 40700 Jyväskylä
Tilatyyppi
Tuotantotilaa
1000 - 2331 m2
Varastotilaa
1000 - 2331 m2
Yhteensä
1000 - 2331 m2
Kiinteistö
Uutta tuotanto-/varastotilaa 2331 m² Savelaan
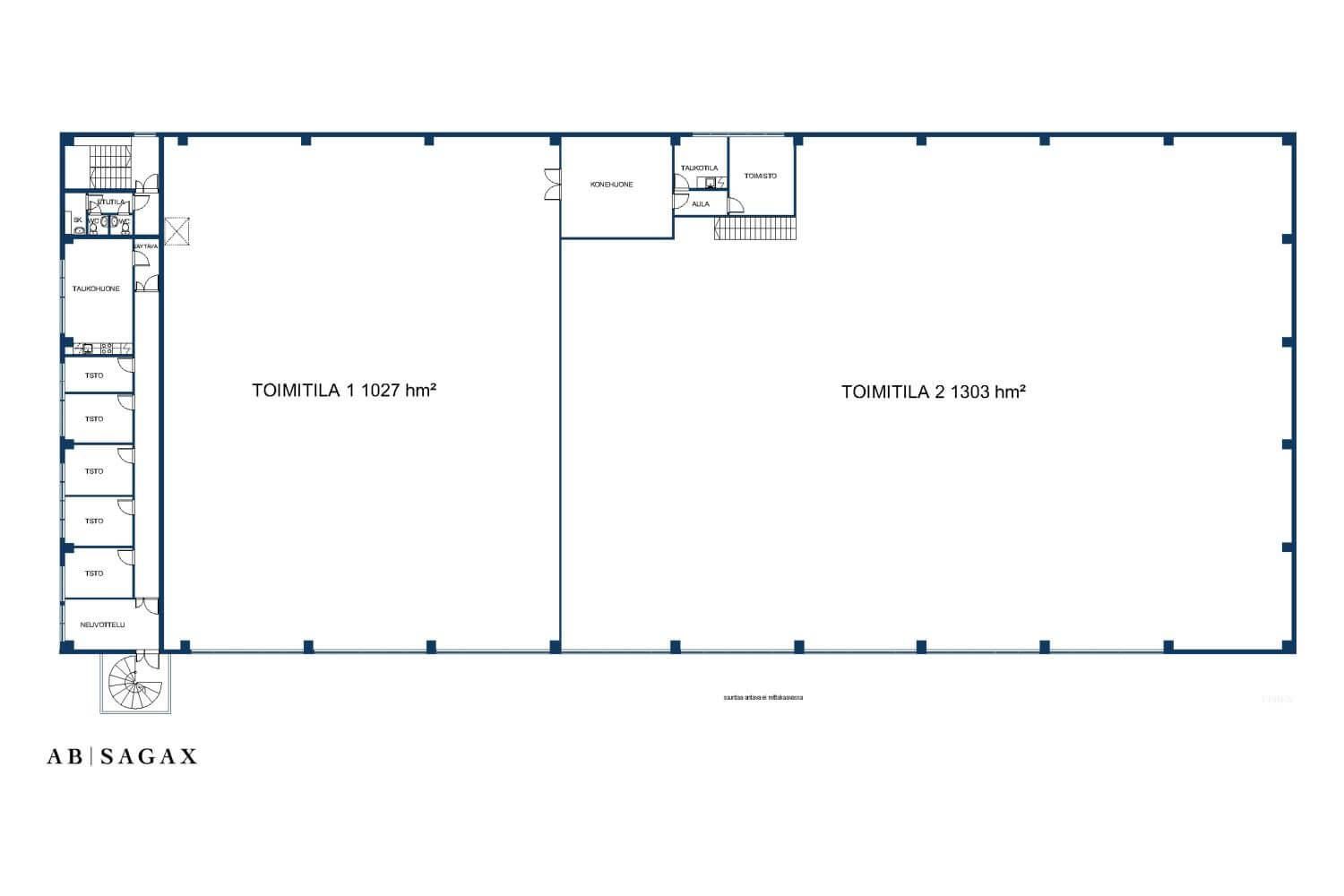
Jyväskylän Savelankadulle rakennettava uudisrakennus, missä on yhteensä jopa 2 331 m² muunneltavaa tilaa, joka suunnitellaan erityisesti kevyeen tuotantoon ja varastoinnin tarpeisiin. Nyt on hyvä mahdollisuus vaikuttaa tilojen teknisiin ratkaisuihin jo suunnitteluvaiheessa.
Tilat
Huoneistoala: 2 331m²
Bruttoala: 2 473 m²
Vapaakorkeus: 8 m
Nosto-ovien koko: 4,2 m x 3 m
Lattian kantavuus 5000 kg/m²
Mahdollisuus siltanosturiin
Rakennuksen paloluokka: P1
Lämmitysmuoto: kaukolämpö
Energiatehokkuusluokka: B
Tyyppi: Tuotanto ja varastointi
Tilojen koot: Muokattavissa
Toimitilat voidaan jakaa tarvittaessa pienemmiksi yksiköiksi.
Sijainti
Alueella toimii mm. metallialan tuotantoyrityksiä, kiinteistönhuolto yrityksiä, teknistä kauppaa.
Savela sijaitsee helppojen kulkuyhteyksien varrella. Jyväskylän keskustaan n. 2,5 km, Sairaala Novaan n. 2 km, Laajavuoreen n. 2 km, Rautpohjaan n. 2 km. Savelan alueella on mm. lounaspaikkoja, ruokakauppoja, huoltoasema ja kuntosali.
Soita tai laita viestiä, niin mennään tutustumaan kohteeseen.
Jyväskylän Savelankadulle rakennettava uudisrakennus, missä on yhteensä jopa 2 331 m² muunneltavaa tilaa, joka suunnitellaan erityisesti kevyeen tuotantoon ja varastoinnin tarpeisiin. Nyt on hyvä mahdollisuus vaikuttaa tilojen teknisiin ratkaisuihin jo suunnitteluvaiheessa.
Tilat
Huoneistoala: 2 331m²
Bruttoala: 2 473 m²
Vapaakorkeus: 8 m
Nosto-ovien koko: 4,2 m x 3 m
Lattian kantavuus 5000 kg/m²
Mahdollisuus siltanosturiin
Rakennuksen paloluokka: P1
Lämmitysmuoto: kaukolämpö
Energiatehokkuusluokka: B
Tyyppi: Tuotanto ja varastointi
Tilojen koot: Muokattavissa
Toimitilat voidaan jakaa tarvittaessa pienemmiksi yksiköiksi.
Sijainti
Alueella toimii mm. metallialan tuotantoyrityksiä, kiinteistönhuolto yrityksiä, teknistä kauppaa.
Savela sijaitsee helppojen kulkuyhteyksien varrella. Jyväskylän keskustaan n. 2,5 km, Sairaala Novaan n. 2 km, Laajavuoreen n. 2 km, Rautpohjaan n. 2 km. Savelan alueella on mm. lounaspaikkoja, ruokakauppoja, huoltoasema ja kuntosali.
Soita tai laita viestiä, niin mennään tutustumaan kohteeseen.
Vapautuu
Kysy
Ota yhteyttä
Pyydä lisätietoa
