Vuokrataan toimistotilat - Tampere
Finlaysoninkatu 2, Keskusta, 33210 Tampere #10863508
Osoite
Finlaysoninkatu 2, 33210 Tampere
Tilatyyppi
Toimistotilaa
168 m2
Muuta
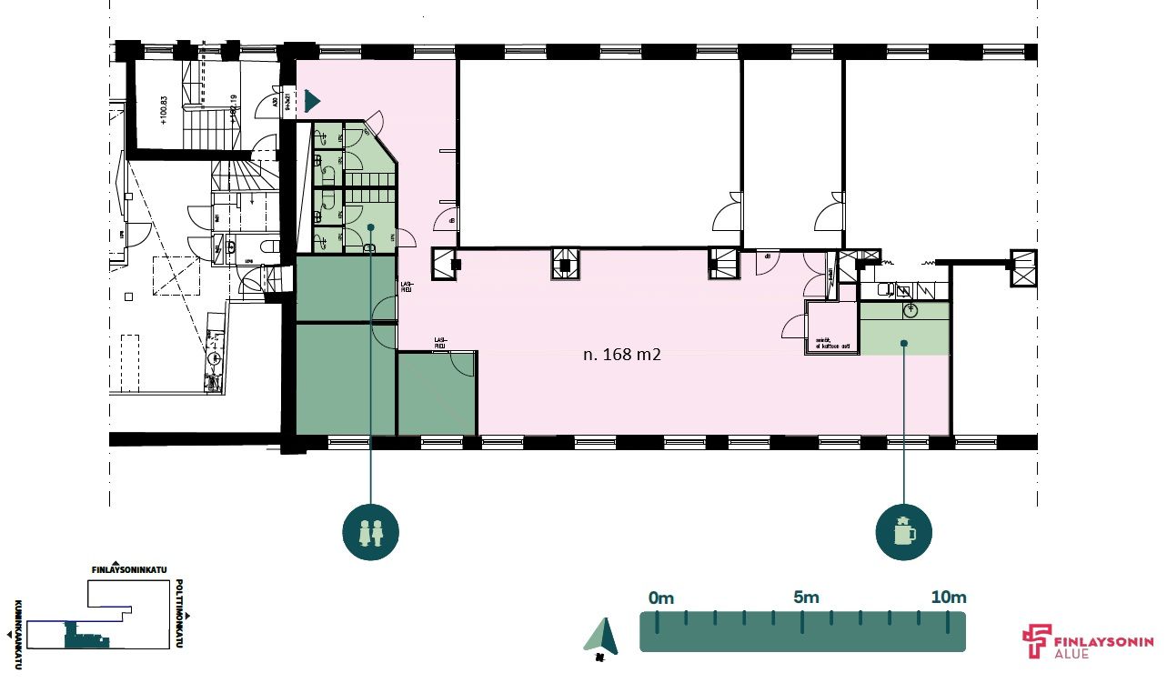
Vuokrataan noin 168 m2 toimistotila Finlaysonin alueelta.
Tilassa on kolme toimistohuonetta, jotka soveltuvat myös neuvottelutiloiksi, sekä avotilaa. Taukokeittiö avotilan yhteydessä. Kaksi wc-tilaa, joissa molemmissa suihku.
Sijainti rakennuksen 3. kerroksessa. Kulku portaita pitkin, ei hissiä.
Tilan ikkunat kahteen suuntaan.
Kysy lisää ja sovi esittely!
Sami Saraste
Myyntipäällikkö, LKV
sami.saraste@catella.com
050 3014 455
Tilanhakijalle palvelumme ovat maksuttomia.
Catella Property Oy on valtakunnallinen toimitilojen vuokraukseen ja myyntiin keskittynyt kiinteistönvälitysyritys.
Kysy paikallisilta ammattitaitoisilta välittäjiltämme myös muita välityksessämme olevia toimitilakohteita.
Välittäjiemme yhteystiedot ja lisää välitettäviä tilakohteita verkkosivuillamme: www.toimitilat.catella.fi.
Ota yhteyttä!
Tilassa on kolme toimistohuonetta, jotka soveltuvat myös neuvottelutiloiksi, sekä avotilaa. Taukokeittiö avotilan yhteydessä. Kaksi wc-tilaa, joissa molemmissa suihku.
Sijainti rakennuksen 3. kerroksessa. Kulku portaita pitkin, ei hissiä.
Tilan ikkunat kahteen suuntaan.
Kysy lisää ja sovi esittely!
Sami Saraste
Myyntipäällikkö, LKV
sami.saraste@catella.com
050 3014 455
Tilanhakijalle palvelumme ovat maksuttomia.
Catella Property Oy on valtakunnallinen toimitilojen vuokraukseen ja myyntiin keskittynyt kiinteistönvälitysyritys.
Kysy paikallisilta ammattitaitoisilta välittäjiltämme myös muita välityksessämme olevia toimitilakohteita.
Välittäjiemme yhteystiedot ja lisää välitettäviä tilakohteita verkkosivuillamme: www.toimitilat.catella.fi.
Ota yhteyttä!
Vapautuu
Heti vapaa
Kerros
3.
Ota yhteyttä
Catella Property Oy
Hämeenkatu 13b A, 33100 Tampere
Näytä puhelinnumero
010 5220 100
Sami Saraste
Näytä puhelinnumero
050 3014 455
Pyydä lisätietoa
