Vuokrataan liiketilat - Oulu
Kiinteistö Oy Oulunsalon Kauppa- ja Palvelukeskus, Karhuojantie 2, Oulunsalo, 90460 Oulu #10863461
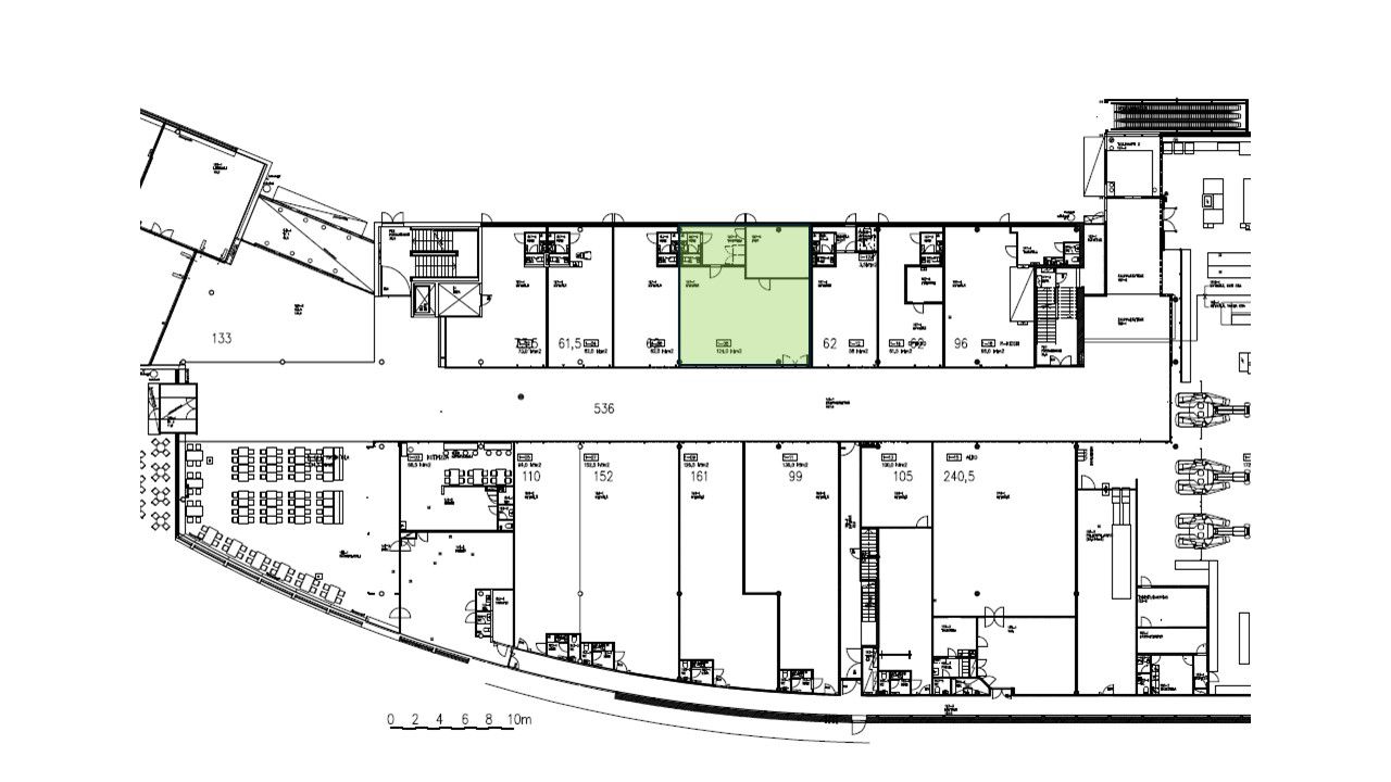
Vapautumassa kiinteistön katutasossa sijaitseva siisti 124m2 liiketila.
Yhdistettävissä kahteen viereiseen liiketilaan.
Tilassa minikeittiö ja wc.
Tervetuloa tutustumaan ja ideoimaan kuinka tämä tila palvelisi yrityksenne tarpeita!
SIJAINTI
Kauppakeskus Kapteeni sijaitsee Oulunsalon kaupunginosan ja samannimisen Oulun kaupungin suuralueen ytimessä. Vilkkaasti liikennöidystä Lentokentäntien risteyksestä pohjoiseen kääntyvä Karhuojantie yhdistyy Hailuodontiehen, joka kulkee läpi koko Oulunsalon asuinalueen ja päättyy rantaan, josta on lauttayhteys noin 1000 asukkaan Hailuotoon. Kauppakeskuksen kohdalta on matkaa lentokentälle vain 1,6 kilometriä ja Oulun keskustaan n. 13 kilometriä.
PALVELUT
Kauppakeskus Kapteeni on oulunsalolaisten monipuolinen lähikeskus – ja monen muunkin matkan varrella. Keskuksen kaupallisen tarjonnan ankkurina on iso 1700-neliöinen K-Supermarket Oulunsalo.
Ehdoton vetovoimatekijä ovat keskuksen monipuoliset palvelut. Kapteeni tarjoaa asiakkailleen mm. kuntosali-, parturi- ja kampaamo- sekä pankki- ja ravintolapalvelut. Myös kunnalliset palvelut ovat kätevästi saman katon alla: keskuksessa toimii sekä Oulun kaupungin hammashoitola että Oulunsalon kirjasto.
Kapteenissa on erittäin hyvät parkkitilat asiakkaille.
Tervetuloa Kapteeniin!
www.kapteeni.fi
Katutasossa
Colliers Finland Oy
Colliers Finland Oy
Saija Ylinen
Leasing Manager
Näytä puhelinnumero
046-875 2828
