Vuokrataan toimistotilat - Oulu
Nuottasaarentie 5, Limingantulli, 90400 Oulu #10863458
Oulun Limingantullin / Nuottasaaren alueelta vapautumassa siistiä toimistotilaa.
Tule, näe ja löydä yrityksellesi muokattavat ja monipuoliset toimistotilat!
Sijainti Limingantullin vilkkaalla kauppa-alueella lähellä keskustan palveluja on mitä mainioin.
Täällä teollisuus- ja liikerakentamiseen suunnatulla alueella Nuottasaarenkadulla, Oulussa, on vuokrattavissa tuotanto- ja toimistotilaa. Kiinteistölle on myönnetty Breeam-sertifikaatti vuonna 2022.
Limingantullin kaikki palvelut ovat kiinteistön välittömässä läheisyydessä. Maukasta lounasta tarjoillaan kiinteistön henkilöstöravintolassa, ja isot päivittäistavarakaupat ja monet liikuntapaikat ovat vieressä helpottamassa arjen sujuvuutta.
Kohteeseen on erittäin helppo saapua julkisilla tai omalla autolla. Bussipysäkille on 350 m matka. Oulun keskustaan ja rautatieasemalle matkaa on noin 3 km ja lentokenttäkin on vain 13 km päässä. Kiinteistön pihassa on erinomaiset asiakaspysäköintimahdollisuudet. Piha-alueella onnistuu helposti tavaran tuonti ja vienti. Vuoden 2024 aikana on tulossa myös sähköautojen latauspisteet.
Kohde on rakennettu aikanaan Nokialle, ja vuosien varrella tiloissa on toiminut mm. HalpaHalli.
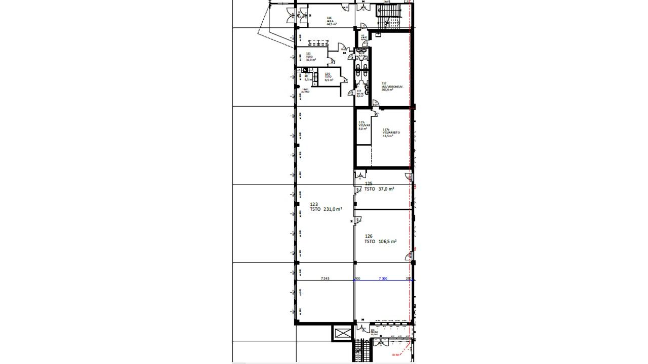
Katutasossa
Colliers Finland Oy
Colliers Finland Oy
Saija Ylinen
Leasing Manager
Näytä puhelinnumero
046-875 2828
