Vuokrataan varastotilat - Kempele
Kiinteistö Oy ZatelliittiPark, Zatelliitintie 17, Ristisuo, 90440 Kempele #10863326
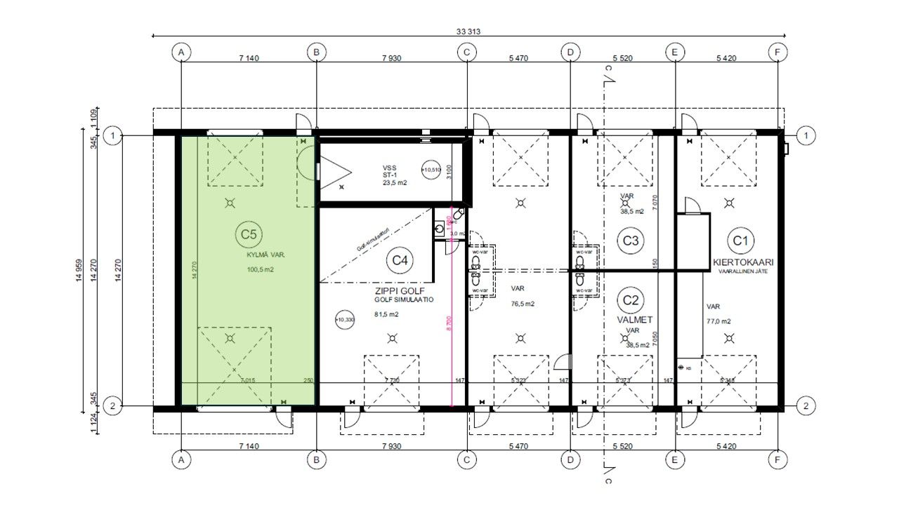
Zatelliitintie 17 Kempele vapautumassa 1.6.2025 100,5m2 lämmittämätön varastotila ja sen yhteydessä oleva VSS-varasto.
Hallissa on molemmin puolin nosto-ovi ja se on läpi ajettavissa.
Tervetuloa Zatelliittipark-kiinteistöön Zatelliitin alueelle, Kempeleen sydämeen, jossa uudehkot toimitilat ja loistava näkyvyys moottoritielle tekevät kiinteistöstä houkuttelevan paikan yrityksille. Sijainti on toimiva kehittyvällä, dynaamisella alueella hyvien liikenneyhteyksien äärellä.
Zatelliitin alueen saavutettavuus on erinomainen. Moottoritie E8:n läheisyys ja kiinteistön runsaat parkkipaikat mahdollistavat sujuvan saapumisen autoilijoille. Hyvät bussiyhteydet (lähin bussipysäkki noin 1 km), sekä Kempeleen rautatieaseman (1,5 km) ja lentokentän läheisyys (noin 10 km), varmistavat Zatelliittiparkin helpon saavutettavuuden niin työntekijöille kuin asiakkaillekin.
Katutasossa
Colliers Finland Oy
Colliers Finland Oy
Saija Ylinen
Leasing Manager
Näytä puhelinnumero
046-875 2828
