Vuokrataan toimistotilat, tuotantotilat, autotalli/-hallitilat - Oulu
Ruskonseläntie 14, 90620 Oulu #10863194
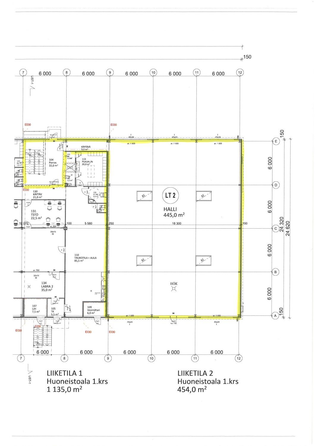
Vuokrataan keväällä 2026 valmistuvasta hallirakennuksesta toinen päätyhalli ja siihen kuuluva toisen kerroksen hyvätasoinen toimistohuoneisto.
Osoite
Ruskonseläntie 14, 90620 Oulu
Tilatyyppi
Toimistotilaa
223 m2
Tuotantotilaa
445 m2
Autotalli/-hallitilaa
445 m2
Yhteensä
668 m2
Pohjapiirros
Vuokra
10,00€/m². Vuokraan lisätään alv, käyttösähkö ja vesi
Vuokraan sisältyy lämpö
Pysäköinti
Piha-alueella runsaasti tilaa
Muuta
Aluetta rakennetaan pääosin kiertotalouteen liittyvää yritystoimintaa ajatellen. Laajat aidatut piha-alueet antavat lisätehokkuutta tilan käyttöön.
Hallitilan vapaa korkeus on n.6m. ProDoor taitto-ovi 4150 x 6000.
Kiinteistölle tulee valokuituliittymä.
Hallitilan vapaa korkeus on n.6m. ProDoor taitto-ovi 4150 x 6000.
Kiinteistölle tulee valokuituliittymä.
Vapautuu
Kohde valmistuu keväällä 2026
Rakennusvuosi
2026
Liitetiedostot
Ota yhteyttä
Pohjois-Suomen Toimitilat Oy
Harjapäänkatu 33, 90400 Oulu
Pekka Valkola
Näytä puhelinnumero
044 311 0555
Pyydä lisätietoa
