Myydään toimistotilat, tuotantotilat, varastotilat, autotalli/-hallitilat - Oulu
Oritkarintie 1b, 90400 Oulu #10863192
Myydään hyvässä kunnossa oleva korjaamo-/teollisuushallirakennus suositulta Oritkarin alueelta!
Hyvätasoisen toimistosiipi palvelee erinomaisesti kokonaisuutta. Hallirakennus on läpiajettava ja hyvät piha-alueet lisäävät kohteen käyttömahdollisuuksia. Rakennusoikeutta on myös vielä jäljellä.
Osoite
Oritkarintie 1b, 90400 Oulu
Tilatyyppi
Toimistotilaa
183 m2
Tuotantotilaa
2015 m2
Varastotilaa
50 m2
Autotalli/-hallitilaa
2015 m2
Yhteensä
2248 m2
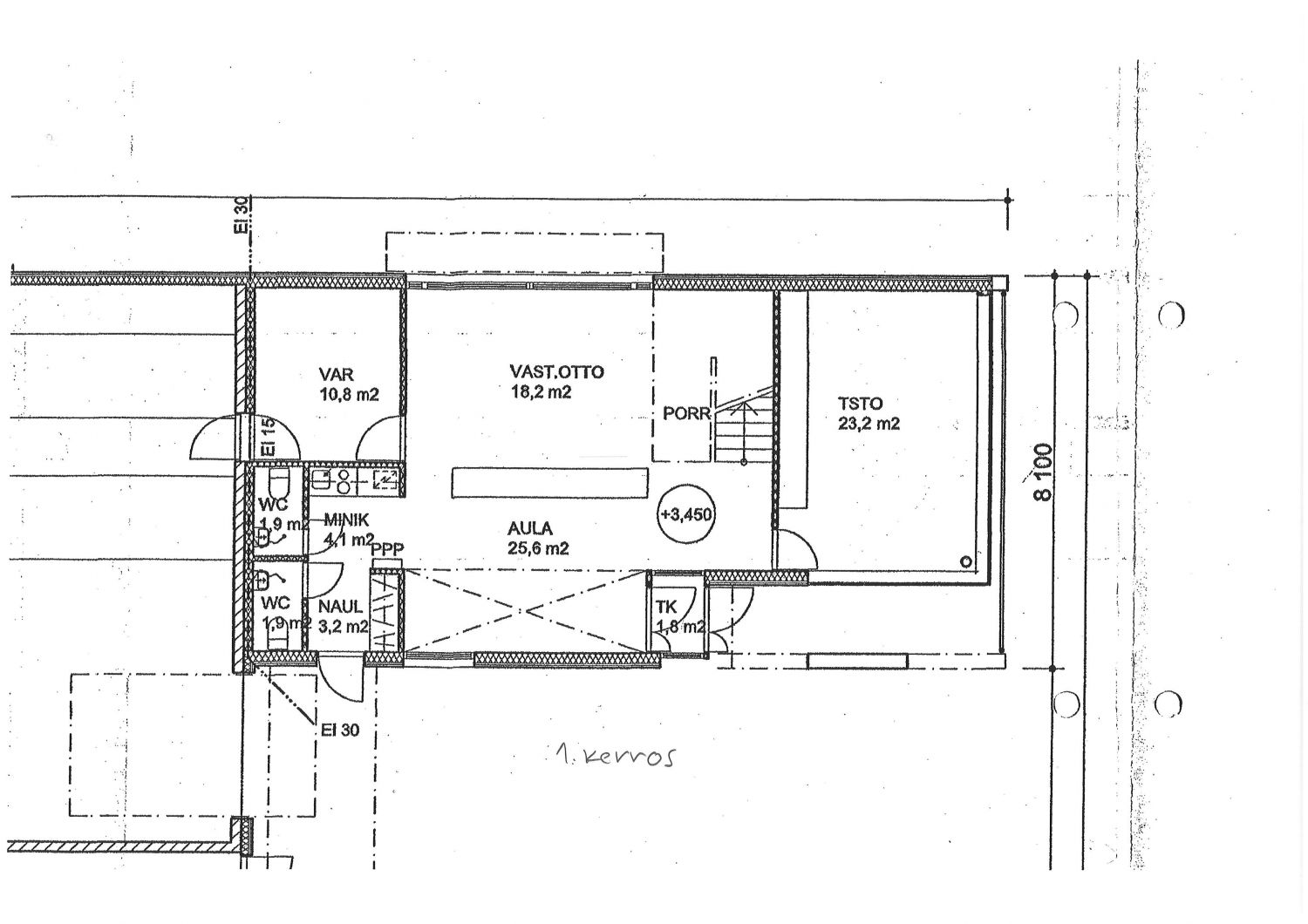
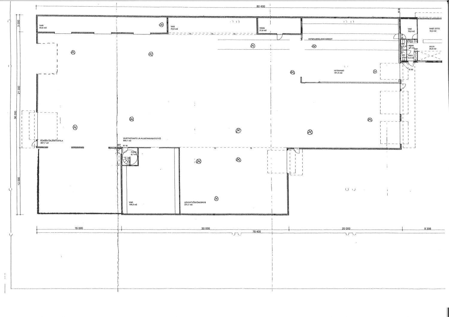
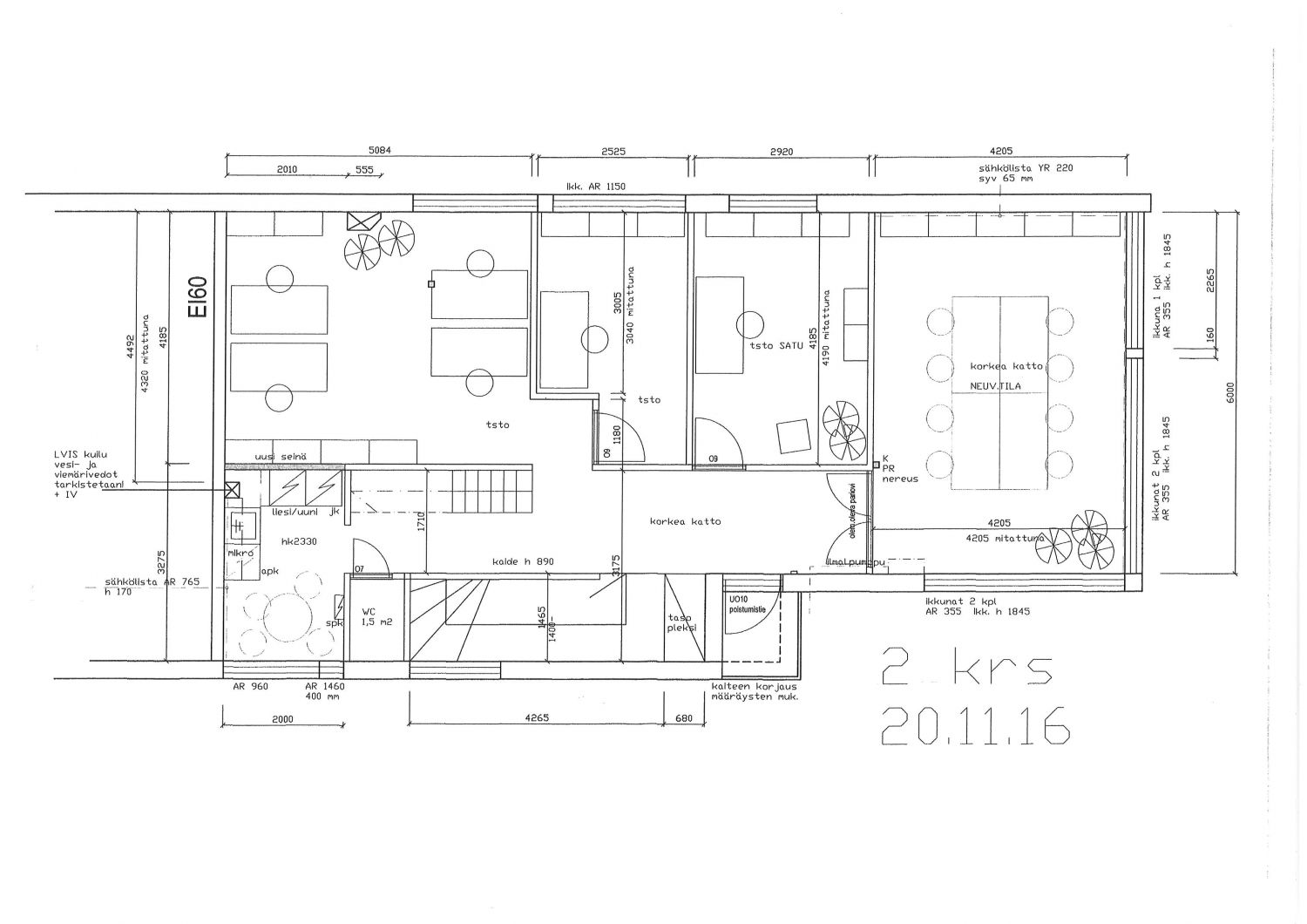
Tilajako
Toimistosiivessa toimistot kahdessa kerroksessa ja varasto kolmannessa keroksessa
Pohjapiirros
Myyntihinta
Velattomana 2.200.000€
Kiinteistö
Oulun kaupungin vuokraoikeus voimassa vuoden 2040 loppuun. Vuokra 22.532€/v.
Pysäköinti
Piha-alueella runsaasti tilaa
Palvelut
Limingantullin
Muuta
Hallissa on runsaasti lattiakaivoja. Hallin korkeus on n. 6m, päänosto-ovet 4,5m x 5,0m, taiteovet toisessa päädyssä 5,5m x 5,0m. Tontilla 2 omaa sähkömuuntamoa, 1250A ja 1000A. Rakennukselle tulee kuitukaapeli.
Kiinteistövero 3.074€.
Kiinteistövero 3.074€.
Lisätietoa saneerauksista
Rakennukselle on tehty laaja perusparannus 2016.
Vapautuu
01.01.2027
Rakennusvuosi
2002
Ota yhteyttä
Pohjois-Suomen Toimitilat Oy
Harjapäänkatu 33, 90400 Oulu
Pekka Valkola
Näytä puhelinnumero
044 311 0555
Pyydä lisätietoa
