Myydään toimistotilat, tuotantotilat, varastotilat, muut tilat - Oulu

Liitintie 38, 90620 Oulu #10863142

Myydään tehokas hyväkuntoinen hallitila suositulta ruskon alueelta!
Tontti aidattu jokaiselta sivulta. Sähköportit kahdella sivulla. Takaosan varastorakennuksessa on 3 erillistä yksikköä joista jokaisessa 3 nosto-ovea. Varastorakennuksessa ei ole lämmitystä.

Osoite
Liitintie 38, 90620 Oulu
Tilatyyppi
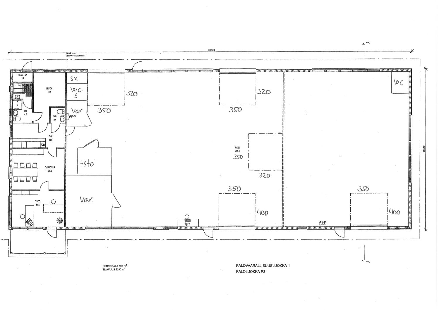
Toimistotilaa
70 m2
Tuotantotilaa
489 m2
Varastotilaa
268 m2
Muuta tilaa
70 m2
Yhteensä
864 m2
Pohjapiirros
Myyntihinta
Velaton hinta 750.000
Kiinteistö
Oulun kaupungin vuokratontti, vuokra-aika 2043 vuoden loppuun.
Pysäköinti
Piha-alueella runsaasti tilaa
Muuta
Tontin vuokra 4086€, kiinteistövero 820€, rakennusten vakuutukset 670€ ja kaukolämpö 4800€/vuosi.
Kaupungin vuokratontin koko on 3562m². Vuokra-aika 31.12.2043 saakka. Rakentamiseen saa käyttää maapinta-alaa vielä n. 200m². Rakennusoikeutta jäljellä n. 900m².
Toimisto-osion päällä hyvää työ-/varastotilaa n. 70m², hallissa lisäksi toimistohuone, 2 varastoa ja 2 wc:tä. Toiseen kerrokseen sisäportaat hallin puolelta.
Vapautuu
Kuukauden kuluttua kaupanteosta
Rakennusvuosi
2008

Näkyvällä paikalla

Ota yhteyttä

Pohjois-Suomen Toimitilat Oy

Harjapäänkatu 33, 90400 Oulu

Pekka Valkola
Näytä puhelinnumero 044 311 0555

  http://www.pstoimitilat.fi
Pyydä lisätietoa

Kohteesta Liitintie 38, Oulu

 

B2B palvelut

LASTAUSRATKAISUT

Mainos
Lastauksien ratkaisut tehokkaammin ja turvallisemmin

HALLIT