Vuokrataan toimistotilat - Oulu
Isokatu 23, Keskusta, 90100 Oulu #10863088
Osoite
Isokatu 23, 90100 Oulu
Tilatyyppi
Toimistotilaa
176 m2
Muuta
Kauppakeskus Valkea sijaitsee aivan Oulun ydinkeskustassa.
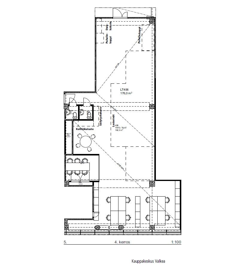
Valkean 4. kerroksessa on vuokrattavana 176 m2 toimistohuoneisto.
Toimistossa on oma keittiövarustus, 2 kpl wc-tilaa, neukkarihuone sekä lasiseinällä eriytetty useamman työpisteen tila.
Huoneistossa on jäähdytys sekä koneellinen ilmanvaihto. Isot lasi-ikkunat kauppakeskuskäytävälle.
Kivisydämen parkkihallista on suora hissiyhteys kerrosaulaan, samoin Kauppakeskuksen rullaportailla pääsee kerrokseen.
Pinta-ala: Toimistotila n. 176 m2
Huoneisto vapautuu 1.10.2026
Vuokra:
5781,60 €/kk (32,85 €/m2/kk) + alv
Vuokra sisältää ylläpitovuokran 5,85 €/m2/kk joka tarkistetaan vuosittain.
Vuokra sidotaan indeksiin, tarkastus 2x vuodessa, minimikorotus 1,5%.
Hoitokulut:
Käyttösähkö, vesi- ja jätevesimaksu mittauksen ja kulutuksen mukaan. Ilmanvaihdon kautta tuotetun jäähdytyksen/ lämmityksen energia- huolto- ja kunnossapitokustannukset sisältyvät ylläpitovuokraan. Mikäli vuokrakohteessa on yleisjäähdytystä tai -lämmitystä täydentävä tilakohtainen jäähdytysjärjestelmä, vuokralainen vastaa sen energia-, huolto- ja kunnossapitokustannuksista toteutuman mukaan.
Soita ja kysy lisätietoja!
Valkean 4. kerroksessa on vuokrattavana 176 m2 toimistohuoneisto.
Toimistossa on oma keittiövarustus, 2 kpl wc-tilaa, neukkarihuone sekä lasiseinällä eriytetty useamman työpisteen tila.
Huoneistossa on jäähdytys sekä koneellinen ilmanvaihto. Isot lasi-ikkunat kauppakeskuskäytävälle.
Kivisydämen parkkihallista on suora hissiyhteys kerrosaulaan, samoin Kauppakeskuksen rullaportailla pääsee kerrokseen.
Pinta-ala: Toimistotila n. 176 m2
Huoneisto vapautuu 1.10.2026
Vuokra:
5781,60 €/kk (32,85 €/m2/kk) + alv
Vuokra sisältää ylläpitovuokran 5,85 €/m2/kk joka tarkistetaan vuosittain.
Vuokra sidotaan indeksiin, tarkastus 2x vuodessa, minimikorotus 1,5%.
Hoitokulut:
Käyttösähkö, vesi- ja jätevesimaksu mittauksen ja kulutuksen mukaan. Ilmanvaihdon kautta tuotetun jäähdytyksen/ lämmityksen energia- huolto- ja kunnossapitokustannukset sisältyvät ylläpitovuokraan. Mikäli vuokrakohteessa on yleisjäähdytystä tai -lämmitystä täydentävä tilakohtainen jäähdytysjärjestelmä, vuokralainen vastaa sen energia-, huolto- ja kunnossapitokustannuksista toteutuman mukaan.
Soita ja kysy lisätietoja!
Lisätietoa saneerauksista
2016
Vapautuu
Kysy
Kerros
4
Ota yhteyttä
Catella Property Oy
Kirkkokatu 6, 5. krs, 90100 OULU
Näytä puhelinnumero
010 5220 100
Pekka Laurila-Harju
Näytä puhelinnumero
010 5220 603
Pyydä lisätietoa
