Vuokrataan toimistotilat - HELSINKI
RUOHOLAHDENKATU 14, KAMPPI, 00180 HELSINKI #10862911
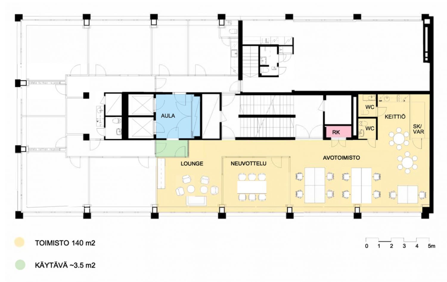
Kampissa sijaitseva toimistotalo, jossa remontoituja toimistotiloja kivoin kaupunkimeiasemin. Työpisteeltä aukeaa näkymät vehreään Lastenlehdon puistoon, tunnelmallisiin Ruoholahden villoihin ja Kampin kiehtoviin kortteleihin. Kiinteistön aula on juuri remontoitu tyylikkäästi ja toimistotilat räätälöidään aina käyttäjilleen.
Osoite
RUOHOLAHDENKATU 14, 00180 HELSINKI
Tilatyyppi
Toimistotilaa
140 m2
Vapautuu
Heti vapaa
Ota yhteyttä
Pyydä lisätietoa
