Vuokrataan toimistotilat - HELSINKI
MALMINKATU 16, KAMPPI, 00100 HELSINKI #10862887
Voimatalo yhdistää saumattomasti historiallisen arvon ja modernit standardit. Rakennuksesta löytyy runsaasti coworking-tilaa, neuvottelu- ja taukohuoneita.Kellarikerrokseen rakennetaan uusi sosiaali- ja spatilat. Talon autohallissa on 33 pysäköintipaikkaa ja 22 pyöräpaikkaa.
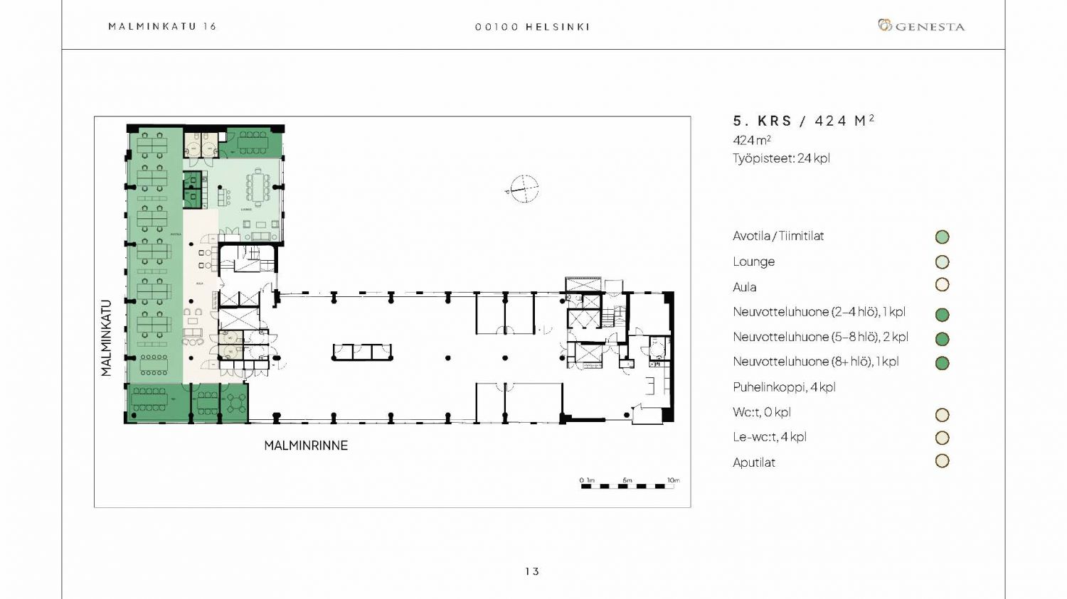
Toimistotila viidennessä kerroksessa. Tila on tällä hetkellä raakapinnoilla ja räätälöidään kokonaan vuokralaisen tarpeiden mukaan.
Osoite
MALMINKATU 16, 00100 HELSINKI
Tilatyyppi
Toimistotilaa
424 m2
Tila soveltuu
Coworking
Vapautuu
Heti vapaa
Ota yhteyttä
Pyydä lisätietoa
