Vuokrataan toimistotilat - Helsinki
Bulevardi 7, Keskusta, 00120 Helsinki #10862698
Uutta ja erittäin edustavaa toimistotilaa keskeisellä sijainnilla, aivan Helsingin sydämessä.
Osoite
Bulevardi 7, 00120 Helsinki
Tilatyyppi
Toimistotilaa
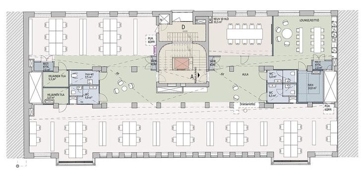
482 m2
Pohjapiirros
Kiinteistö
Tästä tilasta on uskomattoman upeat 7. kerroksen näkymät kauniille ja verheälle Bulevardille! Tilat valmistuneet täydellisestä peruskorjauksesta ja ovat lattiapinnoitetta vaille käyttövalmiit (huom. kuvat eri kerroksesta, esimerkkilattia). Oma keittiö, neuvotteluhuone ja useampi wc. Ikkunoiden alkuperäiset tammipuitteet on kunnostettu ja ne huokuvat rakennuksen aikakauden tyylikästä tunnelmaa. Runsaasti ikkunoita kahteen suuntaan ja kaksi kaunista erkkeriä maisemien ihailuun. Tilaan kulku portaita tai hissillä.
Bulevardi 7 sijaitsee yhdellä Helsingin ikonisista pääkaduista, keskellä haluttuja liike-elämän ja designin ydinkortteleita. Vaalea funktionalismin helmi valmistui vuonna 1939 Varman ensimmäiseksi pääkonttoriksi, liiketiloiksi ja edustusasunnoiksi. Vuonna 2022 kiinteistö avautuu arvokkaan tyylinsä säilyttäneenä, mutta täydellisesti modernisoituna toimistotalona.
Bulevardi 7 tarjoaa tilaratkaisuja kahdessa Oiva Kallion suunnittelemassa rakennuksessa ja niitä yhdistävässä matalassa siivessä. Suojaisan ja yhteisöllisen sisäpihan aarteena ovat säilyneet kuvanveistäjä Emil Filénin teokset: merenneitopatsas sekä Varman alkuperäisen pääsisäänkäynnin korkokuvat.
Katutasossa sijaitsevan ravintolan sisäpihan terassi kutsuu viihtymään myös toimistopäivän jälkeen.
Bulevardi 7:n sijainti tarjoaa lukuisia lounasravintoloita sekä kulttuuri- ja majoituspalveluita työhön, edustamiseen ja vapaa-aikaan. Ydinkeskustan julkiset liikenneyhteydet tekevät liikkumisesta helppoa.
Ilmoituksen sisäkuvat ovat yleiskuvia kiinteistön eri tiloista.
Bulevardi 7 sijaitsee yhdellä Helsingin ikonisista pääkaduista, keskellä haluttuja liike-elämän ja designin ydinkortteleita. Vaalea funktionalismin helmi valmistui vuonna 1939 Varman ensimmäiseksi pääkonttoriksi, liiketiloiksi ja edustusasunnoiksi. Vuonna 2022 kiinteistö avautuu arvokkaan tyylinsä säilyttäneenä, mutta täydellisesti modernisoituna toimistotalona.
Bulevardi 7 tarjoaa tilaratkaisuja kahdessa Oiva Kallion suunnittelemassa rakennuksessa ja niitä yhdistävässä matalassa siivessä. Suojaisan ja yhteisöllisen sisäpihan aarteena ovat säilyneet kuvanveistäjä Emil Filénin teokset: merenneitopatsas sekä Varman alkuperäisen pääsisäänkäynnin korkokuvat.
Katutasossa sijaitsevan ravintolan sisäpihan terassi kutsuu viihtymään myös toimistopäivän jälkeen.
Bulevardi 7:n sijainti tarjoaa lukuisia lounasravintoloita sekä kulttuuri- ja majoituspalveluita työhön, edustamiseen ja vapaa-aikaan. Ydinkeskustan julkiset liikenneyhteydet tekevät liikkumisesta helppoa.
Ilmoituksen sisäkuvat ovat yleiskuvia kiinteistön eri tiloista.
Vapautuu
Heti
Kerros
6
Energiatehokkuusluokka
Ei lain edellyttämää energiatodistusta
Näkyvällä paikalla
Hissi
Ota yhteyttä
ScanReal Oy LKV
Opus Business Park
Hitsaajankatu 24
00810 Helsinki
info@scanreal.fi
Puh:
Näytä puhelinnumero
020 730 8830
Sopivat toimitilat yhdellä otolla!
Kartoitamme toimitilatarpeesi ja etsimme yrityksellesi parhaiten sopivat vapaat toimitilat. Koska vuokranantajat maksavat palvelumme, on tämä yrityksellesi veloituksetonta.
OTA YHTEYTTÄ - SOVI NÄYTTÖ!
Kaikki kohteemme eivät ole netissä, kerro tilatarpeesi niin kartoitamme vaihtoehdot.
Palvelumme on tilanhakijalle ilmainen
Pyydä lisätietoa
