Vuokrataan liiketilat - Iisalmi
Kyllikinkatu 4, 74100 Iisalmi #10862242
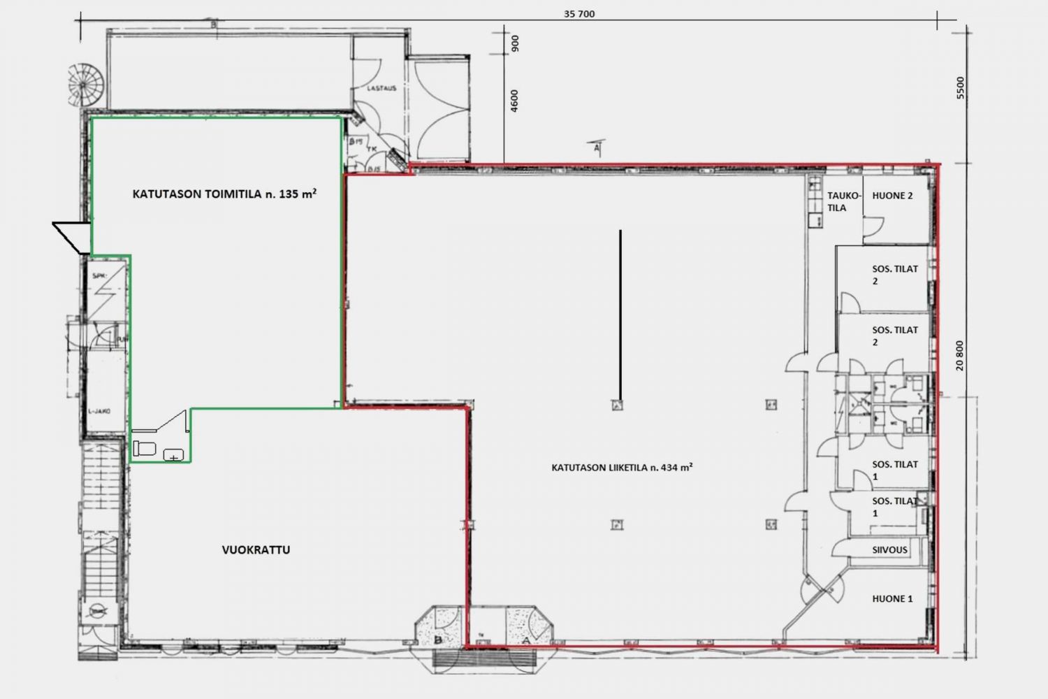
Monipuolinen 434 m² liiketila Iisalmen sydämessä - erinomainen liikenneyhteys
Kyllikinkatu 4:ssä sijaitseva laadukas liiketila tarjoaa poikkeukselliset puitteet monipuoliseen liiketoimintaan. Iisalmen keskustassa sijaitseva kohde hyötyy erinomaisista liikenneyhteyksistä - juna-asema on vain 200 metrin päässä, mikä takaa sujuvan saavutettavuuden niin asiakkaille kuin henkilökunnalle.
Tilava 434 neliömetrin toimitila soveltuu monenlaiseen käyttöön, kuten studioksi, liikuntatilaksi näyttelytilaksi, koulutuskeskukseksi, liikuntatiloiksi tai myymäläksi. Kiinteistö sisältää käytännölliset sosiaaliset tilat, työhuoneen ja taukotilan, jotka mahdollistavat sujuvan päivittäisen toiminnan. Lisäksi on mahdollisuus vuokrata viereinen 135 neliömetrin työ- tai varastotila, mikä antaa joustavuutta toiminnan laajentamiseen.
Kustannukset on järjestetty käytännöllisesti: lämmityskulut sisältyvät vuokraan, kun taas vesi- ja sähkökulut laskutetaan erillismaksuna. Vuokrasopimus tehdään toistaiseksi voimassaolevana, ja alkuun toivotaan 12 kuukauden sitoutumisaikaa. Vakuutena on kolmen kuukauden vuokraa vastaava summa.
Varaa esittely jo tänään ja tutustu tämän ainutlaatuisen liiketilan tarjoamiin mahdollisuuksiin!
Aspa Palvelut Oy
Lassila&Tikanoja Oyj
Asunnot yksityisillä

Fine LKV
Minna Moisio
Toimitilavuokraus, LKV
Näytä puhelinnumero
0505417349
minna@finelkv.fi
Leväsentie 2, 70700 Kuopio
Yliopistonkatu 28, 40100 Jyväskylä
Toimin kaupallisena managerina ja toimitilavuokraajana, otathan yhteyttä jos mietit mahdollisia muutostöitä tai esillä olevista toimitiloista ei löydy sitä mitä etsit. Selvitetään muut tila mahdollisuudet. Asiakaslähtöisyys on minulle tärkeää sekä asioiden sujuvuus. Ota yhteyttä, mielelläni autan sinua.