Vuokrataan toimistotilat, liiketilat, tuotantotilat, varastotilat - Nokia
Rounionkatu 128, Kolmenkulma, 37150 Nokia #10862204
Monikäyttötilaa Kolmenkulmassa
Osoite
Rounionkatu 128, 37150 Nokia
Tilatyyppi
Toimistotilaa
75 m2
Liiketilaa
75 m2
Tuotantotilaa
75 m2
Varastotilaa
63 m2
Yhteensä
63 - 75 m2
Kiinteistö
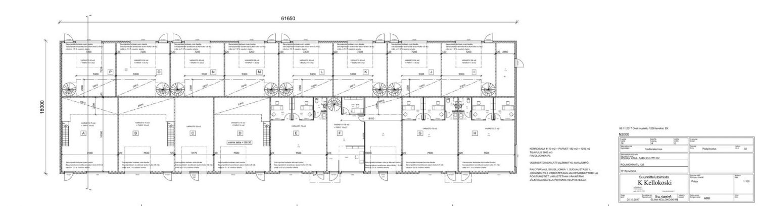
Nokian Kolmenkulmassa monikäyttötilaa isoin ikkunoin
Kamipark Kuutti-rakennuksessa on vuokrattavana kulmassa sijaitsevaa monikäyttötilaa. Rakennus sijaitsee vilkkaan Rounionkadun varressa. Kokonaan asfaltoitu suuri piha-alue jossa on hyvin pysäköintitilaa. Kolmenkulman ABC:lle on matkaa 750 m ja moottoritien liittymään 1,5 km. Lähin kauppakeskus on Tesomalla 4 km ja Tampereen keskustaan on matkaa 15 km.
Hallikiinteistö on laadukas ja kestävä betonirakenteinen. Hallin runko ja tilojen väliset ovat seinät betonia: hyvin ääntä eristävä, tukeva ja kestävä rakenne. Lämmitysmuotona on käyttökustannuksiltaan edullinen maalämpö ja vesikiertoinen lattialämmitys. Lämmitys sisältyy vuokraan!
Vuokrattavissa ikkunallinen, valoisa. Tilassa on suuri ikkuna pihaan ja käyntiovi. Tilan koko on 75m2. Tila koostuu avarasta tilasta, kahdesta erillisestä huoneesta, minikeittiöstä ja wc-tilasta.
Lattioissa on muovimatto, jonka voi tarvittaessa poistaa, alla kuivasirote. Tilassa on viilentävä ilmalämpöpumppu, lisäksi koneellinen poistoilma lämmön talteenotolla. Tämä tila soveltuu toimistoksi, noutomyymäläksi, palveluntuottajille, näyttelytilaksi, tuotantoon ja vaikka mihin.
Ominaisuudet:
-Asfaltoitu suuri piha-alue
-Omat merkityt autopaikat
-Kiinteistönhoito sisältyy
-Minikeittiö
-WC jossa suihkuvaraus
-Valomainokselle varaus
-Voimavirta 16A
-Vesikiertoinen lattialämmitys, lämmitys sisältyy vuokraan
-Viilentävä ilmalämpöpumppu
-Koneellinen poistoilma lämmön talteenotolla
-Hiekan- ja öljynerotuskaivo
-Lattiassa kuivasirotepinnoitteen päällä muovimatto (poistettavissa)
-Suuri ikkuna etupihan suuntaan
Samasta kiinteistöstä löytyy myös vuokralle kompakti 63m2 varasto nosto-ovella.
Vuokrataan vain alvilliseen käyttöön.
Kamipark Kuutti-rakennuksessa on vuokrattavana kulmassa sijaitsevaa monikäyttötilaa. Rakennus sijaitsee vilkkaan Rounionkadun varressa. Kokonaan asfaltoitu suuri piha-alue jossa on hyvin pysäköintitilaa. Kolmenkulman ABC:lle on matkaa 750 m ja moottoritien liittymään 1,5 km. Lähin kauppakeskus on Tesomalla 4 km ja Tampereen keskustaan on matkaa 15 km.
Hallikiinteistö on laadukas ja kestävä betonirakenteinen. Hallin runko ja tilojen väliset ovat seinät betonia: hyvin ääntä eristävä, tukeva ja kestävä rakenne. Lämmitysmuotona on käyttökustannuksiltaan edullinen maalämpö ja vesikiertoinen lattialämmitys. Lämmitys sisältyy vuokraan!
Vuokrattavissa ikkunallinen, valoisa. Tilassa on suuri ikkuna pihaan ja käyntiovi. Tilan koko on 75m2. Tila koostuu avarasta tilasta, kahdesta erillisestä huoneesta, minikeittiöstä ja wc-tilasta.
Lattioissa on muovimatto, jonka voi tarvittaessa poistaa, alla kuivasirote. Tilassa on viilentävä ilmalämpöpumppu, lisäksi koneellinen poistoilma lämmön talteenotolla. Tämä tila soveltuu toimistoksi, noutomyymäläksi, palveluntuottajille, näyttelytilaksi, tuotantoon ja vaikka mihin.
Ominaisuudet:
-Asfaltoitu suuri piha-alue
-Omat merkityt autopaikat
-Kiinteistönhoito sisältyy
-Minikeittiö
-WC jossa suihkuvaraus
-Valomainokselle varaus
-Voimavirta 16A
-Vesikiertoinen lattialämmitys, lämmitys sisältyy vuokraan
-Viilentävä ilmalämpöpumppu
-Koneellinen poistoilma lämmön talteenotolla
-Hiekan- ja öljynerotuskaivo
-Lattiassa kuivasirotepinnoitteen päällä muovimatto (poistettavissa)
-Suuri ikkuna etupihan suuntaan
Samasta kiinteistöstä löytyy myös vuokralle kompakti 63m2 varasto nosto-ovella.
Vuokrataan vain alvilliseen käyttöön.
Vapautuu
Kysy
Kerros
1.
Ota yhteyttä
Logistila Oy
Kauppakatu 14, 33210 TAMPERE
Jukka Nukari
Näytä puhelinnumero
0440759789
Pyydä lisätietoa
