Myydään liiketilat, tuotantotilat, varastotilat - Nokia
Rounionkatu 128, Kolmenkulma, 37150 Nokia #10862180
Myydään monitoimitila Kolmenkulmassa
Osoite
Rounionkatu 128, 37150 Nokia
Tilatyyppi
Liiketilaa
75 m2
Tuotantotilaa
75 m2
Varastotilaa
75 m2
Yhteensä
75 m2
Myyntihinta
None
Kiinteistö
Myydään Nokian ja Tampereen rajalla Kolmenkulmassa monitoimitila
Kiinteistö Kuutti sijaitsee Kolmenkulman ABC:n lähistöllä, moottoritien toisella puolen. Kyseessä on vahvasti kasvava alue.
Laadukas ja kestävä rakennus
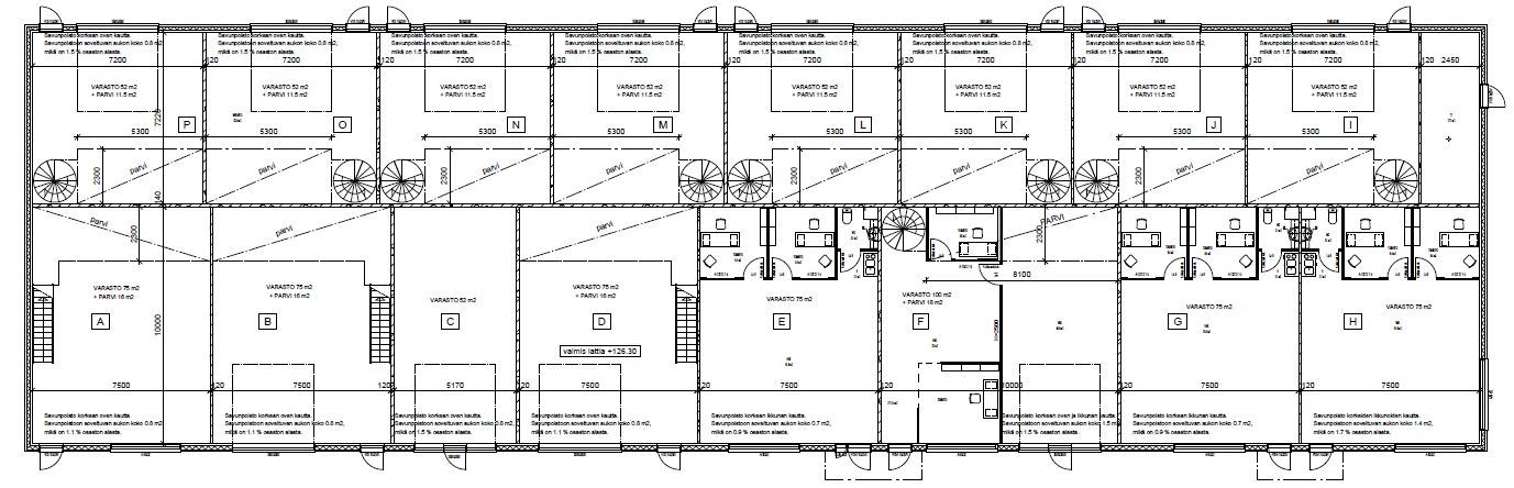
Tila sopii ja muuntuu joustavasti esim. liike-, tuotanto-, varasto- ja toimistotilaksi. Hallin runko ja halliosakkeiden väliset ovat seinät betonia: hyvin ääntä eristävä, tukeva ja kestävä rakenne. Lämmitysmuotona on käyttökustannuksiltaan edullinen maalämpö ja vesikiertoinen lattialämmitys. Korkeus on noin 5 metriä.
Varustelu:
Erillinen käyntiovi
Lattiakaivo
Öljynerotuskaivo + hiekanerotuskaivo
Minikeittiö ja WC
Kohdekohtaisesti wc-pesutila joko suihkukaapilla tai suihkuvarauksella
Teollisuussirote tai epoksimaalipinnoitus lattiassa
Koneellinen ilmanvaihto
Kiinteistöpalvelu
Asfaltoitu piha
Voimavirta
Osassa sähköiset nosto-ovet
Osassa 75 m2 tiloissa toimistohuoneet parvella, osassa alhaalla, toimisto/myymälä/varasto
Tilat myydään vain alvilliseen käyttöön.
Tiloja on samassa korttelissa useammassa rakennuksessa, kysy tilannetta.
Tule tutustumaan tähän laadukkaaseen betonielementtirunkoiseen kohteeseen Kolmenkulmassa, ota yhteyttä niin sovitaan tapaaminen.
Kiinteistö Kuutti sijaitsee Kolmenkulman ABC:n lähistöllä, moottoritien toisella puolen. Kyseessä on vahvasti kasvava alue.
Laadukas ja kestävä rakennus
Tila sopii ja muuntuu joustavasti esim. liike-, tuotanto-, varasto- ja toimistotilaksi. Hallin runko ja halliosakkeiden väliset ovat seinät betonia: hyvin ääntä eristävä, tukeva ja kestävä rakenne. Lämmitysmuotona on käyttökustannuksiltaan edullinen maalämpö ja vesikiertoinen lattialämmitys. Korkeus on noin 5 metriä.
Varustelu:
Erillinen käyntiovi
Lattiakaivo
Öljynerotuskaivo + hiekanerotuskaivo
Minikeittiö ja WC
Kohdekohtaisesti wc-pesutila joko suihkukaapilla tai suihkuvarauksella
Teollisuussirote tai epoksimaalipinnoitus lattiassa
Koneellinen ilmanvaihto
Kiinteistöpalvelu
Asfaltoitu piha
Voimavirta
Osassa sähköiset nosto-ovet
Osassa 75 m2 tiloissa toimistohuoneet parvella, osassa alhaalla, toimisto/myymälä/varasto
Tilat myydään vain alvilliseen käyttöön.
Tiloja on samassa korttelissa useammassa rakennuksessa, kysy tilannetta.
Tule tutustumaan tähän laadukkaaseen betonielementtirunkoiseen kohteeseen Kolmenkulmassa, ota yhteyttä niin sovitaan tapaaminen.
Vapautuu
Kysy
Ota yhteyttä
Logistila Oy
Kauppakatu 14, 33210 TAMPERE
Jukka Nukari
Näytä puhelinnumero
0440759789
Pyydä lisätietoa
