Vuokrataan varastotilat - Kaarina
KOY Krossin Talliosake tila 14, Peltsaarenkatu 2, 20780 Kaarina #10861807
Krossin Talliosakkeelta monikäyttöinen varasto, autotalli, harraste-, toimitila 14.
Osoite
Peltsaarenkatu 2, 20780 Kaarina
Tilatyyppi
Varastotilaa
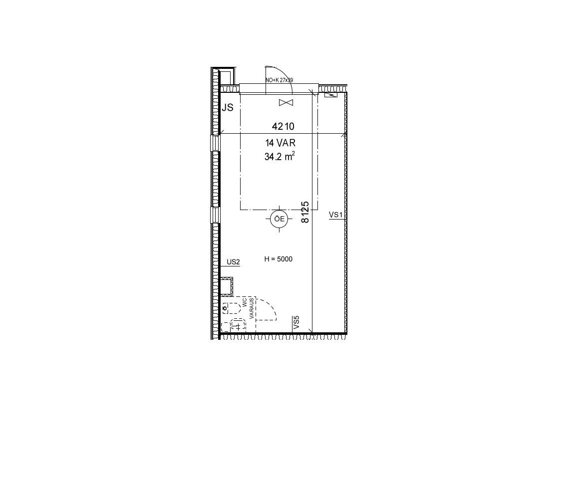
34 m2
Vuokra
480,00 €/kk
Kiinteistö
KOY Krossin Talliosake
Sijainti
Krossin Talliosake sijaitsee Kaarinassa, loistavien liikenneyhteyksien varrella Helsingin valtatie 1:n eteläisellä puolella. Skanssin laajat palvelut ovat vain noin kahden minuutin ajomatkan päässä ja Turun keskustaan ajomatkaa kertyy noin 10 minuuttia. Lisäksi aivan lähiympäristöstä löytyy paljon muita palveluita.
Muuta
Sisäkuva toistaiseksi viitteellinen.
Moottoroitu nosto-ovi erillisellä käyntiovella. Autolla sisään ajettava tila. Tilamitat: 8,10 (Pituus) 4,20 (Leveys) 5,00 (Korkeus). Ovimitat: 2,70 (Leveys) 3,90 (Korkeus).
Käyttötarkoitusesimerkkejä: - toimitila - varastotila - yrityksen työtarvikevarasto / kalustovarasto - kimppatalli - harrastetila - bändikämppä - autotalli - moottoripyörätalli - mönkijätalli. Tila ei sovellu autokorjaamoksi eikä autopesulaksi.
Tila on sähkölämmitteinen. Vuokralainen tekee tilaan oman sähkösopimuksen. Vesi- ja sähkömaksu kulutuksen mukaan. Vakuus kahden kuukauden vuokraa vastaava määrä. Haetaan pitkäaikaista vuokralaista. Luottotiedot tarkistetaan.
Talliosake tuottaa joustavasti muunneltavia hallitiloja ympäri Suomen, joita yritykset ja yksityishenkilöt käyttävät tukikohtinaan erilaisille toiminnoille: yritys- ja liiketoimintaan, varastointiin sekä harrastuksiin.
Moottoroitu nosto-ovi erillisellä käyntiovella. Autolla sisään ajettava tila. Tilamitat: 8,10 (Pituus) 4,20 (Leveys) 5,00 (Korkeus). Ovimitat: 2,70 (Leveys) 3,90 (Korkeus).
Käyttötarkoitusesimerkkejä: - toimitila - varastotila - yrityksen työtarvikevarasto / kalustovarasto - kimppatalli - harrastetila - bändikämppä - autotalli - moottoripyörätalli - mönkijätalli. Tila ei sovellu autokorjaamoksi eikä autopesulaksi.
Tila on sähkölämmitteinen. Vuokralainen tekee tilaan oman sähkösopimuksen. Vesi- ja sähkömaksu kulutuksen mukaan. Vakuus kahden kuukauden vuokraa vastaava määrä. Haetaan pitkäaikaista vuokralaista. Luottotiedot tarkistetaan.
Talliosake tuottaa joustavasti muunneltavia hallitiloja ympäri Suomen, joita yritykset ja yksityishenkilöt käyttävät tukikohtinaan erilaisille toiminnoille: yritys- ja liiketoimintaan, varastointiin sekä harrastuksiin.
Vapautuu
01.06.2026
Katutasossa
Näkyvällä paikalla
Ota yhteyttä
Talliosake Oy
Jani Sanevuori
Aluemyyntipäällikkö Etelä-Suomi, Vuokrauspalvelu, LVV
Näytä puhelinnumero
050 361 4814
Pyydä lisätietoa
