Vuokrataan varastotilat - Kirkkonummi
KOY Sundsbergin Talliosake 1 tila 15, Sundsbergin yritystie 9, 02450 Kirkkonummi #10861795
Sundsbergin Talliosakkeelta monikäyttöinen, ikkunallinen ja valoisa päätyvarasto, autotalli, harraste-, toimitila 15. Tilassa jo valmiina parvi sekä wc.
Osoite
Sundsbergin yritystie 9, 02450 Kirkkonummi
Tilatyyppi
Varastotilaa
68 m2
Vuokra
1100,00 €/kk
Kiinteistö
KOY Sundsbergin Talliosake 1
Sijainti
Sundsbergin Talliosake 1 sijaitsee aivan Espoon länsirajan tuntumassa. Hallilta on näkyvyys Länsiväylälle ja erinomaisten kulkuyhteyksien ansiosta liikkuminen on helppoa niin omalla autolla kuin julkisilla. Alueen kehitys on huimassa nousukiidossa alueelle sijoittuvan Microsoftin datakeskuksen sekä muiden toimisto- ja tuotantotilojen rakennussuunnitelmien myötä.
Muuta
Vuokrataan vain yritysasiakkaille – vuokraan lisätään ALV 25,5%.
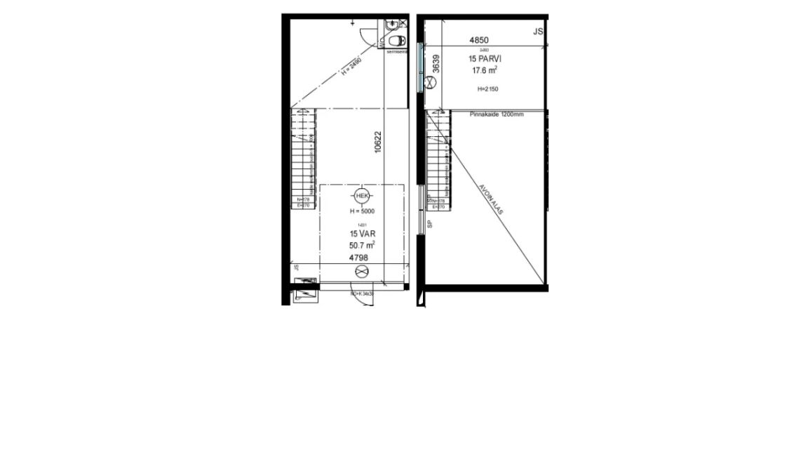
Tilan lattiapinta-ala on 51 m² ja parven 17 m². Yhteispinta-ala 68 m². Moottoroitu nosto-ovi erillisellä käyntiovella. Autolla sisään ajettava tila. Tilamitat: 10,62 (Pituus)
4,79 (Leveys) 5,00 (Korkeus). Ovimitat: 3,40 (Leveys) 3,90 (Korkeus).
Käyttötarkoitusesimerkkejä: - toimitila - varastotila - yrityksen työtarvikevarasto / kalustovarasto - kimppatalli - harrastetila - bändikämppä - autotalli - moottoripyörätalli - mönkijätalli. Tila ei sovellu autokorjaamoksi eikä autopesulaksi.
Tila on sähkölämmitteinen. Vuokralainen tekee tilaan oman sähkösopimuksen. Vesi- ja sähkömaksu kulutuksen mukaan. Vakuus kahden kuukauden vuokraa vastaava määrä. Haetaan pitkäaikaista vuokralaista. Luottotiedot tarkistetaan.
Talliosake tuottaa joustavasti muunneltavia hallitiloja ympäri Suomen, joita yritykset ja yksityishenkilöt käyttävät tukikohtinaan erilaisille toiminnoille: yritys- ja liiketoimintaan, varastointiin sekä harrastuksiin.
Tilan lattiapinta-ala on 51 m² ja parven 17 m². Yhteispinta-ala 68 m². Moottoroitu nosto-ovi erillisellä käyntiovella. Autolla sisään ajettava tila. Tilamitat: 10,62 (Pituus)
4,79 (Leveys) 5,00 (Korkeus). Ovimitat: 3,40 (Leveys) 3,90 (Korkeus).
Käyttötarkoitusesimerkkejä: - toimitila - varastotila - yrityksen työtarvikevarasto / kalustovarasto - kimppatalli - harrastetila - bändikämppä - autotalli - moottoripyörätalli - mönkijätalli. Tila ei sovellu autokorjaamoksi eikä autopesulaksi.
Tila on sähkölämmitteinen. Vuokralainen tekee tilaan oman sähkösopimuksen. Vesi- ja sähkömaksu kulutuksen mukaan. Vakuus kahden kuukauden vuokraa vastaava määrä. Haetaan pitkäaikaista vuokralaista. Luottotiedot tarkistetaan.
Talliosake tuottaa joustavasti muunneltavia hallitiloja ympäri Suomen, joita yritykset ja yksityishenkilöt käyttävät tukikohtinaan erilaisille toiminnoille: yritys- ja liiketoimintaan, varastointiin sekä harrastuksiin.
Vapautuu
01.04.2026
Katutasossa
Näkyvällä paikalla
Ota yhteyttä
Talliosake Oy
Jani Sanevuori
Aluemyyntipäällikkö Etelä-Suomi, Vuokrauspalvelu, LVV
Näytä puhelinnumero
050 361 4814
Pyydä lisätietoa
