Myydään toimistotilat, tuotantotilat, varastotilat, työtilat, tontti, autotalli/-hallitilat - Kirkkonummi
Ojangontie 26, 02480 Kirkkonummi #10861694
Myydään autokorjaamohalli isolla tontilla Kirkkonummella!
Osoite
Ojangontie 26, 02480 Kirkkonummi
Tilatyyppi
Toimistotilaa
20 m2
Tuotantotilaa
507 m2
Varastotilaa
295 - 507 m2
Työtilaa
507 m2
Tontti
14200 m2
Autotalli/-hallitilaa
295 m2
Yhteensä
507 m2
Virtuaaliesittely
Myyntihinta
1'200'000 €
Muuta
Kirkkonummella, Strömsbyn halli- ja yritysalueella myynnissä iso tontti ja hyvin varusteltu hallirakennus, joka on ollut autokorjaamokäytössä. Hyväkuntoiset ja siistit tilat isolla tontilla, jossa vielä rakennusoikeutta jäljellä!
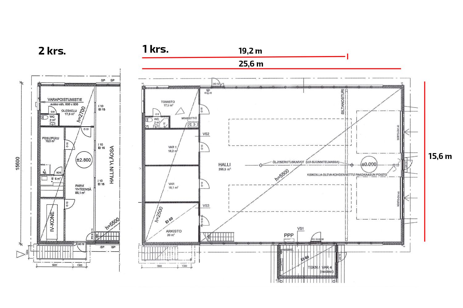
Hallirakennuksen pinta-ala on yhteensä noin 507 m² (bruttoala) ja sen toisessa päädyssä on kahdessa kerroksessa sekä varastotilaa että sosiaali- toimistotilaa. Hallitilan osuus pinta-alasta on 295,5 m² (katso sisämitat tarkemmin pohjakuvasta). Päädyn ensimmäisessä kerroksessa (75 m²) on muutama matalampi varastotila ja toimisto sekä wc. Rakennuksen toisessa kerroksessa (87 m²) on toimistotilaa sekä suihku- että saunatilat. Toinen kerros on tällä hetkellä vuokrattu toistaiseksi voimassa olevalla sopimuksella. Rakennuksen läntisellä puolella (1 krs.) on lisäksi tekninen tila pinta-alaltaan 20 m².
Korkean hallitilan sisämitat ovat 15,6 metriä leveys ja 19,2 metriä pituus ja sen vapaa korkeus on 5,5 m. Varusteluun kuuluu kaksi isoa nosto-ovea (L3,9 m x K4,9 m), voimavirtaa, lattiakaivoja, koneellinen IV ja vesipisteitä. Rakennuksessa on suora sähkölämmitys ja tilassa on ilmalämpöpumppuja.
Iso tontti pinta-alaltaan 14’200 m² ja sen kaava on TY Teollisuusrakennusten korttelialue ja tehokkuusluku e=0,3, eli runsaasti käyttämätöntä rakennusoikeutta. Piha-alueesta vuokrattu noin 60 % hyvällä vuokrasopimuksella samalle vuokralaiselle, joka on vuokrannut 2krs tilat (kysy tarkempia tuotto ja sopimustietoja tarvittaessa).
Alueelta ajaa nopeasti noin viiden kilometrin päässä kulkevalle Länsiväylälle.
Hyvin varustellut tilat myynnissä isolla tontilla – jossa vielä rakennusoikeutta jäljellä!
Kohdetiedot
Sijainti
Katuosoite: Ojangontie 26, 02480 Kirkkonummi
Ympäristö: Teollisuusalue/Yritysalue
Tontti
Kiinteistötunnus: 257-481-1-136
Pinta-ala: 14’200 m²
Kaava: TY Teollisuusrakennusten korttelialue e=0,3
Rakennus/huoneisto
Pinta-ala: 507 m² (bruttoala)
Kiinteistötyyppi: Ammattiliikenteen kaluston huoltorakennukset
Rakennusvuosi: 2010
Energiatodistus: Laki ei edellytä todistusta
Kunto, varusteet ja palvelut: 2 kpl nosto-ovia käyntiovella, vesipiste, voimavirta, lattiakaivo, toimistotilat, ilmalämpöpumppu, keittiö, wc, suihku ja saunatilat
Lämmitys: Suora sähkölämmitys
Vapautuminen: Myydään osittain vuokrattuna
Myyntihinta ja kulut
Velaton hinta: 1’200’000 €
Sähkön kulutus: 30'336,45 kWh/v (2025)
Lämmitys: 5’500 €/v
Kiinteistövero: 2'334,26 € /2026
Hallirakennuksen pinta-ala on yhteensä noin 507 m² (bruttoala) ja sen toisessa päädyssä on kahdessa kerroksessa sekä varastotilaa että sosiaali- toimistotilaa. Hallitilan osuus pinta-alasta on 295,5 m² (katso sisämitat tarkemmin pohjakuvasta). Päädyn ensimmäisessä kerroksessa (75 m²) on muutama matalampi varastotila ja toimisto sekä wc. Rakennuksen toisessa kerroksessa (87 m²) on toimistotilaa sekä suihku- että saunatilat. Toinen kerros on tällä hetkellä vuokrattu toistaiseksi voimassa olevalla sopimuksella. Rakennuksen läntisellä puolella (1 krs.) on lisäksi tekninen tila pinta-alaltaan 20 m².
Korkean hallitilan sisämitat ovat 15,6 metriä leveys ja 19,2 metriä pituus ja sen vapaa korkeus on 5,5 m. Varusteluun kuuluu kaksi isoa nosto-ovea (L3,9 m x K4,9 m), voimavirtaa, lattiakaivoja, koneellinen IV ja vesipisteitä. Rakennuksessa on suora sähkölämmitys ja tilassa on ilmalämpöpumppuja.
Iso tontti pinta-alaltaan 14’200 m² ja sen kaava on TY Teollisuusrakennusten korttelialue ja tehokkuusluku e=0,3, eli runsaasti käyttämätöntä rakennusoikeutta. Piha-alueesta vuokrattu noin 60 % hyvällä vuokrasopimuksella samalle vuokralaiselle, joka on vuokrannut 2krs tilat (kysy tarkempia tuotto ja sopimustietoja tarvittaessa).
Alueelta ajaa nopeasti noin viiden kilometrin päässä kulkevalle Länsiväylälle.
Hyvin varustellut tilat myynnissä isolla tontilla – jossa vielä rakennusoikeutta jäljellä!
Kohdetiedot
Sijainti
Katuosoite: Ojangontie 26, 02480 Kirkkonummi
Ympäristö: Teollisuusalue/Yritysalue
Tontti
Kiinteistötunnus: 257-481-1-136
Pinta-ala: 14’200 m²
Kaava: TY Teollisuusrakennusten korttelialue e=0,3
Rakennus/huoneisto
Pinta-ala: 507 m² (bruttoala)
Kiinteistötyyppi: Ammattiliikenteen kaluston huoltorakennukset
Rakennusvuosi: 2010
Energiatodistus: Laki ei edellytä todistusta
Kunto, varusteet ja palvelut: 2 kpl nosto-ovia käyntiovella, vesipiste, voimavirta, lattiakaivo, toimistotilat, ilmalämpöpumppu, keittiö, wc, suihku ja saunatilat
Lämmitys: Suora sähkölämmitys
Vapautuminen: Myydään osittain vuokrattuna
Myyntihinta ja kulut
Velaton hinta: 1’200’000 €
Sähkön kulutus: 30'336,45 kWh/v (2025)
Lämmitys: 5’500 €/v
Kiinteistövero: 2'334,26 € /2026
Vapautuu
Sopimuksen mukaan
Rakennusvuosi
2010
Kerros
1 / 2
Ota yhteyttä
Tilat.fi
KTM, LKV Antti Soivio
Näytä puhelinnumero
0400 446 553
OTM, LKV Riikka Tuominen
Näytä puhelinnumero
0400 551 790
KTM, LKV Maria-Sofia Puhakka
Näytä puhelinnumero
0400-150330
MBA, LKV Susanne Wallenius
Näytä puhelinnumero
0400-128877
LKV Tilat.fi Oy on toimitilojen välitykseen erikoistunut yritys.
http://www.tilat.fiPyydä lisätietoa
