Vuokrataan liiketilat, varastotilat - Turku
Yliopistonkatu 24 katutason liiketila 85 m² ja varastotila 85 m², Yliopistonkatu 24, 20100 Turku #10861448
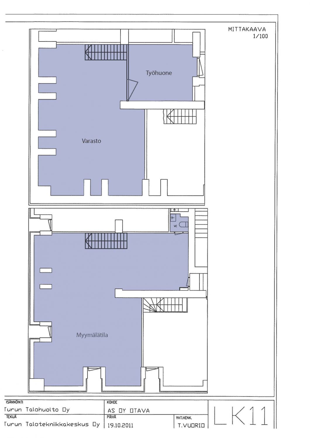
Aivan Turun ydinkeskustasta, kävelykadun varrelta vuokrattavana katutason liiketila 85 m² sekä alakerran varasto- ja työtila 85 m². Kiinteistö sijaitsee erinomaisella ja näkyvällä paikalla Yliopistonkadun ja Kristiinankadun kulmassa, aivan Stockmannia vastapäätä.
Liiketila sijaitsee katutasossa ja siihen on kaksi erillistä sisäänkäyntiä, mikä mahdollistaa sujuvan asiakasliikenteen sekä joustavat käyttömahdollisuudet. Alakerrassa sijaitsevaan varastotilaan on rakennettu erillinen työhuone.
Tila soveltuu erinomaisesti esimerkiksi myymälä-, showroom- tai palvelukäyttöön. Keskeinen sijainti kävelykadulla takaa hyvän näkyvyyden ja saavutettavuuden.
Tästä kohteesta voit olla yhteydessä Turun seudun vuokrauspäällikköömme Iliakseen.
Puh. 040 624 0344 / Ilias Niemi
1992 Putkistosaneeraus
1993 Patteriventtiilit
1994 Parvekekunnostus
1996 Antenni- ja puhelinverkko johtotiet
1998 Porrashuoneet
2000 Katto uusittu
2002 Huoneistoikkunat
2003 A ja B portaiden hissit
2005 C ja D portaiden hissit
2007-2008 Julkisivusaneeraus
2012 Tiilikatteen uusiminen
2013-2014 Kellarin saneeraus
2016/2017 Nousukeskuksen ja kiinteistökeskuksen uusiminen
2020 Pihan kunnostus, jätehuollon uudistaminen
2020 Lukitusjärjestelmä Pulse
2024 Portti
Katutasossa
Näkyvällä paikalla
Nurmi-Yhtiöt Oy
Nurmi Kiinteistöt
Jousitie 7
20760 Piispanristi
puh.
Näytä puhelinnumero
044 906 2226
/ Arto Haavisto (pk-seutu)
puh.
Näytä puhelinnumero
040 624 0344
/ Ilias Niemi (Varsinais-Suomi)
