Vuokrataan toimistotilat - Helsinki
Valla, Itämerentori 2, Ruoholahti, 00180 Helsinki #10861259
Laadukasta toimistotilaa keskeisellä sijainnilla Ruoholahdessa.
Osoite
Itämerentori 2, 00180 Helsinki
Tilatyyppi
Toimistotilaa
197 m2
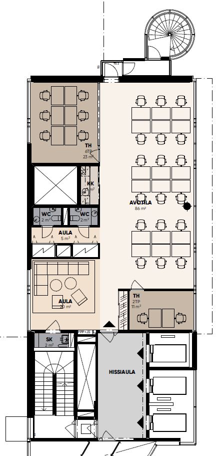
Pohjapiirros
Kiinteistö
2. kerroksen toimisto jossa avotoimistoa ja yksi neukkari. Minikeittiö ja wc:t. Remontoidaan vuokralaiselle.
Valla – enemmän kuin toimitilat
Valla on paljon enemmän kuin toimistorakennus – se on moderni, viihtyisä ja vastuullinen työympäristö Ruoholahden sydämessä. Kiinteistö sijaitsee aivan metroaseman vieressä, ja sen arkkitehtuuri on arkkitehti Pekka Helinin suunnittelemaa suomalaista huipputasoa. Vallan 70 metriä korkea torni, lasinen Atrium sekä kattoterassin hirsisauna tekevät siitä ainutlaatuisen.
Tilaratkaisut yrityksesi tarpeisiin
Vallassa tilat suunnitellaan aina yrityskohtaisesti – ei hukkaneliöitä, vaan juuri teidän työntekoanne tukevia ratkaisuja. Muuntojoustavat tilat mahdollistavat sekä keskittymisen että luovan yhteistyön.
Palvelut, jotka tekevät arjesta sujuvaa
Vallan vuokralaisena pääset nauttimaan palveluista, jotka tukevat sekä työntekoa että hyvinvointia:
- Uudistetut ravintola- ja catering-palvelut (3 uutta ravintolaa aloittaa marraskuussa 2025)
- 200 hengen auditorio ja 8 modernia neuvotteluhuonetta katutasossa
- Lounge-tilat ja sauna tornin ylimmässä kerroksessa
- Aulapalvelu, kokous hosting sekä Vallan päällikkö huolehtivat vuokralaisten palvelukokemuksesta
- Hyvinvointia tukevat palvelut, kuten kuntosali, personal trainer, jooga ja hieroja
- Arkea helpottavat lisäpalvelut, kuten sähköauton lataus ja kauppakassipalvelu
Työpäiviin energiaa
Vallasta löytyy täysin uudistettu kuntosali, pesu- ja pukuhuoneet sekä runsaasti paikkoja pyörille ja sähköpyörien lataukselle. Autolla kulkeville on tilava halli, jossa on 360 autopaikkaa ja 180 sähköauton latauspaikkaa. Lisäksi paikan päältä löytyvät autonpesu- ja rengaspalvelut tekevät liikkumisesta huoletonta.
Vastuullinen valinta
Valla on ollut hiilineutraali vuodesta 2023. Hiilineutraali ostoenergia, tehokas jätteen lajittelu ja jatkuva kestävyyden kehittäminen takaavat, että työskentelette tulevaisuuden ratkaisuja tukevassa ympäristössä. Kiinteistölle on myönnetty kansainvälinen BREEAM In-Use Excellent -sertifikaatti helmikuussa 2025.
Saavutettavuus on helppoa
Vallan sijainti on liikenteellisesti täydellinen. Tänne pääset helposti metrolla, raitiovaunulla, bussilla, pyörällä tai vaikka sähköskuutilla. Autolla kulkeville suora yhteys Länsiväylälle takaa nopean liikkumisen.
Ilmoituksen sisäkuvat ovat yleiskuvia kiinteistön eri tiloista
Valla – enemmän kuin toimitilat
Valla on paljon enemmän kuin toimistorakennus – se on moderni, viihtyisä ja vastuullinen työympäristö Ruoholahden sydämessä. Kiinteistö sijaitsee aivan metroaseman vieressä, ja sen arkkitehtuuri on arkkitehti Pekka Helinin suunnittelemaa suomalaista huipputasoa. Vallan 70 metriä korkea torni, lasinen Atrium sekä kattoterassin hirsisauna tekevät siitä ainutlaatuisen.
Tilaratkaisut yrityksesi tarpeisiin
Vallassa tilat suunnitellaan aina yrityskohtaisesti – ei hukkaneliöitä, vaan juuri teidän työntekoanne tukevia ratkaisuja. Muuntojoustavat tilat mahdollistavat sekä keskittymisen että luovan yhteistyön.
Palvelut, jotka tekevät arjesta sujuvaa
Vallan vuokralaisena pääset nauttimaan palveluista, jotka tukevat sekä työntekoa että hyvinvointia:
- Uudistetut ravintola- ja catering-palvelut (3 uutta ravintolaa aloittaa marraskuussa 2025)
- 200 hengen auditorio ja 8 modernia neuvotteluhuonetta katutasossa
- Lounge-tilat ja sauna tornin ylimmässä kerroksessa
- Aulapalvelu, kokous hosting sekä Vallan päällikkö huolehtivat vuokralaisten palvelukokemuksesta
- Hyvinvointia tukevat palvelut, kuten kuntosali, personal trainer, jooga ja hieroja
- Arkea helpottavat lisäpalvelut, kuten sähköauton lataus ja kauppakassipalvelu
Työpäiviin energiaa
Vallasta löytyy täysin uudistettu kuntosali, pesu- ja pukuhuoneet sekä runsaasti paikkoja pyörille ja sähköpyörien lataukselle. Autolla kulkeville on tilava halli, jossa on 360 autopaikkaa ja 180 sähköauton latauspaikkaa. Lisäksi paikan päältä löytyvät autonpesu- ja rengaspalvelut tekevät liikkumisesta huoletonta.
Vastuullinen valinta
Valla on ollut hiilineutraali vuodesta 2023. Hiilineutraali ostoenergia, tehokas jätteen lajittelu ja jatkuva kestävyyden kehittäminen takaavat, että työskentelette tulevaisuuden ratkaisuja tukevassa ympäristössä. Kiinteistölle on myönnetty kansainvälinen BREEAM In-Use Excellent -sertifikaatti helmikuussa 2025.
Saavutettavuus on helppoa
Vallan sijainti on liikenteellisesti täydellinen. Tänne pääset helposti metrolla, raitiovaunulla, bussilla, pyörällä tai vaikka sähköskuutilla. Autolla kulkeville suora yhteys Länsiväylälle takaa nopean liikkumisen.
Ilmoituksen sisäkuvat ovat yleiskuvia kiinteistön eri tiloista
Vapautuu
Heti
Rakennusvuosi
2000
Kerros
2
Energiatehokkuusluokka
Ei lain edellyttämää energiatodistusta
Ympäristöluokitus
BREEAM In-Use Excellent
Näkyvällä paikalla
Hissi
Ota yhteyttä
ScanReal Oy LKV
Opus Business Park
Hitsaajankatu 24
00810 Helsinki
info@scanreal.fi
Puh:
Näytä puhelinnumero
020 730 8830
Sopivat toimitilat yhdellä otolla!
Kartoitamme toimitilatarpeesi ja etsimme yrityksellesi parhaiten sopivat vapaat toimitilat. Koska vuokranantajat maksavat palvelumme, on tämä yrityksellesi veloituksetonta.
Palvelumme on tilanhakijalle ilmainen
Pyydä lisätietoa
