Vuokrataan varastotilat - Tampere
KOY Tampereen Messukylän Talliosake 2 tila 02, Etu-Hankkionkatu 8, 33700 Tampere #10861134
Suositulta Tampereen Messukylän Talliosakkeelta varasto, autotalli, harraste-, toimitila 2 .
Osoite
Etu-Hankkionkatu 8, 33700 Tampere
Tilatyyppi
Varastotilaa
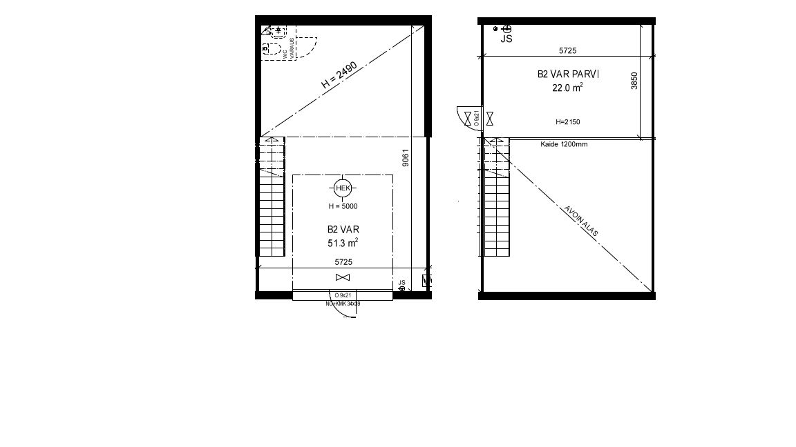
73 m2
Vuokra
775,00 €/kk
Kiinteistö
KOY Tampereen Messukylän Talliosake 2
Sijainti
Tampereen Messukylän Talliosake 2 sijaitsee huippusijainnilla osoitteessa Etu-Hankkionkatu 8, Tampere – näkyvällä paikalla Messukylänkadun ja Etu-Hankkionkadun välissä. Messukylä on hyvien kulkuyhteyksien varrella ja kohteesta on nopea yhteys E63:lle ja läheisten teollisuusalueiden palvelut ovat helposti hyödynnettävissä. Kohde sijaitsee Tampereen itäpuolella, noin 11 minuutin ajomatkan päässä Tampereen keskustasta – vain kahdessa minuutissa olet jo Ysitiellä (E63).
Muuta
Tilassa jo valmiina parvi, wc, ilmalämpöpumppu sekä Yalen sähkölukko koodinäppäimistöllä. Piha-alueella sähköauton latauspiste. Tilan lattiapinta-ala on 51 m² ja parven 22 m². Yhteispinta-ala 73 m².
Autolla sisään ajettava tila. Tilamitat: 9,06 (Pituus) 5,72 (Leveys) 5,00 (Korkeus).
Ovimitat: 3,40 (Leveys) 3,90 (Korkeus).
Käyttötarkoitusesimerkkejä: - toimitila - varastotila - yrityksen työtarvikevarasto / kalustovarasto - kimppatalli - harrastetila - bändikämppä - autotalli - moottoripyörätalli - mönkijätalli. Tila ei sovellu autokorjaamoksi eikä autopesulaksi.
Tila on sähkölämmitteinen. Vuokralainen tekee tilaan oman sähkösopimuksen. Vesi- ja sähkömaksu kulutuksen mukaan. Vakuus kahden kuukauden vuokraa vastaava määrä. Haetaan pitkäaikaista vuokralaista. Luottotiedot tarkistetaan.
Talliosake tuottaa joustavasti muunneltavia hallitiloja ympäri Suomen, joita yritykset ja yksityishenkilöt käyttävät tukikohtinaan erilaisille toiminnoille: yritys- ja liiketoimintaan, varastointiin sekä harrastuksiin.
Autolla sisään ajettava tila. Tilamitat: 9,06 (Pituus) 5,72 (Leveys) 5,00 (Korkeus).
Ovimitat: 3,40 (Leveys) 3,90 (Korkeus).
Käyttötarkoitusesimerkkejä: - toimitila - varastotila - yrityksen työtarvikevarasto / kalustovarasto - kimppatalli - harrastetila - bändikämppä - autotalli - moottoripyörätalli - mönkijätalli. Tila ei sovellu autokorjaamoksi eikä autopesulaksi.
Tila on sähkölämmitteinen. Vuokralainen tekee tilaan oman sähkösopimuksen. Vesi- ja sähkömaksu kulutuksen mukaan. Vakuus kahden kuukauden vuokraa vastaava määrä. Haetaan pitkäaikaista vuokralaista. Luottotiedot tarkistetaan.
Talliosake tuottaa joustavasti muunneltavia hallitiloja ympäri Suomen, joita yritykset ja yksityishenkilöt käyttävät tukikohtinaan erilaisille toiminnoille: yritys- ja liiketoimintaan, varastointiin sekä harrastuksiin.
Vapautuu
01.05.2026
Katutasossa
Näkyvällä paikalla
Ota yhteyttä
Talliosake Oy
Hannu Peltonen
Aluemyyntipäällikkö, Pirkanmaa & Kanta-Häme
Näytä puhelinnumero
040 630 3150
Pyydä lisätietoa
