Myydään tuotantotilat - Helsinki
Torpparinmäentie 4, Torpparinmäki, 00690 Helsinki #10860999
Torpparinmäentie 4 tarjoaa erinomaisen mahdollisuuden yritykselle, joka arvostaa toimivaa logistiikkaa, hyviä yhteyksiä ja monipuolisia tilaratkaisuja.
Kohde sijaitsee Helsingin Torpparinmäessä, rauhallisella mutta logistisesti sujuvalla alueella. Alueelle on helppo saapua, myös julkisilla (linja-auto), mikä tekee sijainnista hyvin saavutettavan niin henkilökunnalle kuin asiakkaillekin. Nopea yhteys Kehä I, sekä Kehä III ja Tuusulanväylä hyvin saavutettavissa.
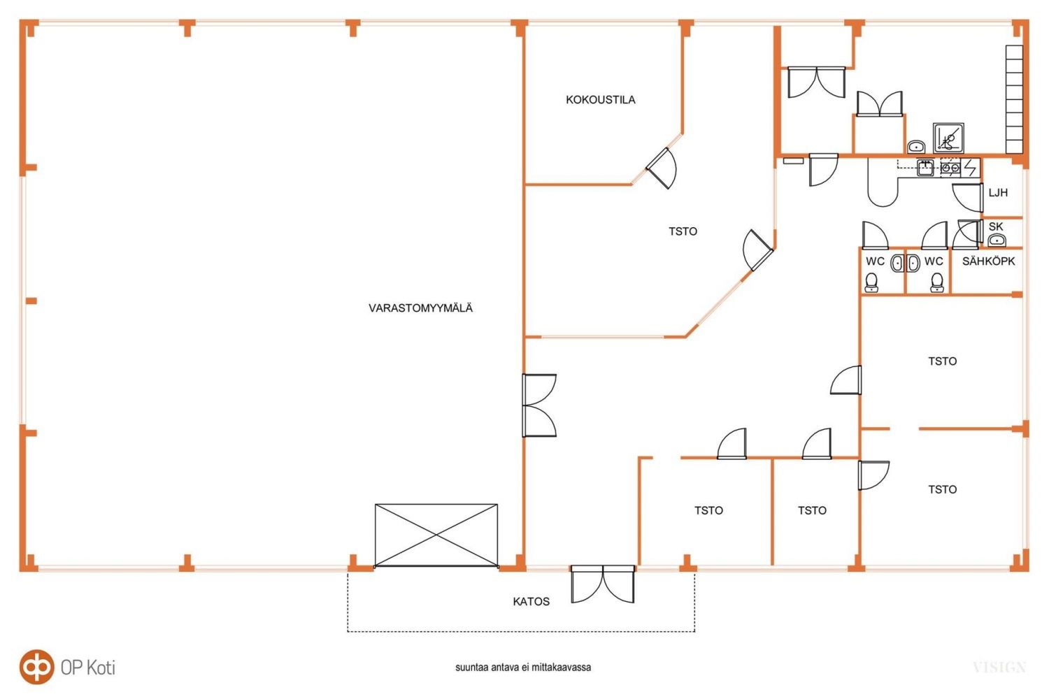
Tila kokonaisuus käsittää noin 500 m² monipuolisia toimitiloja, jotka soveltuvat sekä varastointiin, tuotantoon että toimistokäyttöön.
Varasto / työtila - n. 300 m²
Korkea ja avara varasto, vapaa sisäkorkeus 5-6 m (vino sisäkatto)
Nosto-ovi, sekä lattiakaivo helpottavat kuormausta ja päivittäistä toimintaa.
Laadukkaat varastohyllyt sisältyvät varustukseen.
Mahdollistaa tehokkaan logistiikan sekä tilankäytön.
Toimisto- ja myymälätila - n. 200 m²
Useita toimistohuoneita sekä neuvottelu-/kokoustila
Toimistohuoneissa ilmalämpöpumput tuovat lisämukavuutta ja säästöjä
Soveltuu erinomaisesti hallinnon, myynnin tai asiakaspalvelun tarpeisiin
Tekniikka
Kaukolämpö - energiatehokas ja varma lämmitysmuoto.
Koneellinen ilmanvaihto, sekä ilmalämpöpumput toimistotiloissa.
Kameravalvonta.
Piha-alue ja tontti
Teräsverkkoaidattu tontti, jossa on kaksi liukuporttia.
Erillinen katosrakennus tarjoaa lisätilaa varastoinnille tai kalustolle
Hyvät kääntö- ja pysäköintialueet.
Lisätietoja ja esittelyt:
Mika Nyman
0400347758
mika.nyman@op.fi
tontti 2 1856 m²: KL II 500
tontti 3 892 m²: P ja LPA
Laitostunnukset: 91-35-110-2-L1 (tontti 2: 1856m²) ja 91-431-1-659-L11 (tontti 3: 892 m²)
Vuokraoikeuksilla.
Kiinnitykset: 16.500 € ja 4.400 € (vuokraoikeuden vakuudet kaupungilla).
Vuokranantaja Helsingin kaupunki ja vuokrasopimukset voimassa 31.12.2038 asti.
Asemakaava:
tontti 2: KL II 500
tontti 3: P ja LPA
Kauppavarastot - rakennus.
Rakennusvuosi 1994.
Kerosala 500 m². Tilavuus 2 950 m³
Varasto ~300 m²
Toimisto/myymälä ~200 m²
Paalutus, betonilaatta - imubetoni
Teräspalkkirunko, pelti/teräsverhottu elementti seinä.
Harjakatto, pinnoitettu elementtikate.
Kaukolämpö.Lämpöpaketti uusittu 2025.
Hallissa ilmalämmitys, toimisto-osa seinäpatterit + ilmalämpöpumppuja.
Sähkö pääsulake 3 x 125 A
2007 muutostyö, kylmiö poistettu ja tilalle tehty puku- ja kylpyhuonetilat.
Kulkuneuvojen suoja- ja huoltorakennukset
Valmistunut 1999
Kerrosala 104 m², tilavuus 292 ³
Teräspalkkirunko, teräslevy verhous
Pulpetikatto, peltikate
Tontti tasainen ja asfaltoitu, aidattu ja varustettu liukuportein x 2.
Muut tilat:
Pinta-altiedot Rakenuksen tiedot otteen mukaan: kerrosala 500 m². Tilavuus 2 950 m³
Arvio tilankäytöstä : Varasto ~300 m². Toimisto/myymälä ~200 m²
Jaettavissa
OP Koti Uusimaa Oy LKV
Toimitilapalvelut
Arkadiankatu 23
00100 HELSINKI
Mika Nyman
Toimitilavälittäjä, Kiinteistöarvioija, LKV, YKV, AKA/KHK
Näytä puhelinnumero
0400 347 758
