Vuokrataan tuotantotilat, varastotilat - Lempäälä
Ruokosmetsänkatu 8, Marjamäki, 37570 Lempäälä #10860860
Laadukas hallikiinteistö tuotantoon
Osoite
Ruokosmetsänkatu 8, 37570 Lempäälä
Tilatyyppi
Tuotantotilaa
2729 m2
Varastotilaa
2729 m2
Yhteensä
2729 m2
Muuta
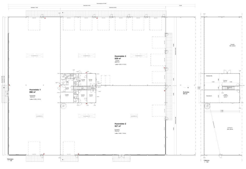
Vuokrattavana vuonna 2022 valmistunut tuotanto- ja varastokiinteistö, joka soveltuu monipuoliseen yrityskäyttöön. Kiinteistössä on maalämpö, lattialämmitys sekä viilennys. Hallin korkeus on noin 8 metriä ja vapaakorkeus noin 6,5 m. Kantava lattia mahdollistaa raskaan tuotantotoiminnan.
Halli on jaettu kolmeen lohkoon, joiden koot vaihtelevat 838,5â898,5 m². Jokaisessa lohkossa on omat sosiaalitilat sekä toimistotilaa, mikä mahdollistaa toiminnan sujuvan organisoinnin. Kiinteistössä on yhteensä 13 nosto-ovea (4,0 x 4,5 m), jotka tukevat tehokasta logistiikkaa ja tavarankäsittelyä. Takana sijaitseva lastausalue on katettu.
Sähköliittymä on 600A, mikä mahdollistaa vaativampaakin toimintaa. Piha-alue on asfaltoitu ja ajettavissa ympäri. Tontilla on lisäksi rakennusoikeutta ja tilaa laajennukselle. Kiinteistö vuokrataan kokonaisuutena.
Lisätiedot ja esittelyt Sanna Eerilä-Vänni, 050-502 4639
Halli on jaettu kolmeen lohkoon, joiden koot vaihtelevat 838,5â898,5 m². Jokaisessa lohkossa on omat sosiaalitilat sekä toimistotilaa, mikä mahdollistaa toiminnan sujuvan organisoinnin. Kiinteistössä on yhteensä 13 nosto-ovea (4,0 x 4,5 m), jotka tukevat tehokasta logistiikkaa ja tavarankäsittelyä. Takana sijaitseva lastausalue on katettu.
Sähköliittymä on 600A, mikä mahdollistaa vaativampaakin toimintaa. Piha-alue on asfaltoitu ja ajettavissa ympäri. Tontilla on lisäksi rakennusoikeutta ja tilaa laajennukselle. Kiinteistö vuokrataan kokonaisuutena.
Lisätiedot ja esittelyt Sanna Eerilä-Vänni, 050-502 4639
Vapautuu
Kysy
Rakennusvuosi
2022
Ota yhteyttä
Tuloskiinteistöt Oy
Finlaysoninkatu 4, 33210 Tampere
Näytä puhelinnumero
050 502 4639
Sanna Eerilä-Vänni
Director, Partner
Näytä puhelinnumero
+358 50 5024639
Pyydä lisätietoa
