Vuokrataan toimistotilat - Tampere
Kelloportinkatu 1 B TAMPERE, 33101 Tampere #10860838
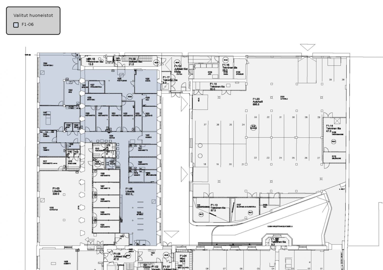
Vuokrattavana 1. kerroksen 632 m2 toimistotila. Tila vapautuu 1.2.2027. Soveltuu myös terveydenhuoltoalan toimijalle. Tilassa toiminut terveysalalla toiminut yritys, valmiina mm. vesipisteellisiä vastaanottohuoneita. Tampellan vanha pellavatehdas sijaitsee ydinkeskustassa, Tammerkosken rannalla. Kiinteistö täysin saneerattu v. 2017. Korkeatasoisen kohteen ominaisuuksia ovat mm. korkea huonekorkeus ja isot ikkunat. Kiinteistössä toimii ravintola Tampella sekä vuokralaisille tarjolla hyvät pukuhuonetilat.
Kiinteistö Oy Koskitammi, Tampellan vanha 1850-luvulla valmistunut pellavatehdas kosken varrella. Kohteessa on tehty kattava remontti vuonna 2016, joten tilat ovat uudenveroiset.
Tampellan arvokiinteistö Koskitammi on merkittävä osa Tampereen keskustan sydäntä ja luo maamme tunnetuimman teollisen kaupunkimaiseman. Koskitammi on kulttuurihistoriallisesti arvokas ja se on asemakaavassa luokiteltu suojelukohteeksi. Saneeraustyöt talon historiaa kunnioittaen valmistuivat vuonna 2016.
Kiinteistölle on myönnetty LEED Gold-tason ympäristöluokitus.
