Vuokrataan liiketilat - Helsinki
Mannerheimintie 6, Kamppi, 00100 Helsinki #10860713
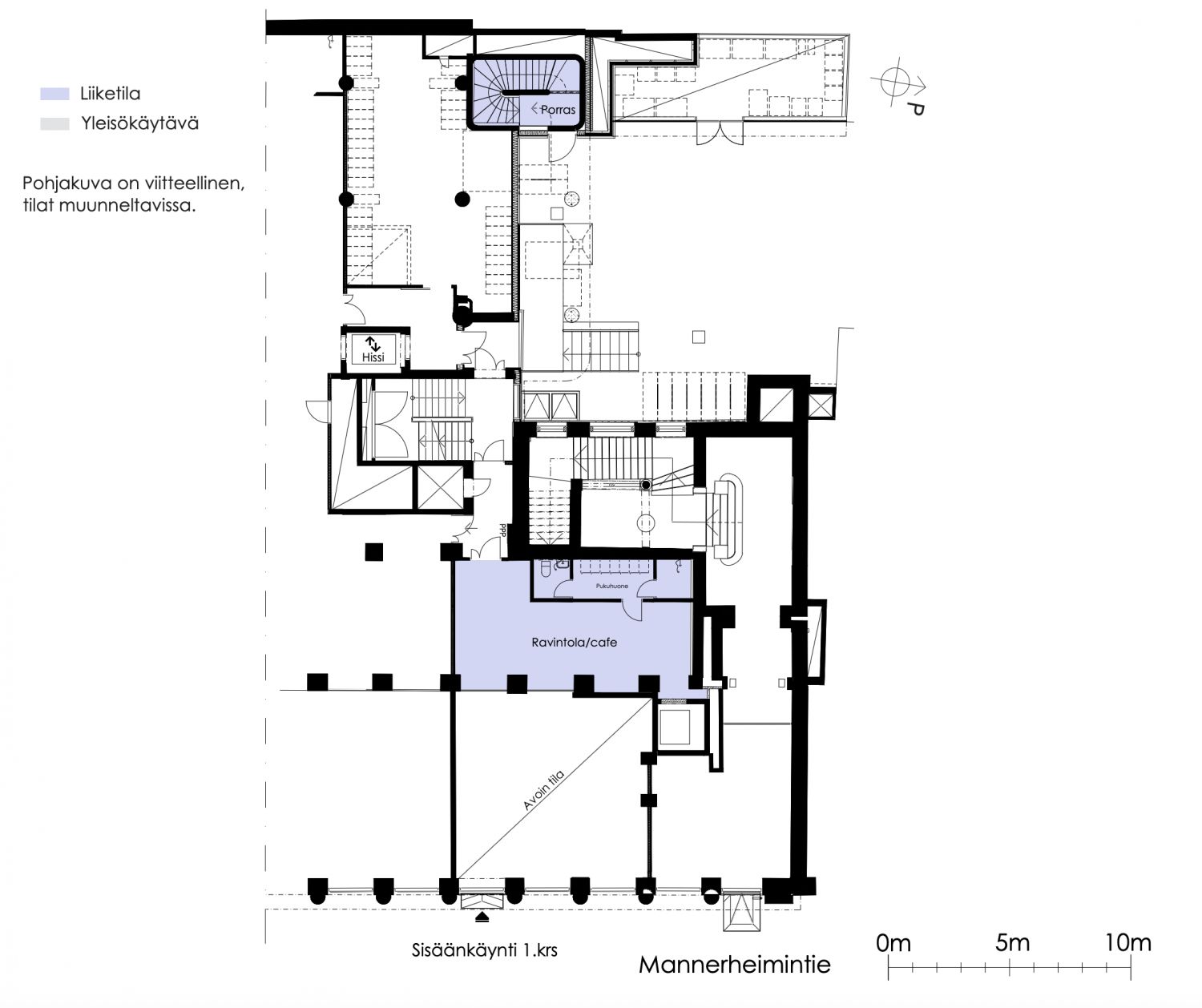
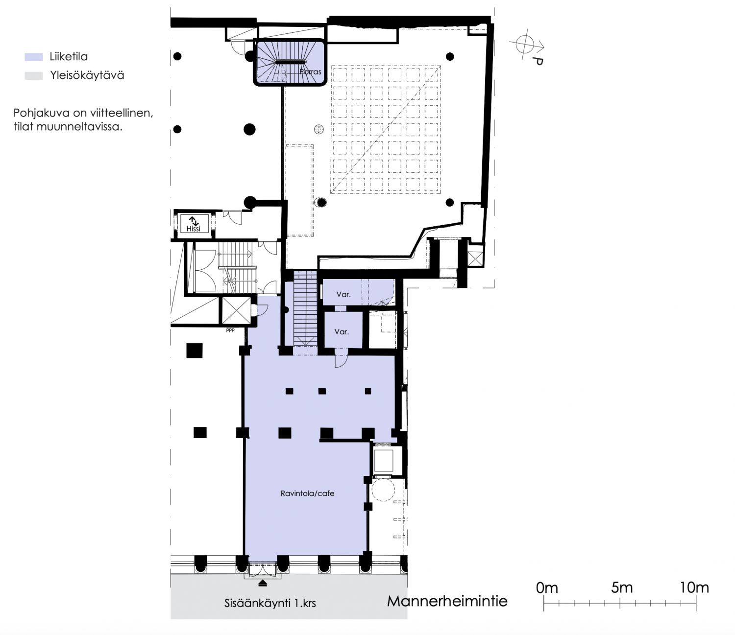
Huipputyylikäs kahdessa tasossa sijaitseva retail-tila, joka sopii myös kevyempään kahvilakäyttöön.
Osoite
Mannerheimintie 6, 00100 Helsinki
Tilatyyppi
Liiketilaa
473 m2
Pohjapiirros
Kiinteistö
Historialliset toimitilat Helsingin paraatipaikalla – uudistuva arvokohde tarjoaa uniikit puitteet omien toimitilojen suunnitteluun.
Keisari Aleksanteri II rakennutti Helsingin vilkkaimmalla liikealueella sijaitsevan, vuonna 1884 valmistuneen kivilinnan alun perin venäläiseksi poikakouluksi. Nyt historiallinen rakennus uudistuu moderniksi liike- ja toimitaloksi, joka tarjoaa yrityksille uniikit puitteet omien toimitilojen suunnitteluun. Keskeinen sijainti takaa vuokralaisyrityksille keskustan parhaimman näkyvyyden ja liikenneyhteydet. Rakennushankkeessa tavoitellaan LEED platinatason ympäristösertifikaattia ja energialuokkaa A.
Keisari Aleksanteri II rakennutti Helsingin vilkkaimmalla liikealueella sijaitsevan, vuonna 1884 valmistuneen kivilinnan alun perin venäläiseksi poikakouluksi. Nyt historiallinen rakennus uudistuu moderniksi liike- ja toimitaloksi, joka tarjoaa yrityksille uniikit puitteet omien toimitilojen suunnitteluun. Keskeinen sijainti takaa vuokralaisyrityksille keskustan parhaimman näkyvyyden ja liikenneyhteydet. Rakennushankkeessa tavoitellaan LEED platinatason ympäristösertifikaattia ja energialuokkaa A.
Sijainti
Kiinteistö sijaitsee aivan Helsingin ydinkeskustassa, Svenska Teaternia vastapäätä. Kaikki julkiset kulkuvälineet ovat lähietäisyydellä.
Pysäköinti
Autopaikat Forum-P ja Q-Park Erottaja
Palvelut
Kaikki keskustan palvelut sijaitsevat kävelyetäisyydellä.
Kulkuyhteydet
Lähimmälle bussipysäkille 550 m
Lähimmälle juna-asemalle 550 m
Lähimmälle metroasemalle 550 m
Lähimmälle raitiovaunupysäkille 100 m
Lentokentälle 30 min
Lähimmälle juna-asemalle 550 m
Lähimmälle metroasemalle 550 m
Lähimmälle raitiovaunupysäkille 100 m
Lentokentälle 30 min
Vapautuu
Kysy
Rakennusvuosi
1884
Kerros
1-2
Energiatehokkuusluokka
B2018
Ympäristöluokitus
GRESB Global Sector Leader 2025
Ota yhteyttä
Sponda Oy
Yrjönkatu 29C, 00100 Helsinki
Näytä puhelinnumero
020 43131
Sirpa Vuorimaa
Retail leasing
Näytä puhelinnumero
+358 40 7654 222
Sponda Oy
https://www.sponda.fiPyydä lisätietoa
