Vuokrataan toimistotilat, varastotilat, muut tilat - Vantaa
Meiramitie 3, Koivuhaka, 01510 Vantaa #10860678
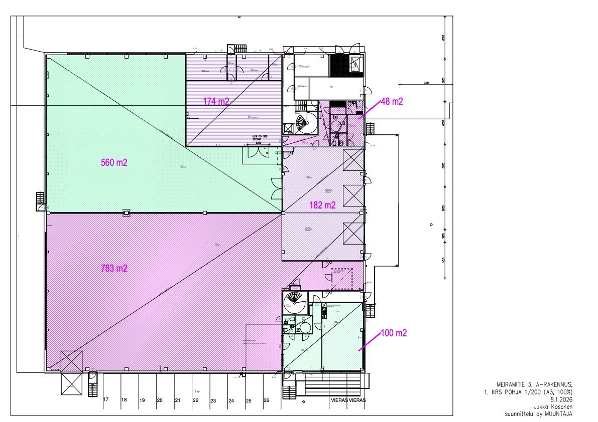
Laadukasta varasto- (560 m²) ja toimistotilaa (174 m²) Vantaalla Meiramitien varrella.
Osoite
Meiramitie 3, 01510 Vantaa
Tilatyyppi
Toimistotilaa
174 m2
Varastotilaa
560 m2
Muuta tilaa
139 m2
Yhteensä
873 m2
Pohjapiirros
Kiinteistö
1.7.2026 vapautuva toimiva kokonaisuus A-talon ensimmäisestä kerroksesta.
Tilat käsittävät 560 m²:n varaston, jonka vapaa korkeus on 8 metriä ja lattia kestää pistekuormaa 5 tonnia sekä jakautuvaa kuormaa 3 tn/m². Toimistoa löytyy 174 m² ja sosiaalitiloja 48 m², ja lastaukseen on käytössä yhteinen lastausalue, josta tilan osuus on 91 m². Yhteensä tilaa on 873 m².
Meiramitie 3 vuonna 2009 valmistunut, moderni varastokohde sijaitsee hyvällä paikalla, Tuusulantien ja Helsinki-Vantaan lentokentän läheisyydessä.
Kiinteistön tilat soveltuvat erinomaisesti yrityksille, jotka tarvitsevat sekä varastotilaa että toimistoa.
Meiramitie 3 kiinteistö koostuu 4 erillisestä varastorakennuksesta.
Tilat käsittävät 560 m²:n varaston, jonka vapaa korkeus on 8 metriä ja lattia kestää pistekuormaa 5 tonnia sekä jakautuvaa kuormaa 3 tn/m². Toimistoa löytyy 174 m² ja sosiaalitiloja 48 m², ja lastaukseen on käytössä yhteinen lastausalue, josta tilan osuus on 91 m². Yhteensä tilaa on 873 m².
Meiramitie 3 vuonna 2009 valmistunut, moderni varastokohde sijaitsee hyvällä paikalla, Tuusulantien ja Helsinki-Vantaan lentokentän läheisyydessä.
Kiinteistön tilat soveltuvat erinomaisesti yrityksille, jotka tarvitsevat sekä varastotilaa että toimistoa.
Meiramitie 3 kiinteistö koostuu 4 erillisestä varastorakennuksesta.
Kulkuyhteydet
Bussipysäkki 100 m, Juna-asema 2,3 km, Lentoasema 2,6 km
Vapautuu
30.9.2021 mennessä
Rakennusvuosi
2009
Kerros
1
Energiatehokkuusluokka
D
Näkyvällä paikalla
Lastauslaituri
Ota yhteyttä
ScanReal Oy LKV
Opus Business Park
Hitsaajankatu 24
00810 Helsinki
info@scanreal.fi
Puh:
Näytä puhelinnumero
020 730 8830
Sopivat toimitilat yhdellä otolla!
Kartoitamme toimitilatarpeesi ja etsimme yrityksellesi parhaiten sopivat vapaat toimitilat. Koska vuokranantajat maksavat palvelumme, on tämä yrityksellesi veloituksetonta.
OTA YHTEYTTÄ - SOVI NÄYTTÖ!
Kaikki kohteemme eivät ole netissä, kerro tilatarpeesi niin kartoitamme vaihtoehdot.
Palvelumme on tilanhakijalle ilmainen
Pyydä lisätietoa
