Vuokrataan toimistotilat - Tampere
Kelloportinkatu 1, 33100 Tampere #10860541
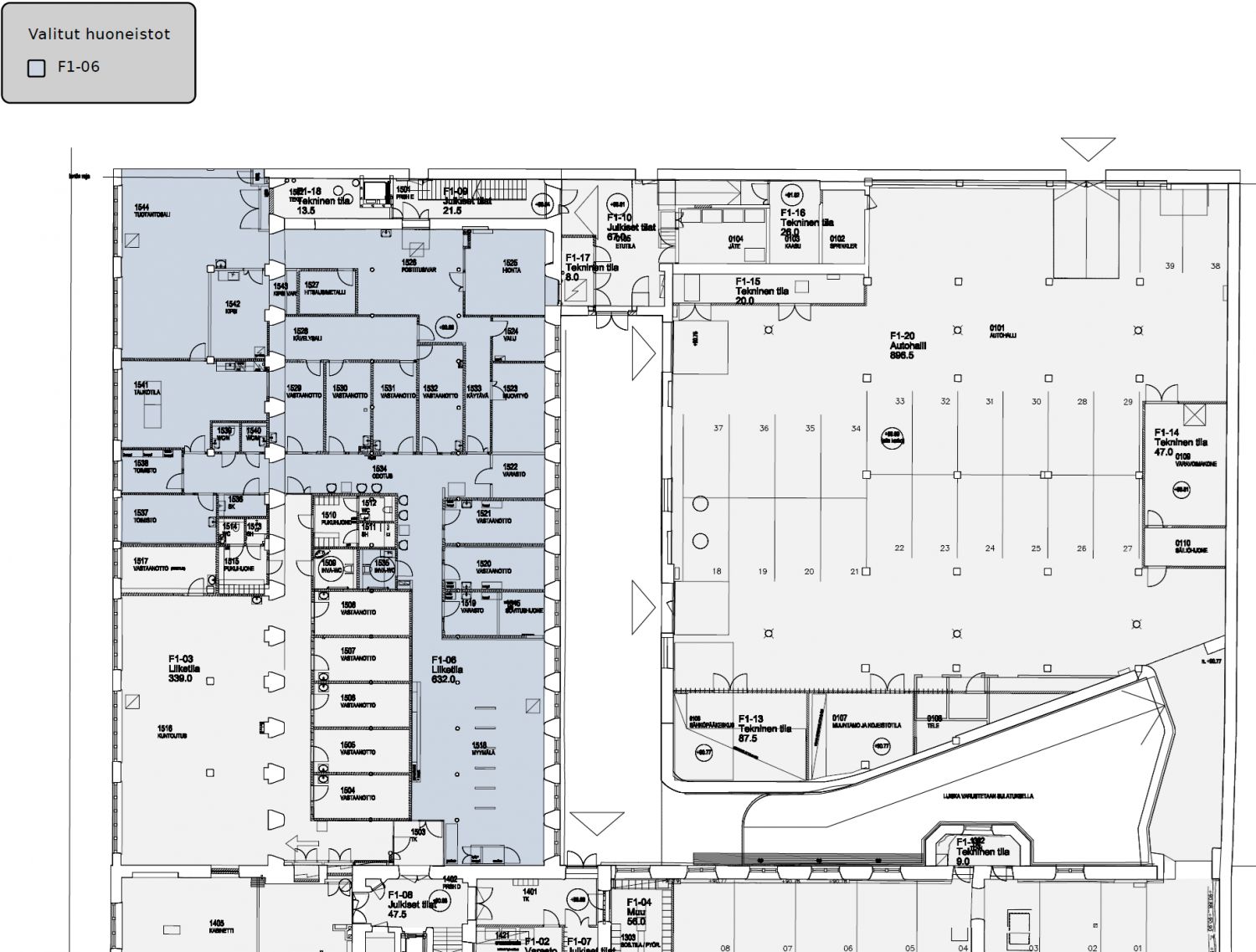
Korkeatasoinen 632 m²:n toimistotila Tammerkosken rannalla.
Osoite
Kelloportinkatu 1, 33100 Tampere
Tilatyyppi
Toimistotilaa
632 m2
Pohjapiirros
Kiinteistö
Tarjolla edustava ja monipuolinen 632 m²:n toimistotila Tampereen keskustassa Tammerkosken rannalla. Ensimmäisen kerroksen tila vapautuu 1.2.2027 alkaen ja soveltuu erinomaisesti toimistokäyttöön sekä erityisesti terveydenhuoltoalan toimijalle. Tilassa on aiemmin toiminut terveysalan yritys, ja siellä on valmiina useita vesipisteellisiä vastaanottohuoneita, mikä mahdollistaa toiminnan käynnistämisen nopeasti.
Kiinteistö sijaitsee Tampellan alueella, Tampellan vanhassa pellavatehtaassa Tammerkosken rannalla aivan ydinkeskustan tuntumassa. Rakennus on täysin saneerattu vuonna 2017, ja sen tiloissa yhdistyvät historiallinen tehdasmiljöö ja moderni toimitilataso. Tilojen tunnusomaisia piirteitä ovat korkea huonekorkeus ja suuret ikkunat, jotka tuovat runsaasti luonnonvaloa ja luovat näyttävän työympäristön.
Kiinteistössä toimii ravintola Tampella, ja vuokralaisille on tarjolla myös laadukkaat pukuhuonetilat. Keskeinen sijainti keskustassa tarjoaa erinomaiset palvelut sekä hyvät liikenneyhteydet niin julkisilla kulkuvälineillä kuin autollakin.
Tämä tila tarjoaa ainutlaatuisen yhdistelmän historiaa, laatua ja toimivuutta – täydellinen ratkaisu yritykselle, joka arvostaa keskeistä sijaintia ja korkeatasoista työympäristöä.
Kiinteistö sijaitsee Tampellan alueella, Tampellan vanhassa pellavatehtaassa Tammerkosken rannalla aivan ydinkeskustan tuntumassa. Rakennus on täysin saneerattu vuonna 2017, ja sen tiloissa yhdistyvät historiallinen tehdasmiljöö ja moderni toimitilataso. Tilojen tunnusomaisia piirteitä ovat korkea huonekorkeus ja suuret ikkunat, jotka tuovat runsaasti luonnonvaloa ja luovat näyttävän työympäristön.
Kiinteistössä toimii ravintola Tampella, ja vuokralaisille on tarjolla myös laadukkaat pukuhuonetilat. Keskeinen sijainti keskustassa tarjoaa erinomaiset palvelut sekä hyvät liikenneyhteydet niin julkisilla kulkuvälineillä kuin autollakin.
Tämä tila tarjoaa ainutlaatuisen yhdistelmän historiaa, laatua ja toimivuutta – täydellinen ratkaisu yritykselle, joka arvostaa keskeistä sijaintia ja korkeatasoista työympäristöä.
Vapautuu
Heti
Saneerausvuosi
2017
Kerros
1
Energiatehokkuusluokka
Ei lain edellyttämää energiatodistusta
Katutasossa
Näkyvällä paikalla
Ota yhteyttä
ScanReal Oy LKV
Opus Business Park
Hitsaajankatu 24
00810 Helsinki
info@scanreal.fi
Puh:
Näytä puhelinnumero
020 730 8830
Sopivat toimitilat yhdellä otolla!
Kartoitamme toimitilatarpeesi ja etsimme yrityksellesi parhaiten sopivat vapaat toimitilat. Koska vuokranantajat maksavat palvelumme, on tämä yrityksellesi veloituksetonta.
Palvelumme on tilanhakijalle ilmainen
Pyydä lisätietoa
