Vuokrataan/myydään toimistotilat, liiketilat, tuotantotilat, varastotilat, työtilat, tontti, autotalli/-hallitilat, varastohotelli - Rauma
Uusi toimitila yrityksellesi Rauman Lakarin teollisuusalueella, Lakarinkatu 30, 26510 Rauma #10860495
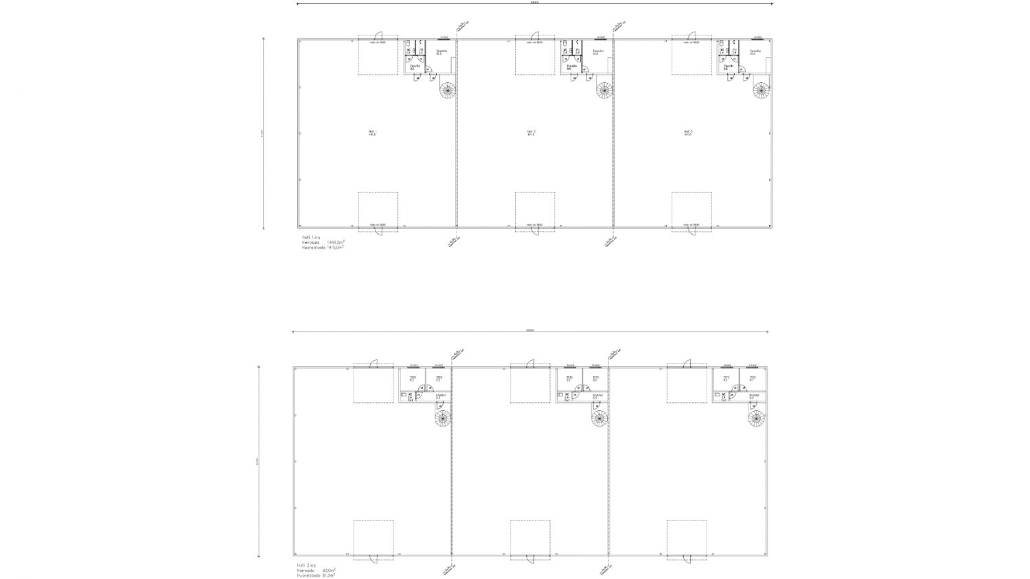
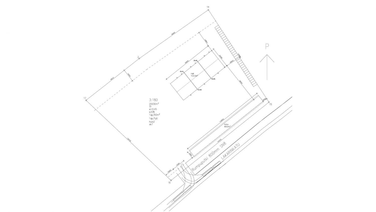
Mahdollisuus toteuttaa yrityksellesi uudet toimitilat Rauman Lakarin teollisuusalueelle. Lakarinkatu 30, tontti noin 2 ha, rakennusoikeus noin 9000 m². Toimitilat suunnitellaan yrityksen tarpeisiin varasto-, tuotanto- tai logistiikkakäyttöön.
Osoite
Lakarinkatu 30, 26510 Rauma
Tilatyyppi
Toimistotilaa
9000 m2
Liiketilaa
9000 m2
Tuotantotilaa
9000 m2
Varastotilaa
9000 m2
Työtilaa
9000 m2
Tontti
9000 m2
Autotalli/-hallitilaa
9000 m2
Varastohotelli
9000 m2
Yhteensä
9000 m2
Kiinteistö
Lakarinkatu 30 sijaitsevalle noin 2 hehtaarin tontille on mahdollista toteuttaa yrityksen tarpeisiin suunnitellut toimitilat. Rakennusoikeutta tontilla on noin 9000 m².
Tontille voidaan rakentaa esimerkiksi varasto-, tuotanto- tai logistiikkatiloja. Tilojen koko, toiminnallisuus ja tekniset ratkaisut suunnitellaan yhdessä käyttäjäyrityksen kanssa.
Tilat voidaan toteuttaa joko vuokrattaviksi toimitiloiksi tai yrityksen omaksi kiinteistöksi.
Rakennus JTS Oy vastaa hankkeen suunnittelusta ja toteutuksesta avaimet käteen -periaatteella.
Tontille voidaan rakentaa esimerkiksi varasto-, tuotanto- tai logistiikkatiloja. Tilojen koko, toiminnallisuus ja tekniset ratkaisut suunnitellaan yhdessä käyttäjäyrityksen kanssa.
Tilat voidaan toteuttaa joko vuokrattaviksi toimitiloiksi tai yrityksen omaksi kiinteistöksi.
Rakennus JTS Oy vastaa hankkeen suunnittelusta ja toteutuksesta avaimet käteen -periaatteella.
Sijainti
Kohde sijaitsee Rauman Lakarin teollisuusalueella osoitteessa Lakarinkatu 30, Rauma. Lakari on kehittyvä teollisuus- ja yritysalue, jossa toimii useita teollisuus-, logistiikka- ja palveluyrityksiä.
Sijainti tarjoaa hyvät logistiset yhteydet yritystoiminnalle.
Etäisyydet:
- valtatie 8 noin 1,7 km
- Rauman satama noin 8,6 km
- Rauman keskusta noin 7 km
- Pori noin 47 km
- Turku noin 95 km
Rauman satama on yksi Suomen merkittävimmistä vientisatamista.
Sijainti tarjoaa hyvät logistiset yhteydet yritystoiminnalle.
Etäisyydet:
- valtatie 8 noin 1,7 km
- Rauman satama noin 8,6 km
- Rauman keskusta noin 7 km
- Pori noin 47 km
- Turku noin 95 km
Rauman satama on yksi Suomen merkittävimmistä vientisatamista.
Ympäristö
Lakarin alue on teollisuus- ja yritystoimintaan kaavoitettu alue, joka soveltuu erityisesti tuotanto-, varasto- ja logistiikkatoimintaan.
Alueella toimii useita teollisuus- ja logistiikka-alan yrityksiä, ja se tarjoaa toimivan ympäristön yritysten toiminnalle sekä hyvät kuljetusyhteydet.
Alueella toimii useita teollisuus- ja logistiikka-alan yrityksiä, ja se tarjoaa toimivan ympäristön yritysten toiminnalle sekä hyvät kuljetusyhteydet.
Kulkuyhteydet
Lakarin teollisuusalueelta on sujuvat yhteydet valtatie 8:lle, joka on yksi Suomen tärkeimmistä pohjois–eteläsuuntaisista pääväylistä.
Hyvät tieyhteydet mahdollistavat tehokkaan logistiikan sekä kuljetukset satamaan ja valtakunnalliseen tieverkkoon.
Rauman satama sijaitsee noin 10 minuutin ajomatkan päässä.
Hyvät tieyhteydet mahdollistavat tehokkaan logistiikan sekä kuljetukset satamaan ja valtakunnalliseen tieverkkoon.
Rauman satama sijaitsee noin 10 minuutin ajomatkan päässä.
Vuokralaisia
Rakennus JTS on toteuttanut toimitilahankkeita useille yrityksille, kuten esimerkiksi Vianorille ja Delete Oy:lle.
Muuta
Ilmoituksessa esitetyt kuvat sisältävät asemakuvan tontista sekä esimerkin mahdollisesta toimitilarakennuksen toteutuksesta. Tilat suunnitellaan ja toteutetaan yrityksen tarpeiden mukaan.
Vapautuu
Kysy
Ota yhteyttä
Pyydä lisätietoa
