Myydään tuotantotilat - Karkkila
Pajakatu 7, Toivike, 03620 Karkkila #10860303
Monipuolinen teollisuuskiinteistö Karkkilassa.
Myynnissä teollisuuskäyttöön soveltuva hallikokonaisuus Karkkilan Pajakadulla.
Oma 1935 m² tontti tarjoaa hyvät puitteet korjaamo-, metallialan, tuotannon tai varastoinnin tarpeisiin.
Rakennus on ollut aktiivisessa teollisessa käytössä, mikä näkyy sen kunnossa, mutta tilat ovat edelleen hyvin käyttökelpoiset ja tarjoavat paljon mahdollisuuksia.
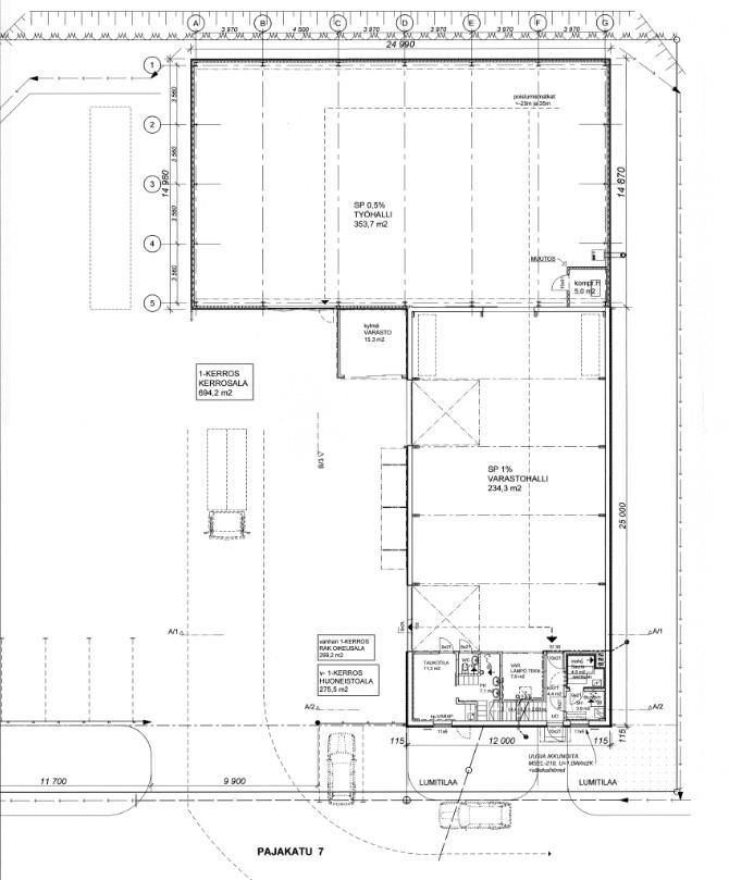
Tilat
Kokonaisala 742 m² muodostuu kolmesta osasta:
Alkuperäinen halli (1971) n. 300 m²
Laajennusosa (2006) n. 373 m²
Asunto (2017) 58 m²
Hallin vapaakorkeus on noin 5 metriä, ja käytössä on kaksi 5 tonnin siltanosturia.
Tilaan johtaa kaksi nosto-ovea sekä laajennusosan taitto-ovi.
Lattiassa on kolme kaivoa, joissa öljyn- ja hiekanerotus.
Laajennusosassa on hitsausrobotille toteutettu asennuskuilu.
Rakenteet ja tekniikka
Alkuperäinen osa: puupalkkirunko, siporex-harkot
Laajennus: teräspalkkirunko, teräs/peltiverhous
Harjakatto, peltikate
Maanvarainen betonilaatta
Sähköliittymä 3 x 63 A, 400 V
Lämmitys
Hallissa on vesi-ilmalämpöpumppu ja ilmalämmitys puhaltimin. Aiempi öljylämmitys on edelleen paikallaan varajärjestelmänä.
Kaava ja tontti
Tontti 1 935 m²
Asemakaava TY-1 II, e= 0,50: teollisuus- ja varastorakennusten korttelialue.
Sijainti ja etäisyydet
Kohde sijaitsee Karkkilan teollisuusalueella lähellä Porintietä, mikä tarjoaa sujuvan yhteyden Etelä-Suomen keskeisille alueille:
Helsinki n. 60 min
Hämeenlinna n. 45 min
Sijainti sopii hyvin yrityksille, jotka tarvitsevat toimivan tuotantotilan sekä hyvät kulkuyhteydet eri suuntiin.
Lisätietoja ja esittelyt:
Mika Nyman
0400347758
mika.nyman@op.fi
kiinteistötunnus 224-3-24-3.
Velattomat kiinnitykset yht.arvoltaan 450.000 €, jotka siirretään ostajalle kaupanteon yhteydesä.
Omat tontti 1935 m².
Asemakaava: TY-1 II, e=0,50
Raskaan teollisuuden tehdasrakennukset
Rakennusvuosi 1971, 300 m². (loppukatselmus 24.5.1972)
Laajennus 2006, 373 m² (loppukatselmus 14.12.2006)
Asunto tehty 2017, 58 m². (loppukatselmus 20.4.2017)
Kerrosala 742 m².
Alkuperäinen osa puupalkkirunko, siporex harkko.
Laajennusosa teräspalkkirunko, pelti/teräsverhous.
Harjakatto, peltikate.
Maanvarainen betonilaatta
Vesi-ilmalämpöpumppu - ilmalämmitys puhaltimin.
Ollut öljylämmitys (varalla)
Sähkö pääsulake 3 x 63 A, 400 V
Asunto vuokrattu. Vuokra 300 € /kk.
Sopimus suullinen, eikä sopimusta ole irtisanottu.
Muut tilat:
Kerrosala: 742 m²
Kokonaisala: 731m²
Asunto n. 58 m² (huoneistoala on pääpiirustuksen mukaan 44,9 m² ja kerrosala 54,9 m²)
1971 rakennettu 300 m²
2006 rakennettu 373 m² laajennusosa
2017 asunto 58 m²
Jaettavissa
Siltanosturi
OP Koti Uusimaa Oy LKV
Toimitilapalvelut
Arkadiankatu 23
00100 HELSINKI
Mika Nyman
Toimitilavälittäjä, Kiinteistöarvioija, LKV, YKV, AKA/KHK
Näytä puhelinnumero
0400 347 758
