Vuokrataan toimistotilat - Helsinki
Sahaajankatu 24, Herttoniemi, 00880 Helsinki #10860250
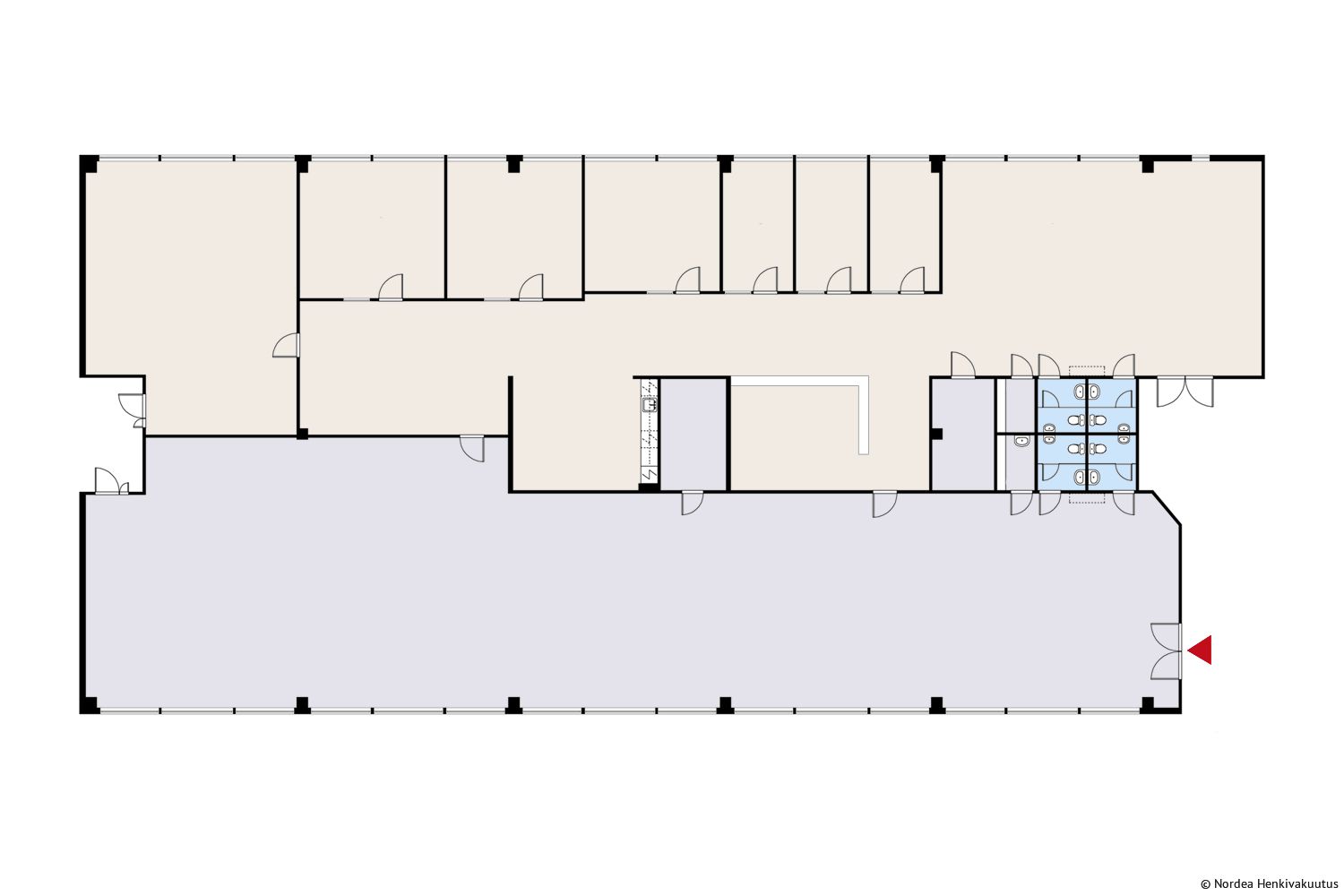
Vuokrataan 1. kerroksen toimitila, joka koostuu noin 300 m² varastotilasta sekä 385 m² toimistotilasta. Tilaan suorayhtetys lastauslaiturilta. Helsingin Sahaajankatu 24 tilat soveltuvat erityisesti teollisuusalan toimijoille, joilla on tarvetta toimisto-, logistiikka- ja tuotantotiloille. Tilat ovat muokattavissa vuokralaisen tarpeen mukaan. Kiinteistöstä löytyy myös tilava tavarahissi.
Nordea Henkivakuutus Suomi Oy:n omistamissa kiinteistössä käytetään vihreää kiinteistösähköä.
Nordea Henkivakuutus Suomi Oy
Aleksis Kiven katu 9, Helsinki 00020 NORDEA
Juha Hakala
Näytä puhelinnumero
050 477 7966
Nordea Henkivakuutus Suomi Oy vuokraa toimitiloja omistamistaan ja hallinnoimistaan sijoituskiinteistöistä pääkaupunkiseudulla. Toimitilavuokrauksessa Nordea Henkivakuutuksen yhteistyökumppani on Newsec Asset Management.
http://nordeahenkivakuutustoimitilat.fi