Myydään toimistotilat, tuotantotilat, muut tilat - Pirkkala
Keisarinviitta 18, 33960 Pirkkala #10860171
Myydään HYVÄLLÄ TUOTOLLA koko kiinteistöosakeyhtiön (Y-tunnus 2721059-3) osakekanta. Yhtiö omistaa osoitteessa Keisariviitta 18, 33980 Pirkkala sijaitsevan kiinteistön rakennuksineen ja liittymineen.
Osoite
Keisarinviitta 18, 33960 Pirkkala
Tilatyyppi
Toimistotilaa
255 m2
Tuotantotilaa
881 m2
Muuta tilaa
4 m2
Yhteensä
1140 m2
Tilajako
Jaettavissa
Tuotantohalli 1, noin 602 m² (jaettu kahden vuokralaisen kesken).
Tuotantohalli 2, noin 279 m² (tilassa yksi vuokralainen).
Pohjapiirros
Kiinteistö
Kiinteistöllä sijaitseva halli- ja toimistorakennus on valmistunut vuonna 1988, ja sitä on laajennettu vuosina 2013 ja 2017. Rakennus on yksikerroksinen ja sen kokonaiskerrosala on noin 1 140 kem².
Rakennuksen halliosassa seinärakenne on puurunko uretaanieristeellä, ja toimisto-osassa on puurunkoinen rakenne. Julkisivut ovat julkisivulevyä ja tiiliverhousta, ja rakennuksessa on harjakatto tiilikuvioisella peltikatteella.
Rakennuksessa on sähkölämmitys. Toimistotiloissa lämmönluovutus tapahtuu pattereiden ja ilmalämpöpumppujen avulla, ja hallitiloissa käytössä on ilmalämpöpumppuja. Kiinteistö on liitetty kaupungin vesi- ja viemäriverkostoon.
Toimistotiloissa on koneellinen ilmanvaihto tuloilman jäähdytyksellä, ja hallitiloissa ilmanvaihto on toteutettu huippuimurien avulla.
Hallitilan vapaa korkeus on alkuperäisessä, vuonna 1988 valmistuneessa osassa noin 4 metriä kantavaan palkkiin, ja vuonna 2013 valmistuneessa laajennusosassa noin 6 metriä kantavaan palkkiin.
Rakennusta on myös päivitetty viime vuosina: toimistosiiven vesikate uusittiin vuonna 2017 ja vanhan halliosan kattoremontti tehtiin vuonna 2021. Samana vuonna toimistotilojen wc-tilat ja keittiö remontoitiin.
Rakennuksessa on useita nosto-ovia, ja tilat ovat helposti saatu jaettua kolmelle käyttäjälle.
Rakennuksen kuvaus
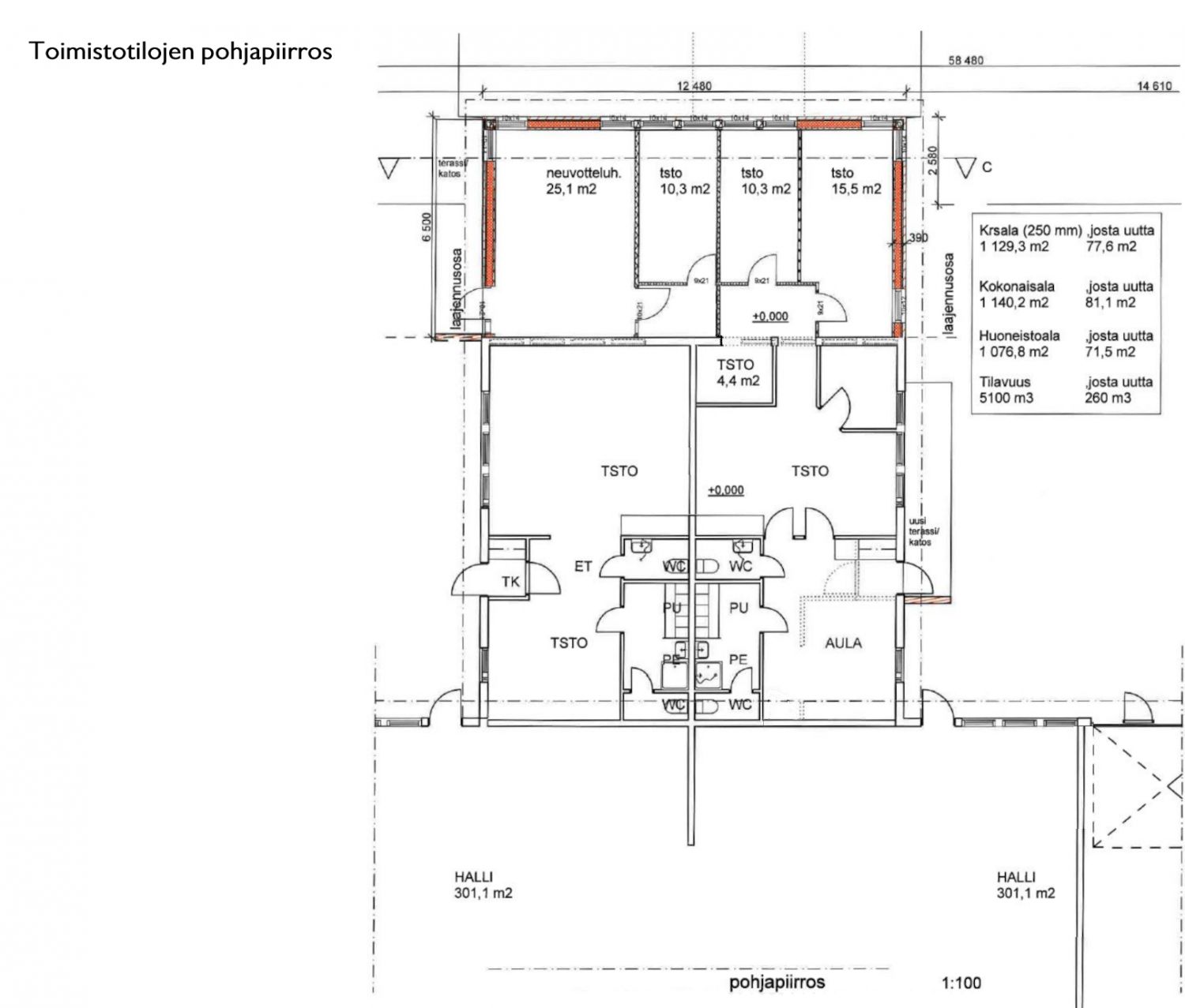
Rakennus muodostuu kahdesta L-muotoisesta toimisto- ja halliosasta, jotka sijoittuvat tontille peilikuvamaisesti. Rakennuksen itäpäässä sijaitsee vuonna 2013 toteutettu hallilaajennus, joka on alkuperäistä halliosaa korkeampi ja mahdollistaa läpiajettavan hallitilan.
Hallitilat ovat pääosin yhtenäistä ja avaraa tilaa, jossa on kolme nosto-ovea.
Rakennuksen alkuperäisen halliosan Keisarintien puoleisella julkisivulla sijaitsee toimisto- ja sosiaalitilaosuus. Tiloja on muokattu useaan otteeseen ja ne on käytännössä uudistettu vuonna 2017 toteutetun toimistolaajennuksen yhteydessä.
Toimistosiivessä sijaitsevat tuloaula, neuvotteluhuone, useita toimistohuoneita, arkistohuone sekä wc-tilat.
Kiinteistötiedot
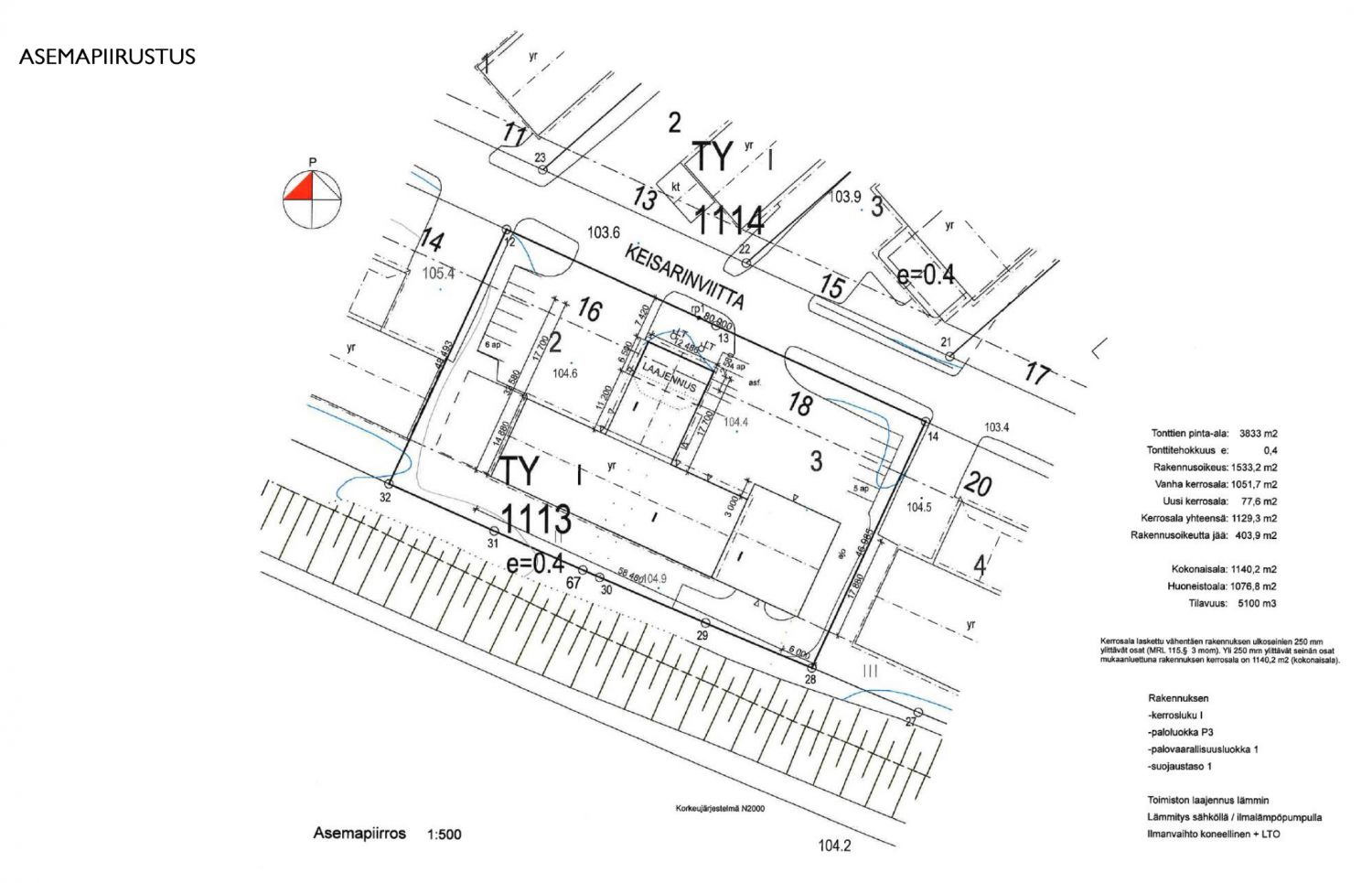
Kiinteistö sijaitsee omistustontilla, jonka kiinteistötunnus on 604-418-1-575. Rakennuspaikka on muodostettu tiloista 604-418-1-476, 604-418-1-477 ja 604-418-1-387. Tontin pinta-ala on 3 834 m².
Kiinteistörekisteriotteen mukaan kiinteistöön ei kohdistu rasitteita tai käyttöoikeuksia. Rasitustodistuksen perusteella kiinteistöön kohdistuvat ainoastaan panttikirjakiinnitykset.
Kaavatilanne
Voimassa olevan asemakaavan (8.10.1985) mukaan tontti kuuluu teollisuusrakennusten korttelialueeseen (TY-1), jolla ympäristö asettaa toiminnan laadulle erityisiä vaatimuksia. Suurin sallittu kerrosluku on I. Yleiskaavassa alue on osoitettu työpaikka-alueeksi.
Rakennusoikeus
Tontin tehokkuusluku on e = 0,4, mikä tarkoittaa yhteensä noin 1 533 kem² rakennusoikeutta. Kiinteistöllä on käyttämätöntä rakennusoikeutta arviolta noin 403 kem².
Tontin kuvaus
Tontti on suorakaiteen muotoinen ja muodostuu kolmesta vierekkäisestä tilasta. Se rajautuu kaakon ja pohjoisen suunnalla kunnan katualueeseen sekä etelän ja lounaan puolelta Kehätiehen. Muutoin tontti rajoittuu naapurikiinteistöihin.
Tontin liikennöinti- ja paikoitusalueet on asfaltoitu, ja tontille on kaksi ajoliittymää.
Rakennuksen halliosassa seinärakenne on puurunko uretaanieristeellä, ja toimisto-osassa on puurunkoinen rakenne. Julkisivut ovat julkisivulevyä ja tiiliverhousta, ja rakennuksessa on harjakatto tiilikuvioisella peltikatteella.
Rakennuksessa on sähkölämmitys. Toimistotiloissa lämmönluovutus tapahtuu pattereiden ja ilmalämpöpumppujen avulla, ja hallitiloissa käytössä on ilmalämpöpumppuja. Kiinteistö on liitetty kaupungin vesi- ja viemäriverkostoon.
Toimistotiloissa on koneellinen ilmanvaihto tuloilman jäähdytyksellä, ja hallitiloissa ilmanvaihto on toteutettu huippuimurien avulla.
Hallitilan vapaa korkeus on alkuperäisessä, vuonna 1988 valmistuneessa osassa noin 4 metriä kantavaan palkkiin, ja vuonna 2013 valmistuneessa laajennusosassa noin 6 metriä kantavaan palkkiin.
Rakennusta on myös päivitetty viime vuosina: toimistosiiven vesikate uusittiin vuonna 2017 ja vanhan halliosan kattoremontti tehtiin vuonna 2021. Samana vuonna toimistotilojen wc-tilat ja keittiö remontoitiin.
Rakennuksessa on useita nosto-ovia, ja tilat ovat helposti saatu jaettua kolmelle käyttäjälle.
Rakennuksen kuvaus
Rakennus muodostuu kahdesta L-muotoisesta toimisto- ja halliosasta, jotka sijoittuvat tontille peilikuvamaisesti. Rakennuksen itäpäässä sijaitsee vuonna 2013 toteutettu hallilaajennus, joka on alkuperäistä halliosaa korkeampi ja mahdollistaa läpiajettavan hallitilan.
Hallitilat ovat pääosin yhtenäistä ja avaraa tilaa, jossa on kolme nosto-ovea.
Rakennuksen alkuperäisen halliosan Keisarintien puoleisella julkisivulla sijaitsee toimisto- ja sosiaalitilaosuus. Tiloja on muokattu useaan otteeseen ja ne on käytännössä uudistettu vuonna 2017 toteutetun toimistolaajennuksen yhteydessä.
Toimistosiivessä sijaitsevat tuloaula, neuvotteluhuone, useita toimistohuoneita, arkistohuone sekä wc-tilat.
Kiinteistötiedot
Kiinteistö sijaitsee omistustontilla, jonka kiinteistötunnus on 604-418-1-575. Rakennuspaikka on muodostettu tiloista 604-418-1-476, 604-418-1-477 ja 604-418-1-387. Tontin pinta-ala on 3 834 m².
Kiinteistörekisteriotteen mukaan kiinteistöön ei kohdistu rasitteita tai käyttöoikeuksia. Rasitustodistuksen perusteella kiinteistöön kohdistuvat ainoastaan panttikirjakiinnitykset.
Kaavatilanne
Voimassa olevan asemakaavan (8.10.1985) mukaan tontti kuuluu teollisuusrakennusten korttelialueeseen (TY-1), jolla ympäristö asettaa toiminnan laadulle erityisiä vaatimuksia. Suurin sallittu kerrosluku on I. Yleiskaavassa alue on osoitettu työpaikka-alueeksi.
Rakennusoikeus
Tontin tehokkuusluku on e = 0,4, mikä tarkoittaa yhteensä noin 1 533 kem² rakennusoikeutta. Kiinteistöllä on käyttämätöntä rakennusoikeutta arviolta noin 403 kem².
Tontin kuvaus
Tontti on suorakaiteen muotoinen ja muodostuu kolmesta vierekkäisestä tilasta. Se rajautuu kaakon ja pohjoisen suunnalla kunnan katualueeseen sekä etelän ja lounaan puolelta Kehätiehen. Muutoin tontti rajoittuu naapurikiinteistöihin.
Tontin liikennöinti- ja paikoitusalueet on asfaltoitu, ja tontille on kaksi ajoliittymää.
Sijainti
Kiinteistö sijaitsee Pirkkalan Takamaan teollisuusalueella, aivan Tampereen Läntisen kehätien tuntumassa. Pirkkalan keskustaan on matkaa noin 2 km etelään ja kehätien liittymään noin 1 km. Tampereen keskustaan matkaa on noin 13 km ja Tampere–Pirkkalan lentoasemalle noin 4,8 km.
Vuokralaisia
Koko kiinteistö on vuokrattu. Vuokralaisina: Tammerbitumi Oy, Anticimex Oy ja Elintarviketukku Rikainen Oy.
Muuta
Kiinteistö sijaitsee omistustontilla, jonka pinta-ala on 3 834 m².
Lisätietoa saneerauksista
Useampia saneerauskierroksia, joista viimeisin toteutettu vuonna 2021.
Vapautuu
Sopimuksen mukaan.
Rakennusvuosi
1988
Saneerausvuosi
2021
Kerros
1 / 1
Jaettavissa
Ota yhteyttä
Tahoma Oy
Jukka Lankinen
Kiinteistöjohtaja
Näytä puhelinnumero
050 4090 228
Tahoma Oy on vuonna 2012 perustettu pirkanmaalaisessa omistuksessa oleva vakavarainen kiinteistösijoitusyhtiö. Omistamme ja vuokraamme toimitiloja liike-, toimisto,- liikunta-, pienteollisuus- ja teollisuuskäyttöön.
https://www.tahoma.fi/Pyydä lisätietoa
