Myydään muut tilat - Rauma
Syväraumankatu 27, 26100 Rauma #10860170
Sijoituskohde Raumalla – asuin- ja liikekiinteistö omalla tontilla
Osoite
Syväraumankatu 27, 26100 Rauma
Tilatyyppi
Muuta tilaa
1320 m2
Kiinteistö
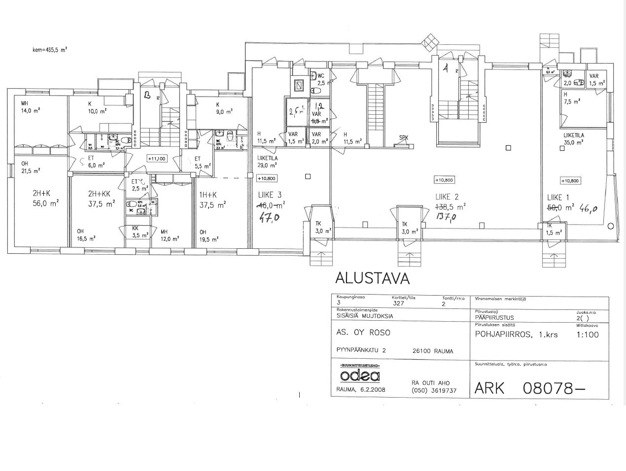
Myytävänä koko osakekanta, joka omistaa asuin- ja liikekiinteistön Raumalla. Kohde tarjoaa sijoittajalle valmiin kassavirtaa tuottavan kokonaisuuden, jossa yhdistyvät asunto- ja liiketilavuokrat.
Rakennus sijaitsee omalla 1 620 m² tontilla ja sen kerrosala on noin 1 320 m². Kiinteistö on valmistunut vuonna 1955 ja siinä on 3 kerrosta sekä kaksi porrashuonetta. Autopaikkoja tontilla on 21 kpl.
Kiinteistössä on yhteensä
-19 asuinhuoneistoa
- 4 liiketilaa
- Asuntojen koot vaihtelevat noin 26,5–57 m², mikä muodostaa hyvin vuokrattavan yksiö- ja kaksiojakautuman.
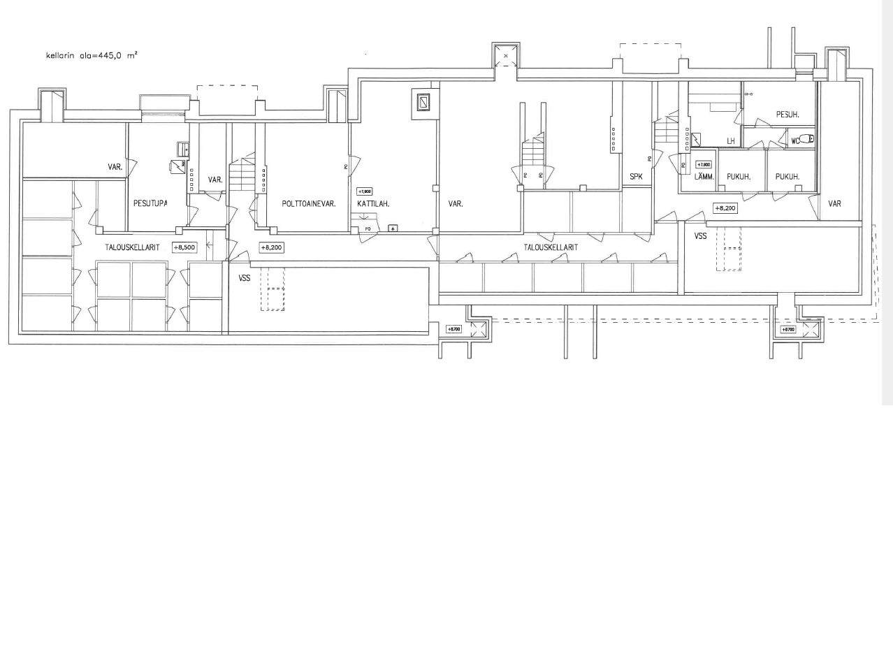
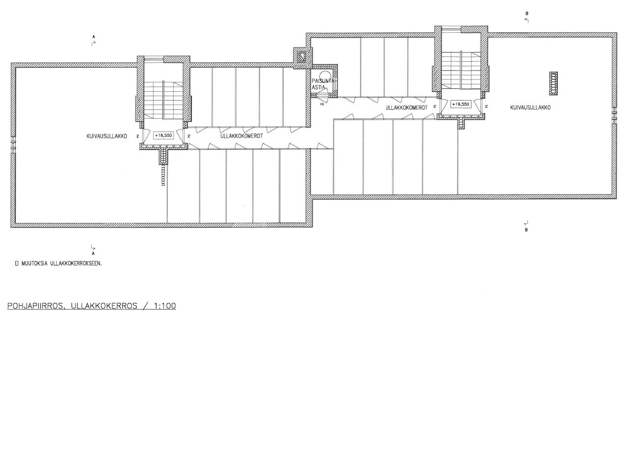
- Rakennuksessa on lisäksi kellari- ja ullakkovarastoja sekä väestönsuoja.
Vuokratuotto
- Asuntojen ja liiketilojen vuokrat yhteensä noin 11 563,99 €/kk
- > vuokratuotot noin 138 700 €/vuosi
Liiketilojen ja varaston vuokrat yhteensä noin 2 883,99 €/kk.
- > vuokratulot noin 34 603 € / vuosi
Tehdyt remontit
Kiinteistöä on peruskorjattu useassa vaiheessa.
- 2008 – laaja saneeraus
- viemärit ja vesijohdot uusittu
- kylpyhuoneet ja wc-tilat saneerattu
- huoneistojen pinnat uusittu (laminaatit, maalaukset)
- osa sähköistä uusittu
- keittiökalusteita kunnostettu
- liiketilojen sähköt ja ilmanvaihto uusittu
- liiketiloihin lattialämmitys ja jäähdytys
- kiinteistö liitetty kaukolämpöön ja lämmönvaihdin uusittu
Muut remontit
- vesikatto uusittu 2006
- ikkunat uusittu 2014
- kiinteistöön asennettu 2 ilmalämpöpumppua 2020
- Lisäksi huoneistoja on päivitetty ja huollettu vuokralaisten vaihtuessa.
Rakennuksen teknisiä tietoja
- Lämmitys: kaukolämpö
- Lämmönkulutus: noin 330 690 kWh/vuosi
- Sähkönkulutus: noin 4 660 kWh/vuosi
- Vedenkulutus: noin 1 250 m³/vuosi
Sijoittajalle kohde tarjoaa:
- vakaan vuokratuoton
- oman tontin
- asunto- ja liiketilojen yhdistelmän
- laajasti peruskorjatun talotekniikan
- hyvän vuokrausasteen
- potentiaalia vuokrien optimointiin ja huoneistojen vaiheittaiseen päivittämiseen
Rakennus sijaitsee omalla 1 620 m² tontilla ja sen kerrosala on noin 1 320 m². Kiinteistö on valmistunut vuonna 1955 ja siinä on 3 kerrosta sekä kaksi porrashuonetta. Autopaikkoja tontilla on 21 kpl.
Kiinteistössä on yhteensä
-19 asuinhuoneistoa
- 4 liiketilaa
- Asuntojen koot vaihtelevat noin 26,5–57 m², mikä muodostaa hyvin vuokrattavan yksiö- ja kaksiojakautuman.
- Rakennuksessa on lisäksi kellari- ja ullakkovarastoja sekä väestönsuoja.
Vuokratuotto
- Asuntojen ja liiketilojen vuokrat yhteensä noin 11 563,99 €/kk
- > vuokratuotot noin 138 700 €/vuosi
Liiketilojen ja varaston vuokrat yhteensä noin 2 883,99 €/kk.
- > vuokratulot noin 34 603 € / vuosi
Tehdyt remontit
Kiinteistöä on peruskorjattu useassa vaiheessa.
- 2008 – laaja saneeraus
- viemärit ja vesijohdot uusittu
- kylpyhuoneet ja wc-tilat saneerattu
- huoneistojen pinnat uusittu (laminaatit, maalaukset)
- osa sähköistä uusittu
- keittiökalusteita kunnostettu
- liiketilojen sähköt ja ilmanvaihto uusittu
- liiketiloihin lattialämmitys ja jäähdytys
- kiinteistö liitetty kaukolämpöön ja lämmönvaihdin uusittu
Muut remontit
- vesikatto uusittu 2006
- ikkunat uusittu 2014
- kiinteistöön asennettu 2 ilmalämpöpumppua 2020
- Lisäksi huoneistoja on päivitetty ja huollettu vuokralaisten vaihtuessa.
Rakennuksen teknisiä tietoja
- Lämmitys: kaukolämpö
- Lämmönkulutus: noin 330 690 kWh/vuosi
- Sähkönkulutus: noin 4 660 kWh/vuosi
- Vedenkulutus: noin 1 250 m³/vuosi
Sijoittajalle kohde tarjoaa:
- vakaan vuokratuoton
- oman tontin
- asunto- ja liiketilojen yhdistelmän
- laajasti peruskorjatun talotekniikan
- hyvän vuokrausasteen
- potentiaalia vuokrien optimointiin ja huoneistojen vaiheittaiseen päivittämiseen
Vapautuu
Heti
Rakennusvuosi
1955
Ota yhteyttä
Comreal Oy LKV
Ville Laitinen
Näytä puhelinnumero
+358 40 663 8767
Läkkisepänkuja 6, 00620 Helsinki
Comreal on valtakunnallinen, asiantunteva ja aktiivinen kiinteistöalan kumppani, joka palvelee sekä kiinteistönomistajia että toimitilojen käyttäjiä. Toimintamme ydin on yksinkertainen: tarjota erinomaista palvelua kaikille.
Pyydä lisätietoa
