Vuokrataan varastotilat - Nokia
Rounionkatu 126, Kolmenkulma, 37150 Nokia #10859967
Osoite
Rounionkatu 126, 37150 Nokia
Tilatyyppi
Varastotilaa
113,5 m2
Muuta
Kolmenkulmassa erittäin hyväkuntoista halli-/toimistotilaa vapaana.
Alle kilometrin päässä Kolmenkulman ABC -huoltoasemalta ja n. 4 km päässä Tesoman kauppakeskukselta sijaitsee siisti betonirakenteinen hallikiinteistö. Myös moottoritien risteys on ihan lähellä. Tila on aivan vilkasliikenteisen Rounionkadun varrella, hyvä näkyvyys.
Suuri piha-alue on valaistu, kokonaan asfaltoitu ja ympäri ajettavissa.
Vankkarakenteinen rakennus on valmistunut 2017.
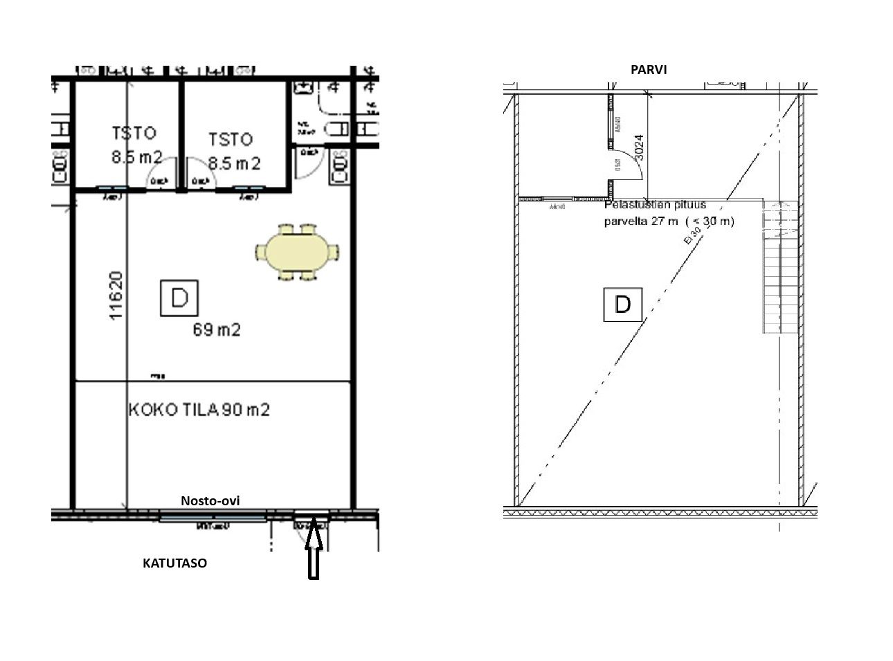
Vapaana oleva siisti monitoimitila koostuu hallitilasta, kahdesta toimisto-/varastohuoneesta ja parvesta. Parvella on avotilaa ja yksi erillinen huone. Minikeittiö ja wc, jossa suihkukaappi. Katutason tila on kooltaan 90 m2 ja parvi 23,5 m2.
Tila soveltuu hyvin monenlaiseen käyttöön, esim. pientuotantoon, varastoksi, varastomyymäläksi, toimistokäyttöön yms.
Tiedot:
-Korkeus n. 5 m
-Sähkötoiminen kaukosäätimellä toimiva nosto-ovi 3,5 m x 4 m
-Erillinen käyntiovi
-Lattiakaivo öljyn- ja hiekanerotuksella
-Sähkö 3x25A, useita pistorasioita
-Koneellinen ilmanvaihto
-Maalämpö, vesikiertoinen lattialämmitys HUOM! Lämmitys sisältyy vuokraan.
-Lattia laatoitettu
-Led -valaistus
-Valomainospaikka
-Akustiikkalevyt katossa
-Minikeittiö
-WC jossa suihkukaappi
Tila ei sovellu automaalaamoksi, autokorjaamoksi eikä pesuhalliksi.
Vuokrasopimus tehdään alkuun minimissään vuodeksi.
Ole yhteydessä, mennään tutustumaan paikan päälle:
annina.niemi@catella.fi, p. 0404812220
Alle kilometrin päässä Kolmenkulman ABC -huoltoasemalta ja n. 4 km päässä Tesoman kauppakeskukselta sijaitsee siisti betonirakenteinen hallikiinteistö. Myös moottoritien risteys on ihan lähellä. Tila on aivan vilkasliikenteisen Rounionkadun varrella, hyvä näkyvyys.
Suuri piha-alue on valaistu, kokonaan asfaltoitu ja ympäri ajettavissa.
Vankkarakenteinen rakennus on valmistunut 2017.
Vapaana oleva siisti monitoimitila koostuu hallitilasta, kahdesta toimisto-/varastohuoneesta ja parvesta. Parvella on avotilaa ja yksi erillinen huone. Minikeittiö ja wc, jossa suihkukaappi. Katutason tila on kooltaan 90 m2 ja parvi 23,5 m2.
Tila soveltuu hyvin monenlaiseen käyttöön, esim. pientuotantoon, varastoksi, varastomyymäläksi, toimistokäyttöön yms.
Tiedot:
-Korkeus n. 5 m
-Sähkötoiminen kaukosäätimellä toimiva nosto-ovi 3,5 m x 4 m
-Erillinen käyntiovi
-Lattiakaivo öljyn- ja hiekanerotuksella
-Sähkö 3x25A, useita pistorasioita
-Koneellinen ilmanvaihto
-Maalämpö, vesikiertoinen lattialämmitys HUOM! Lämmitys sisältyy vuokraan.
-Lattia laatoitettu
-Led -valaistus
-Valomainospaikka
-Akustiikkalevyt katossa
-Minikeittiö
-WC jossa suihkukaappi
Tila ei sovellu automaalaamoksi, autokorjaamoksi eikä pesuhalliksi.
Vuokrasopimus tehdään alkuun minimissään vuodeksi.
Ole yhteydessä, mennään tutustumaan paikan päälle:
annina.niemi@catella.fi, p. 0404812220
Vapautuu
Kysy
Kerros
1.
Ota yhteyttä
Catella Property Oy
Hämeenkatu 13b A, 33100 Tampere
Näytä puhelinnumero
010 5220 100
Annina Niemi
Näytä puhelinnumero
040 4812 220
Pyydä lisätietoa
