Vuokrataan toimistotilat - Helsinki
Porkkalankatu 7, Ruoholahti, 00180 Helsinki #10859917
Vuokrataan Salmisaaren Liiketalosta valoisa neljännen kerroksen toimistotila. Sisäkuvat ovat mallikuvia, tilat rakennetaan vuokralaisen tarpeet ja toiveet huomioiden. Ota yhteyttä ja sovi esittely, vuokrauspalvelumme on tilanhakijoille maksuton.
Osoite
Porkkalankatu 7, 00180 Helsinki
Tilatyyppi
Toimistotilaa
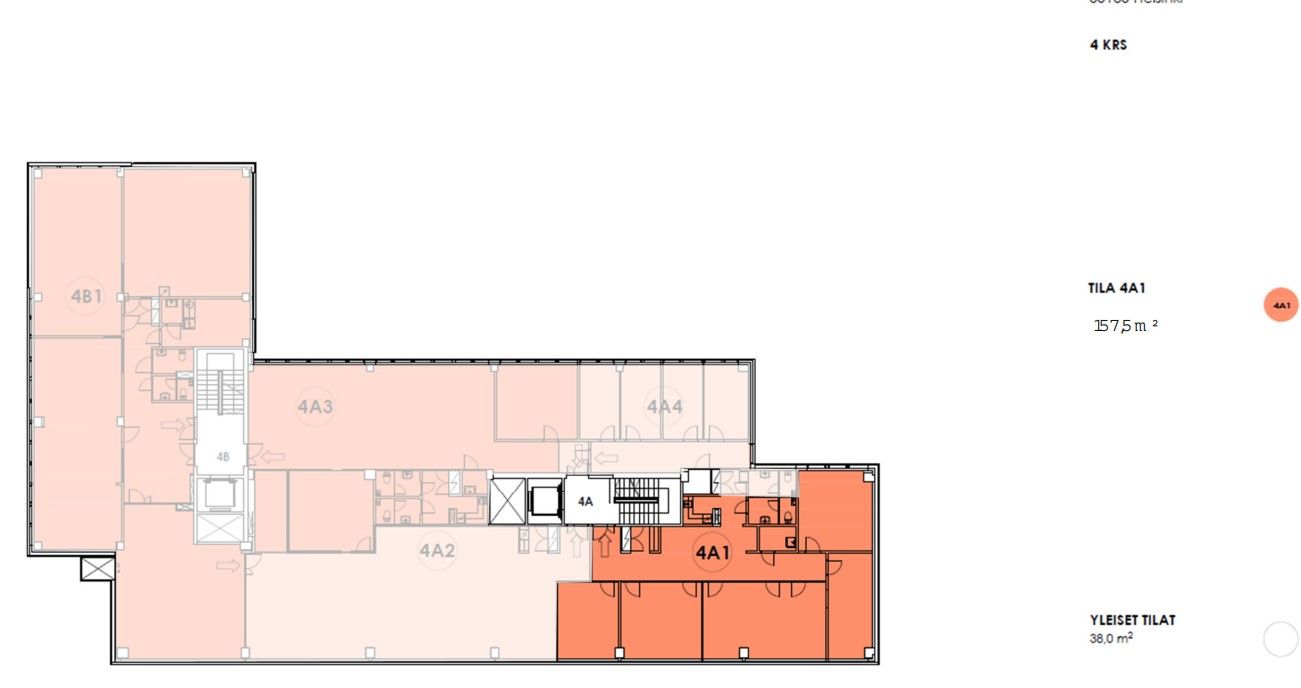
158 m2
Pohjapiirros
Kiinteistö
Salmisaaren Liiketalo
Pysäköinti
Autopaikkoja on vuokrattavissa kiinteistön pysäköintihallista, pihalta tai Kauppakeskus Ruoholahden parkkihallista.
Palvelut
Kauppakeskus Ruoholahti.
Kulkuyhteydet
Metro, raitiovaunut ja bussit.
Vapautuu
01.09.2026
Kerros
4 / 7
Energiatehokkuusluokka
F2007
Näkyvällä paikalla
Hissi
Liitetiedostot
Ota yhteyttä
Senaatin Notariaatti Oy LKV
Lämmittäjänkatu 4 A
FIN-00880 Helsinki
Tel:
Näytä puhelinnumero
+358 9 7745 100
Pyydä lisätietoa
