Vuokrataan toimistotilat, tuotantotilat, varastotilat - Helsinki
Ruosilantie 14, Konala, 00390 Helsinki #10859741
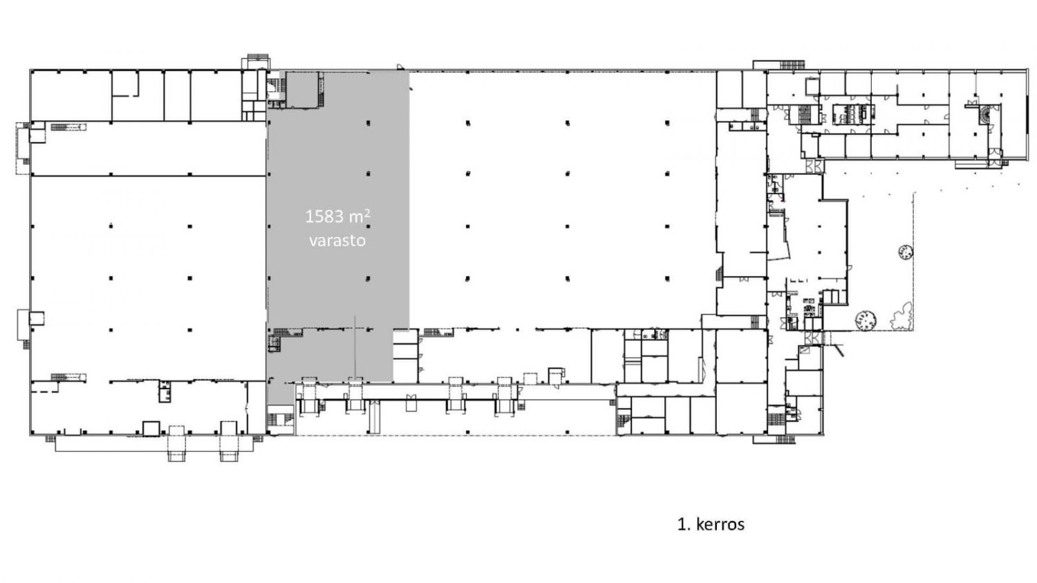
Vuokrattavana 2223 m² tilakokonaisuus sisältäen korkeaa varastoa 1583 m², siistiä parvivarastoa 422 m² sekä toimistoa 218 m². Korkea varasto (vapaa korkeus 6m) on selkeää tilaa, jossa on lastauslaituri ja nosto-ovi.
Kiinteistölle on asennettu aurinkopaneelit, jotka mahdollistavat uusiutuvan energian hyödyntämisen. Syksystä 2025 alkaen lämmitysmuotona on toiminut maalämpö, mikä tekee kiinteistöstä entistä energiatehokkaamman.
Kiinteistössä on oma lounasravintola, saunaosasto, sosiaalitilat ja laaja parkkialue. Kiinteistö sijaitsee Vihdintien välittömässä läheisyydessä ja on helposti saavutettavissa Kehä I:ltä. Hyvät bussiyhteydet ja Malminkartanon juna-asema sijaitsee 1,3 km päässä.
Kysy rohkeasti lisätietoja ja sovitaan käynti kohteella!
Hausala Oy
Erkkilänkatu 11, 33100 Tampere
Näytä puhelinnumero
050 472 7077
Mika Savikko
Näytä puhelinnumero
050 472 7077
Mikko Ranta
Näytä puhelinnumero
050 360 6500
