Vuokrataan toimistotilat, varastotilat - Helsinki
Ruosilantie 14, Konala, 00390 Helsinki #10859740
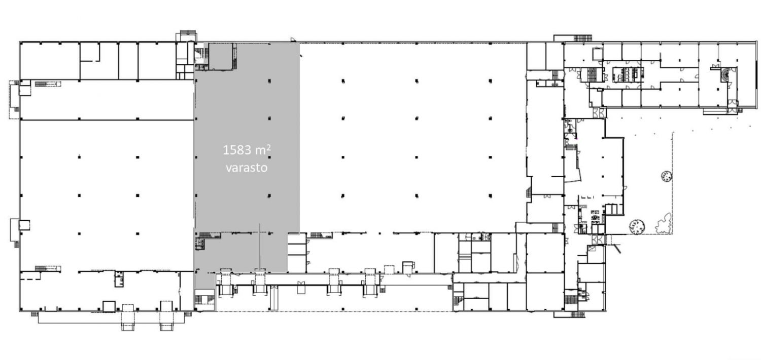
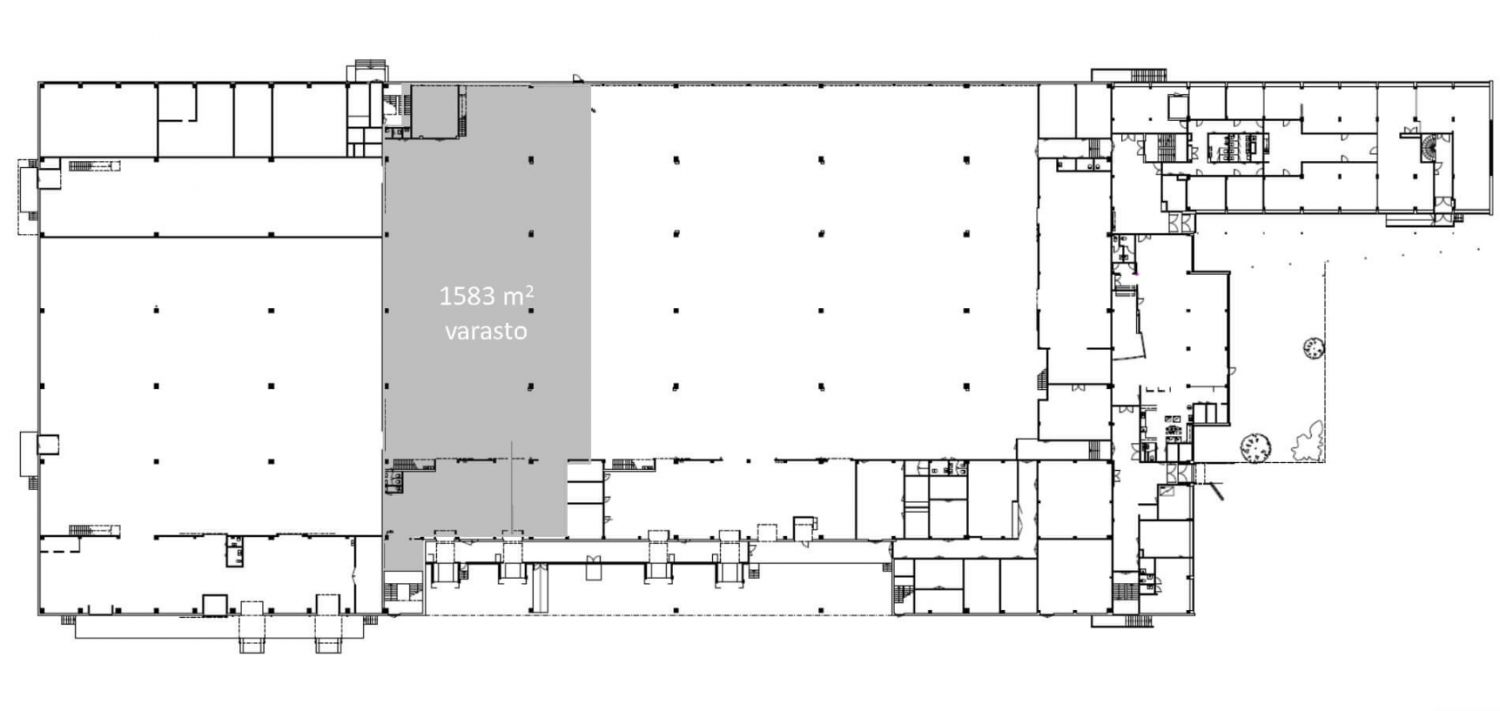
Ruosilantie 14 - Varasto 2005 m² + toimisto 430 m² (2223 m²)
Osoite
Ruosilantie 14, 00390 Helsinki
Tilatyyppi
Toimistotilaa
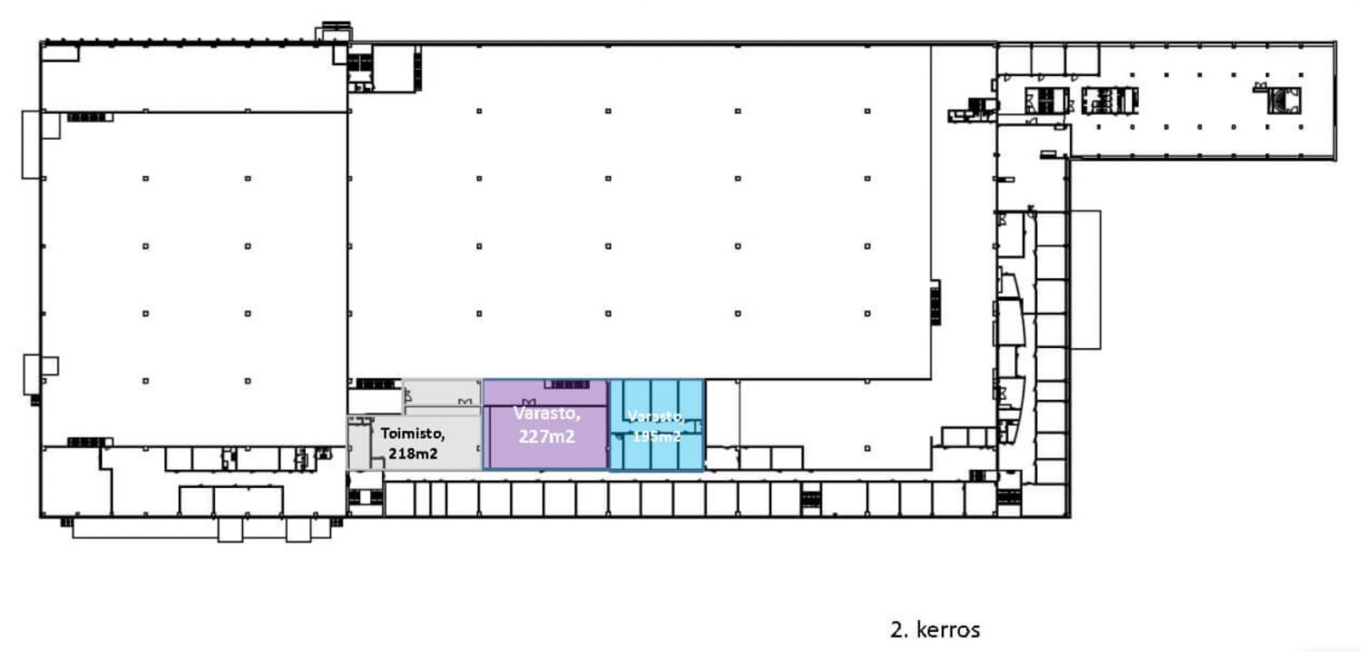
218 m2
Varastotilaa
2005 m2
Yhteensä
2223 m2
Pohjapiirros
Kiinteistö
Vuokrattavana on monipuolinen ja toimiva kokonaisuus (kokonaispinta-ala 2 223 m²), johon sisältyy korkeaa varastotilaa 1. kerroksesta 1 583 m² (vapaa korkeus on 6 metriä), siisti ja kompakti parvivarasto 422 m² sekä toimistotilaa 218 m² 2. kerroksessa. Kokonaisuus tarjoaa erinomaiset puitteet yritykselle, joka tarvitsee sekä tehokasta varastonhallintaa että toimivia toimistotiloja saman katon alle.
Tilassa on sekä lastauslaituri että nosto-ovi, jotka tekevät logistiikasta sujuvaa ja nopeaa. Varasto on aiemmin palvellut tapahtuma-alan toimijan tilana.
Tämä toimitilakokonaisuus sopii erinomaisesti yritykselle, joka etsii tilavaa, käytännöllistä ja helposti saavutettavaa varasto- ja tuotantoratkaisua toimistomahdollisuuksilla.
Ruosilantie 14
Tämä vuonna 1971 rakennettu ja vuosina 2000–2001 peruskorjattu kiinteistö tarjoaa modernit puitteet sujuvaan arkeen.
Sijainti
Ruosilantie 14 sijaitsee Konalan parhaalla paikalla, alueen sydämessä ja pääväylien tuntumassa. Sijainti tarjoaa loistavat kulkuyhteydet niin omalla autolla kuin joukkoliikenteellä.
Palvelut
Kiinteistö tarjoaa joustavia ja muunneltavia varasto- ja toimistotiloja, jotka on mahdollista mukauttaa monenlaisiin käyttötarkoituksiin. Oma lounasravintola helpottaa työpäivän rytmiä, ja lisäksi kiinteistöstä löytyvät saunaosasto sekä käytännölliset sosiaalitilat. Kokonaisuus tarjoaa yrityksille toimivat tilat ja mukavan arkiympäristön saman katon alla.
Aidatulla pihalla on runsaasti pysäköintitilaa henkilökunnalle ja asiakkaille, lisäksi alueella on käytössä sähköautojen latauspisteet.
Vastuullisuus
Ruosilantie 14 on uudistunut vastuullisesti. Kiinteistölle on asennettu aurinkopaneelit, joiden ansiosta uusiutuvaa energiaa voidaan hyödyntää tehokkaasti. Kiinteistön lämmityksestä vastaa maalämpö.
Kiinteistö on saanut BREEAM Very Good -tason ympäristösertifikaatin.
Ota yhteyttä
Kiinnostuitko? Ota yhteyttä ja tule tutustumaan!
Toimitilavälityspalvelumme on tilanhakijalle maksuton.
Tilassa on sekä lastauslaituri että nosto-ovi, jotka tekevät logistiikasta sujuvaa ja nopeaa. Varasto on aiemmin palvellut tapahtuma-alan toimijan tilana.
Tämä toimitilakokonaisuus sopii erinomaisesti yritykselle, joka etsii tilavaa, käytännöllistä ja helposti saavutettavaa varasto- ja tuotantoratkaisua toimistomahdollisuuksilla.
Ruosilantie 14
Tämä vuonna 1971 rakennettu ja vuosina 2000–2001 peruskorjattu kiinteistö tarjoaa modernit puitteet sujuvaan arkeen.
Sijainti
Ruosilantie 14 sijaitsee Konalan parhaalla paikalla, alueen sydämessä ja pääväylien tuntumassa. Sijainti tarjoaa loistavat kulkuyhteydet niin omalla autolla kuin joukkoliikenteellä.
Palvelut
Kiinteistö tarjoaa joustavia ja muunneltavia varasto- ja toimistotiloja, jotka on mahdollista mukauttaa monenlaisiin käyttötarkoituksiin. Oma lounasravintola helpottaa työpäivän rytmiä, ja lisäksi kiinteistöstä löytyvät saunaosasto sekä käytännölliset sosiaalitilat. Kokonaisuus tarjoaa yrityksille toimivat tilat ja mukavan arkiympäristön saman katon alla.
Aidatulla pihalla on runsaasti pysäköintitilaa henkilökunnalle ja asiakkaille, lisäksi alueella on käytössä sähköautojen latauspisteet.
Vastuullisuus
Ruosilantie 14 on uudistunut vastuullisesti. Kiinteistölle on asennettu aurinkopaneelit, joiden ansiosta uusiutuvaa energiaa voidaan hyödyntää tehokkaasti. Kiinteistön lämmityksestä vastaa maalämpö.
Kiinteistö on saanut BREEAM Very Good -tason ympäristösertifikaatin.
Ota yhteyttä
Kiinnostuitko? Ota yhteyttä ja tule tutustumaan!
Toimitilavälityspalvelumme on tilanhakijalle maksuton.
Vapautuu
Kysy
Kerros
1-2
Ota yhteyttä
Logistila Oy
Kylätie 11-13, 00320 HELSINKI
Karoliina Turppo
Näytä puhelinnumero
050 345 3258
Pyydä lisätietoa
