Vuokrataan toimistotilat - Helsinki
Paasivuorenkatu 3, Hakaniemi, 00530 Helsinki #10859505
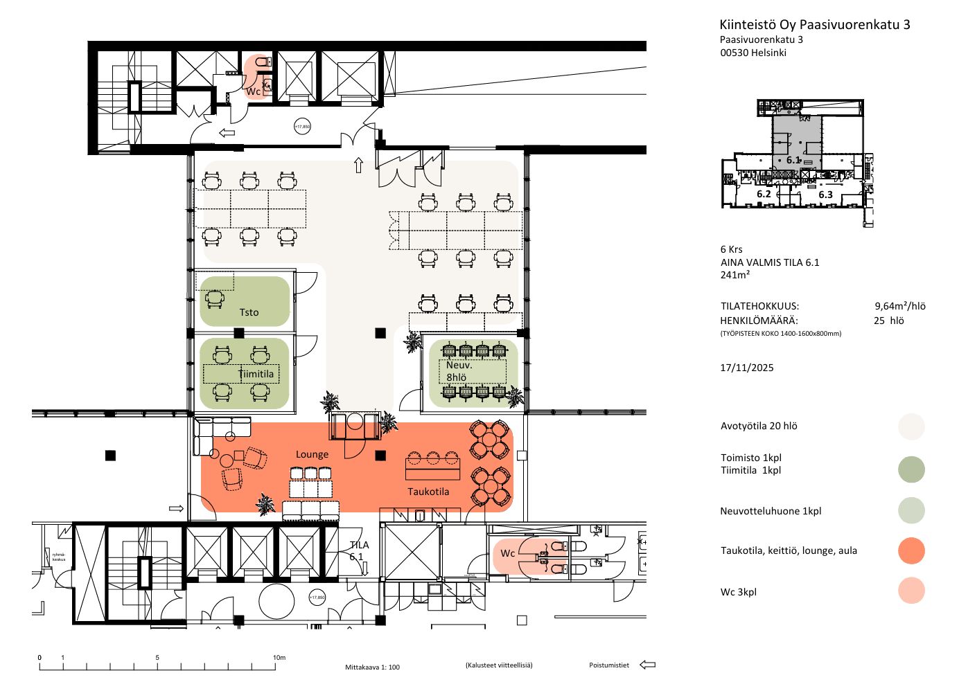
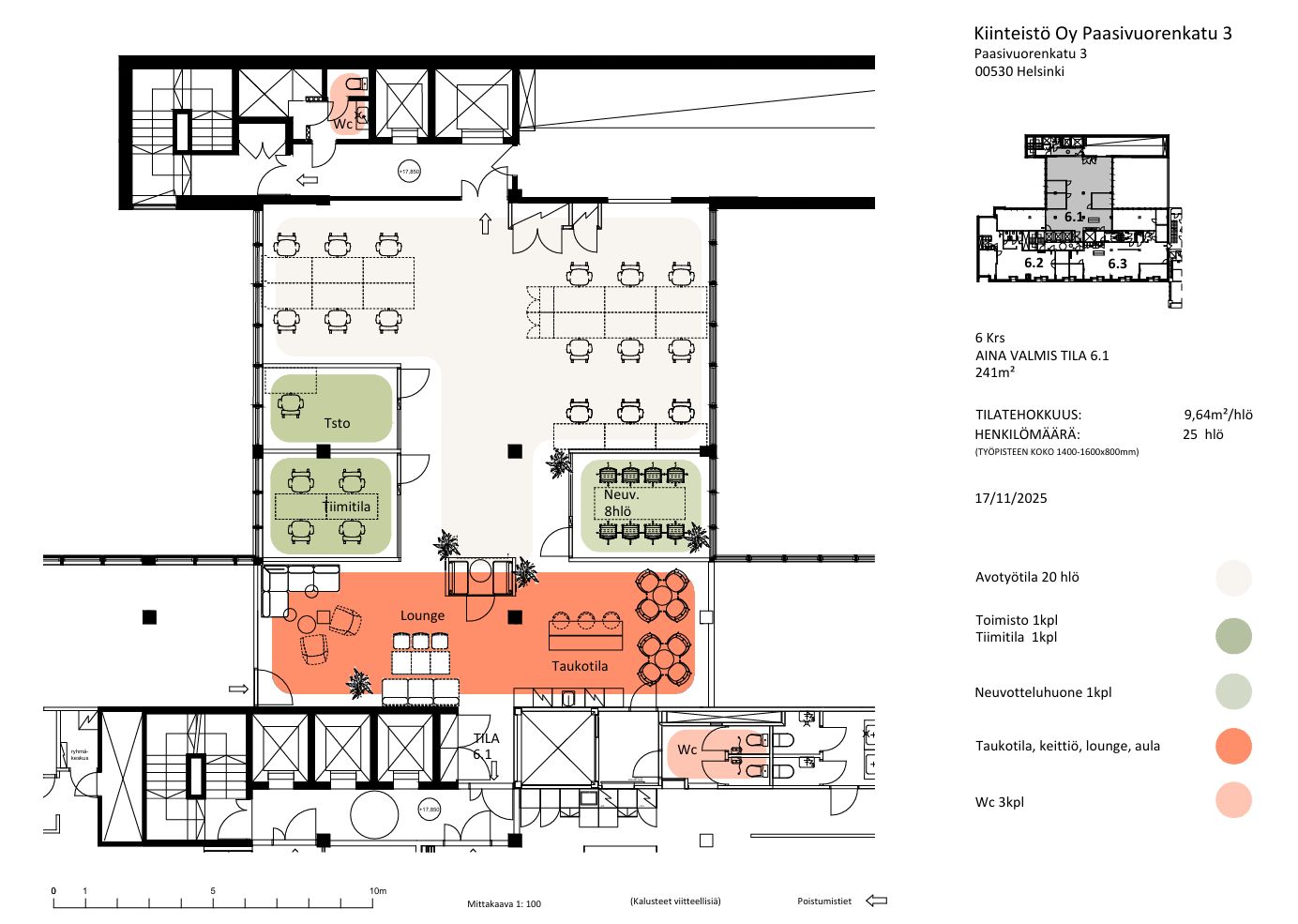
Paasivuorenkatu 3 - Toimisto 241 m²
Osoite
Paasivuorenkatu 3, 00530 Helsinki
Tilatyyppi
Toimistotilaa
241 m2
Pohjapiirros
Kiinteistö
Tämä 241 m² muuttovalmis toimisto tarjoaa yrityksellesi käytännöllisen ja tehokkaan työympäristön 6. kerroksessa. Tila soveltuu erinomaisesti noin 10–20 henkilölle ja yhdistää avaran avotilan, toimivat työhuoneet ja laadukkaat yhteiset tilat tasapainoiseksi kokonaisuudeksi.
Selkeä pohjaratkaisu sisältää avotilan lisäksi kaksi erikokoista työhuonetta sekä neuvottelutilan, joka palvelee luontevasti 8 hengen tapaamisia. Avokeittiö luo rennon kohtaamispaikan arjen tauoille ja tiimityölle, ja kaksi erillistä WC:tä lisäävät tilan käyttömukavuutta.
Paasivuorenkatu 3 – Tyylikästä toimitilaa historiallisessa Hakaniemessä
Paasivuorenkatu 3 tarjoaa yrityksellesi elegantin ja arvokkaan toimitilakokonaisuuden Hakaniemen paraatipaikalta. Rakennus on peruskorjattu huolellisesti vuonna 2011, ja entisen pankkikiinteistön alkuperäinen tunnelma elää yhä upeissa yksityiskohdissa: luonnonkivilaatoitettu aula, vaikuttava pankkisali ja ajaton arkkitehtuuri luovat näyttävän ensivaikutelman.
Valoisat toimistot avautuvat kauniiseen Paasipuistoon, ja sisäpihan vehreä talvipuutarha tarjoaa harvinaisen rauhallisen keitaan keskellä kaupunkia. Tilaratkaisut ovat uutta vastaavia ja muuntuvat vaivattomasti käyttäjän tarpeiden mukaan. Tilat ovat valoisia, edustavia ja helposti muokattavia, mikä takaa yritykselle toimivan ja viihtyisän työympäristön.
Kiinteistössä palvelee edustava tilaussauna, ja suojaisa sisäpihan talvipuutarha tarjoaa rauhallisen hengähdyspaikan aivan keskustan sykkeessä. Toimistotiloista avautuvat kauniit näkymät Paasipuistoon, mikä tuo työarkeen valoisuutta ja viihtyisyyttä.
Sijainti
Paasivuorenkatu 3 sijaitsee vain muutaman askeleen päässä Hakaniemen metroasemasta sekä raitiovaunu‑ ja bussipysäkeistä, mikä tekee liikkumisesta helppoa ja sujuvaa. Rautatieasema on 1,1 kilometrin kävelymatkan päässä, ja Helsinki-Vantaan lentoasemalle pääsee nopeasti hyvien yhteyksien ansiosta.
Läheinen pysäköintihalli tarjoaa vuokrattavia parkkipaikkoja ja palvelee sekä autoilevia työntekijöitä että vieraita. Hakaniemi kehittyy vauhdikkaasti, ja alueen uudistukset vahvistavat sen asemaa yhtenä Helsingin vetovoimaisimmista toimistoalueista.
Palvelut
Paasivuorenkatu 3 tarjoaa monipuoliset palvelut, jotka tukevat modernia työelämää ja yrityksen arjen sujuvuutta. Rakennuksessa palvelee aulapalvelu, saunatilat sekä hyvinvointia tukevat wellness-palvelut ja talvipuutarha. Lounasravintola ja kahvila ovat nopeasti saavutettavissa, ja sähköauton latauspiste sekä parkkihalli tuovat toiminnallisuutta päiviin.
Vastuullisuus
Paasivuorenkatu 3 on suunniteltu kestävän ja vastuullisen toiminnan ehdoilla. Kiinteistölle on myönnetty BREEAM Excellent ‑ympäristösertifikaatti, joka on osoitus vastuullisesta ylläpidosta ja ympäristöystävällisistä ratkaisuista. Kaikki sähkö on 100 % kotimaista tuulisähköä, mikä vähentää merkittävästi kiinteistön hiilijalanjälkeä.
Ota yhteyttä
Kiinnostuitko? Ota yhteyttä ja tule tutustumaan!
Toimitilavälityspalvelumme on tilanhakijalle maksuton.
Selkeä pohjaratkaisu sisältää avotilan lisäksi kaksi erikokoista työhuonetta sekä neuvottelutilan, joka palvelee luontevasti 8 hengen tapaamisia. Avokeittiö luo rennon kohtaamispaikan arjen tauoille ja tiimityölle, ja kaksi erillistä WC:tä lisäävät tilan käyttömukavuutta.
Paasivuorenkatu 3 – Tyylikästä toimitilaa historiallisessa Hakaniemessä
Paasivuorenkatu 3 tarjoaa yrityksellesi elegantin ja arvokkaan toimitilakokonaisuuden Hakaniemen paraatipaikalta. Rakennus on peruskorjattu huolellisesti vuonna 2011, ja entisen pankkikiinteistön alkuperäinen tunnelma elää yhä upeissa yksityiskohdissa: luonnonkivilaatoitettu aula, vaikuttava pankkisali ja ajaton arkkitehtuuri luovat näyttävän ensivaikutelman.
Valoisat toimistot avautuvat kauniiseen Paasipuistoon, ja sisäpihan vehreä talvipuutarha tarjoaa harvinaisen rauhallisen keitaan keskellä kaupunkia. Tilaratkaisut ovat uutta vastaavia ja muuntuvat vaivattomasti käyttäjän tarpeiden mukaan. Tilat ovat valoisia, edustavia ja helposti muokattavia, mikä takaa yritykselle toimivan ja viihtyisän työympäristön.
Kiinteistössä palvelee edustava tilaussauna, ja suojaisa sisäpihan talvipuutarha tarjoaa rauhallisen hengähdyspaikan aivan keskustan sykkeessä. Toimistotiloista avautuvat kauniit näkymät Paasipuistoon, mikä tuo työarkeen valoisuutta ja viihtyisyyttä.
Sijainti
Paasivuorenkatu 3 sijaitsee vain muutaman askeleen päässä Hakaniemen metroasemasta sekä raitiovaunu‑ ja bussipysäkeistä, mikä tekee liikkumisesta helppoa ja sujuvaa. Rautatieasema on 1,1 kilometrin kävelymatkan päässä, ja Helsinki-Vantaan lentoasemalle pääsee nopeasti hyvien yhteyksien ansiosta.
Läheinen pysäköintihalli tarjoaa vuokrattavia parkkipaikkoja ja palvelee sekä autoilevia työntekijöitä että vieraita. Hakaniemi kehittyy vauhdikkaasti, ja alueen uudistukset vahvistavat sen asemaa yhtenä Helsingin vetovoimaisimmista toimistoalueista.
Palvelut
Paasivuorenkatu 3 tarjoaa monipuoliset palvelut, jotka tukevat modernia työelämää ja yrityksen arjen sujuvuutta. Rakennuksessa palvelee aulapalvelu, saunatilat sekä hyvinvointia tukevat wellness-palvelut ja talvipuutarha. Lounasravintola ja kahvila ovat nopeasti saavutettavissa, ja sähköauton latauspiste sekä parkkihalli tuovat toiminnallisuutta päiviin.
Vastuullisuus
Paasivuorenkatu 3 on suunniteltu kestävän ja vastuullisen toiminnan ehdoilla. Kiinteistölle on myönnetty BREEAM Excellent ‑ympäristösertifikaatti, joka on osoitus vastuullisesta ylläpidosta ja ympäristöystävällisistä ratkaisuista. Kaikki sähkö on 100 % kotimaista tuulisähköä, mikä vähentää merkittävästi kiinteistön hiilijalanjälkeä.
Ota yhteyttä
Kiinnostuitko? Ota yhteyttä ja tule tutustumaan!
Toimitilavälityspalvelumme on tilanhakijalle maksuton.
Vapautuu
Kysy
Kerros
6
Ota yhteyttä
Logistila Oy
Kylätie 11-13, 00320 HELSINKI
Karoliina Turppo
Näytä puhelinnumero
050 345 3258
Pyydä lisätietoa
