Vuokrataan tuotantotilat - Oulu
Paulaharjuntie 20 A. Lounasravintola, Välivainio, 90530 Oulu #10859281
Osoite
Paulaharjuntie 20 A. Lounasravintola, 90530 Oulu
Tilatyyppi
Tuotantotilaa
358 m2
Muuta
Vuokrataan lounasravintolatila Oulun Välivainiolta
Paulaharjuntie 20, 90530 Oulu.
Vuokrattava lounasravintola vapautuu 1.7.2026.
Huoneistoon kuuluvat isot kiinteät laitteet sekä kalusteet.
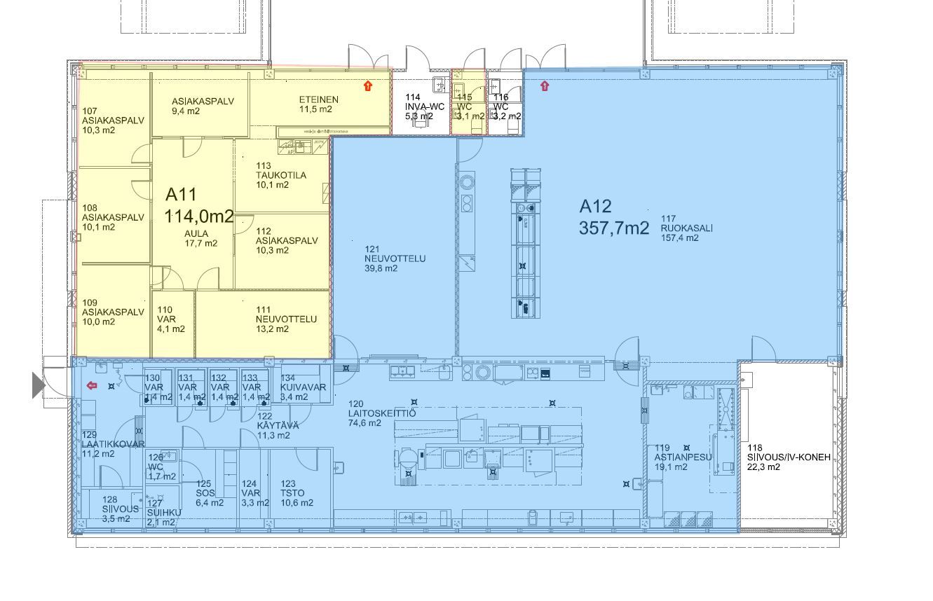
Lounasravintolassa on
n. 157 m2 ruokasali
n. 40 m2 neuvottelu/kabinettitila
n. 160 m2 laitoskeittiö (sis. myös varastokylmiöt, varastot, astianpesutilan sekä sosiaalitilat).
Asiakas wc-tilat sisääntuloaulassa, mihin käyttöoikeus.
Rakennuksessa ja pihapiirissä useita erialan toimijoita.
Liikenteellisesti hyvä sijainti lähellä E75 / VT 20 eritasoliittymää ja lähellä Oulun keskustaa.
Vuokrattava pinta-ala n. 358 m2.
Tila vapautuu 1.7.2026
Piha-alue on asfaltoitu.
Piha-alueella vuokrattavissa pysäköintipaikkoja (Aimopark hallinnoi).
Pyydä lisätietoja tästä kohteesta!
Paulaharjuntie 20, 90530 Oulu.
Vuokrattava lounasravintola vapautuu 1.7.2026.
Huoneistoon kuuluvat isot kiinteät laitteet sekä kalusteet.
Lounasravintolassa on
n. 157 m2 ruokasali
n. 40 m2 neuvottelu/kabinettitila
n. 160 m2 laitoskeittiö (sis. myös varastokylmiöt, varastot, astianpesutilan sekä sosiaalitilat).
Asiakas wc-tilat sisääntuloaulassa, mihin käyttöoikeus.
Rakennuksessa ja pihapiirissä useita erialan toimijoita.
Liikenteellisesti hyvä sijainti lähellä E75 / VT 20 eritasoliittymää ja lähellä Oulun keskustaa.
Vuokrattava pinta-ala n. 358 m2.
Tila vapautuu 1.7.2026
Piha-alue on asfaltoitu.
Piha-alueella vuokrattavissa pysäköintipaikkoja (Aimopark hallinnoi).
Pyydä lisätietoja tästä kohteesta!
Vapautuu
Kysy
Kerros
1
Ota yhteyttä
Catella Property Oy
Kirkkokatu 6, 5. krs, 90100 OULU
Näytä puhelinnumero
010 5220 100
Pekka Laurila-Harju
Näytä puhelinnumero
010 5220 603
Pyydä lisätietoa
